Geschäftslokal im Neubauprojekt - PARKSIDE GREEN RESIDENCES

Einzelhandel - Ladenlokal, 1180 Wien , Anastasius-Grün-Gasse 26

Beschreibung der Immobilie

Das Neubauprojekt Parkside Green Residences bietet durchdachte Grundrisse mit hochwertiger Ausstattung in toller Lage im 18. Bezirk! Nur wenige Gehminuten entfernt befinden sich der wunderschöne Währinger Park mit Familienbad, die U-Bahn-Station Nußdorfer Straße sowie das AKH.

Die Fertigstellung des Projektes ist im Frühjahr 2027. Die besten Einheiten werden zuerst verkauft – reservieren Sie daher gleich Ihre Traumimmobilie mit dem besten Grundriss und der besten Ausrichtung! Die vollständige Liste der verfügbaren Wohneinheiten und Preise erhalten Sie nach Ihrer Anfrage. Gerne beraten wir Sie bei der Auswahl und erzählen Ihnen alle wichtigen Details. Unsere Dienstleistung bei der Vermittlung ist für Sie kostenfrei! Geschäftslokal:
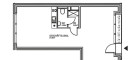
Dieses ca. 56 m² große Geschäftslokal im Erdgeschoss ist über eine Portaltüre direkt vom Gehsteig der Anastasius-Grün-Gasse zugänglich. Es erstreckt sich durch das Gebäude bis zum Innenhof, wo große Fenster für ausreichend Tageslicht sorgen. In der Mitte des Lokals befindet sich eine Toilette mit Wasseranschlüssen sowie den Vorbereitungen für eine Teeküche. Vor der gesamten Pfosten-Riegel-Fassade des Geschäftslokals befindet sich – mit Ausnahme der Eingangstür – eine troggebundene Vertikalbegrünung mit Rankhilfen (z. B. Seilen). Für detaillierte Informationen entnehmen Sie bitte die Bau- und Ausstattungsbeschreibung den Anhängen.

Der Verkaufspreis beträgt € 349.000,00 netto zzgl. 20% USt
Das Projekt erstreckt sich über zwei Adressen mit insgesamt 48 Wohnungen, einem Geschäftslokal und 33 Stellplätzen: Haus Green 2 in der Mollgasse 15 und Haus Green 1 in der Anastasius-Grün-Gasse 26. Im Innenhof befindet sich ein gemeinsamer Kinderspielplatz.

Die Ausstattung des Hauses bietet modernen Wohnkomfort:
- Zentralheizung, Warmwasservorbereitung und Temperierung mit ökologischer Sole-Wärmepumpenanlage mit Tiefensonden (Erdwärme)
- Heizung und Temperierung der Wohnung durch Bauteilaktivierung
- Photovoltaik-Thermie-Anlage für Stromerzeugung
- 60 × 60 cm keramische Bodenfliesen
- Stellplätze in der Hausgarage mit E-Ladestationen und eigener Lastenmanagementsoftware (gegen Aufpreis)
- Begrünte Fassaden

Die Lage überzeugt durch die tolle Infrastruktur und gleichzeitige Ruhe. Durch den Währinger Park ist ein ruhiges und angenehmes Wohngefühl garantiert. Gleichzeitig profitieren die Bewohner von der Nähe zu den U-Bahn-Stationen Nußdorfer Straße und Spittelau. Der nächstgelegene größere Supermarkt ist nur ca. 2 Fahrminuten entfernt. Dieses Wohnprojekt bietet nicht nur ein Zuhause, sondern auch eine grüne Wohlfühloase mitten in Wien.

Stellplätze für KFZ oder Motorräder in der Hausgarage können optional dazu erworben werden. Jeder Stellplatz verfügt über eine Leerverrohrung für eine E-Ladestation. Eine E-Ladestation mit Lastenmanagement kann ebenfalls optional erworben werden.

Gerne unterstützen wir Sie auch bei der Finanzierung! Sprechen Sie Ihren Makler oder Ihre Maklerin aktiv an, wenn Sie noch keine Finanzierungszusage haben!

Wir weisen auf ein wirtschaftliches Nahverhältnis zum Eigentümer aufgrund voriger Vermittlungen hin.
Angaben gemäß gesetzlichem Erfordernis:
Heizwärmebedarf:25.4 kWh/(m²a)
Klasse Heizwärmebedarf:B
Faktor Gesamtenergieeffizienz:0.68
Klasse Faktor Gesamtenergieeffizienz:A+

Eckdaten

Objektnr: 3801_1167
Art: Einzelhandel - Ladenlokal
Land: Österreich
Baujahr: 2027
Alter: Neubau
Kaufpreis: 349.000,00
Kaufpreis / m²: auf Anfrage
Nutzfläche: 56,33 m²
Verkaufsfläche: 56,33 m²
Zimmer: 5
WC: 1
Heizwärmebedarf:  B  25,40 kWh/m²a
fGEE:  A+  0,68
Immobilie merken Exposé

Ausstattung

Erdwärme, Zentralheizung


Internet und TV

Information zur Internet und TV Versorgung hier


Immobilie anfragen


Ihre persönliche Beratung

RE/MAX Together

Amber Lai

RE/MAX Together

E Amber.Lai@remax-together.at

H +43 660 1150 055