Erstbezug: exklusiver DG-Terrassen-Trau + inklusive Garagenstellplatz

Wohnung - Terrassenwohnung, 2122 Ulrichskirchen

Lage der Immobilie

Direkt neben der Stadtgemeinde Wolkersdorf im Weinviertel mit umfangreicher Infrastruktur einer feinen Kleinstadt. 16 Autominuten bis zur Wiener Stadtgrenze.

Beschreibung der Immobilie

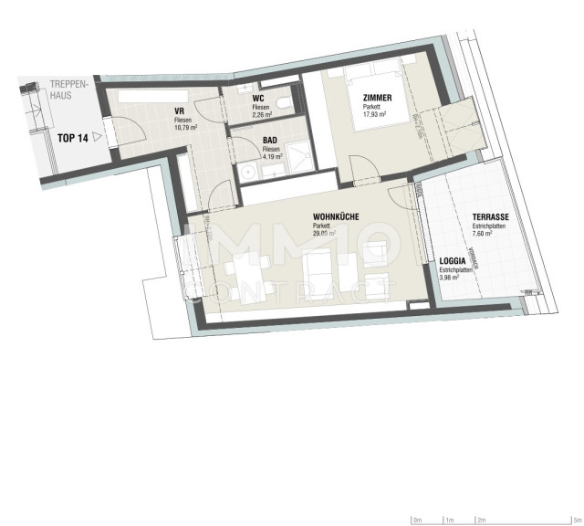
Urban Living und Ruhepol beschreibt diese wunderschön gelegene Klein-Wohnanlage in Ulrichskirchen vortrefflichst. Diese wunderschöne Gartenwohnung besticht durch einen großzügigen Grundriss und einem ruhigen Garten. Das Thema Ruhe und Geborgenheit zieht sich durch das gesamte Wohn-Konzept dieses hochwertigen Neubau-Projekts. Insgesamt stehen 16 Wohnungen - 2 bis 4 Zimmer - von 62m² bis 123m² Wohnglück für Sie bereit, wobei 2 Wohnungen im Stil von Reihenhäusern als Maisonettewohnungen ausgelegt sind. Dem Thema Nachhaltigkeit wird die Luft-Wärme-Pumpe am Dach für Heizung und Warmwasseraufbereitung gerecht. On Top gibt es zu jeder Wohnung einen Tiefgaragen-Stellplatz dazu - dieser ist im Kaufpreis inkludiert! Das Projekt im Überblick: - sehr zentral in Ulrichskirchen gelegen - super praktisch geschnittene Grundrisse - nachhaltige Heizung und Warmwasseraufbereitung

Eckdaten

Objektnr: 133015_7
Art: Wohnung - Terrassenwohnung
Land: Österreich
Baujahr: 2025
Zustand: Erstbezug
Kaufpreis: 315.000,00
Provision: 3%
Wohnfläche: 62,73 m²
Zimmer: 2
Bäder: 1
WC: 1
Terrassen: 1
Stellplätze: 1
Keller: 1,95 m²
Heizwärmebedarf:  B  37,00 kWh/m²a
fGEE:  A  0,72
Immobilie merken Exposé

Ausstattung

Fliesen, Parkett, Fußbodenheizung, Personenaufzug, Dusche


Internet und TV

Information zur Internet und TV Versorgung hier


Immobilie anfragen


Ihre persönliche Beratung

Marcus Plattner

IMMOcontract Immobilien Vermittlung GmbH

E m.plattner@immocontract.at

T 004318900800004366488315101