Büro/Ordination in charmanter revitalisierter Stadtvilla
Büro / Praxis
- Bürofläche,
4840
Vöcklabruck
Beschreibung der Immobilie
Im Herzen der Stadt, in einer typischen Altstadtvilla, befindet sich diese ruhig gelegene Büro- bzw. Praxisfläche.
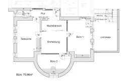
Im Tiefparterre, auf ca. 76 m² stehen folgende Räume zur Verfügung: Vorraum, Wartebereich / Anmeldung, 2 Bürozimmer, Personal/Teeküche, WC. Zum Mietgegenstand gehören 2 Autoabstellplätze.
Sämtliche Geschäfte des täglichen Bedarfs, der Busbahnhof, Lokale, Ärzte und Bildungseinrichtungen befinden sich im unmittelbaren Umfeld. Die A1 Auffahrt Regau ist in 10 Minuten erreichbar, den Attersee erreicht man in ca. 15 Minuten.
Kaution: 3 Monatsmieten.
In den Betriebskosten sind die Heizkosten und auch die Schneeräumung enthalten.
Eckdaten
| Gesamtmiete: | 990,00 € |
| Fläche: | 76,00 m² |
| Zimmer: | 4 |
Basisdaten zur Immobilie
| Objektnr: | 0004000005 |
| Art: | Büro / Praxis - Bürofläche |
| Land: | Österreich |
| Baujahr: | 1933 |
| Gesamtmiete: | 990,00 € |
| Kaltmiete (netto): | 683,33 € |
| Kaltmiete: | 825,00 € |
| Provision: | 3 Bruttomonatsmieten plus 20% USt. |
| Betriebskosten: | 141,67 € |
| Nutzfläche: | 76,00 m² |
| Zimmer: | 4 |
| WC: | 1 |
| Terrassen: | 1 |
| Heizwärmebedarf: | D 143,00 kWh/m²a |
| fGEE: | D 1,87 |
Internet und TV
Information zur Internet und TV Versorgung hier
Ihre persönliche Beratung
Joachim Plasser
Real-Treuhand Immobilien
plasser@raiffeisen-immobilien.at
+43 50 6596 8002
+43 676 8142 82856