*** Penthouse der Superlative im malerischen und modernen Kurort Bad Gleichenberg ** High-End-Ausstattung vereint mit höchster Lebensqualität ** 90m²-180m² möglich **
Wohnung
- Penthouse,
8344
Bad Gleichenberg
Lage der Immobilie
Das Penthouse befindet sich in erhöhter Lage in der Parkresidenz Brünnerhaus im malerischen Kurort Bad Gleichenberg und bietet Ihnen eine einzigartige Kombination aus Ruhe, Natur und bester Erreichbarkeit. Aufgrund der erhöhten Lage genießen Sie einen herrlichen Rundumblick über den Kurort Bad Gleichenberg, den Golfplatz sowie die wunderschöne hügelige Umgebung des Kurortes.Beschreibung der Immobilie
Genießen Sie die ideale, erhöhte Lage mit einem herrlichen Rundumblick über Bad Gleichenberg, die romantische Kirche, den Golfplatz sowie die wunderschöne Umgebung des Kurortes.
Diese exklusive Immobilie garantiert Ihnen absolute Privatsphäre und ist ideal für Menschen, die Ruhe und Luxus gleichermaßen suchen.
Das Penthouse stellt die Superlative des Wohnens dar und wird in individueller Planung nach Ihren Wünschen und Bedürfnissen realisiert.
Mit einer Wohnfläche zwischen 90 m² und 180 m² haben Sie die Möglichkeit, das Objekt nach Ihren Vorstellungen zu gestalten. Eine durchdachte und professionelle Planung, sowie die High-End-Ausstattung setzen neue Maßstäbe in Sachen Wohnkomfort und Lebensqualität.Facts und Highlights für Sie zusammengefasst:
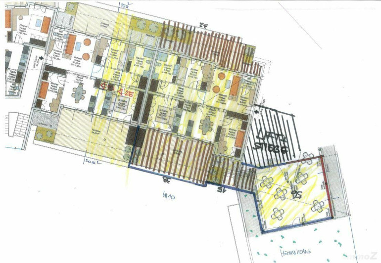
- Wohnen und Essen: Der großzügige Wohn-Essbereich von ca. 50 m² mit offener Küche und Kamin schafft eine behagliche Atmosphäre für entspannte Abende. Große, bodentiefe Fensterfronten und Schiebetüren sorgen für einen lichtdurchfluteten Raum mit atemberaubenden Panoramblick.
- 2 Bäder und 2 WC's: Zwei luxuriös ausgestattete Bäder und separate WC's bieten höchsten Komfort und Privatsphäre für die Eigentümer.
- Terrassen:
- Eine West-Terrasse mit einer Fläche von bis zu 30 m² ermöglicht es Ihnen, den Abend mit einem atemberaubenden Sonnenuntergang zu genießen.
- Eine Ost-Süd-Terrasse mit 38 m² und weiteren 15 m² bietet Ihnen Platz für Frühstück und eine sonnige Auszeit am Morgen und einen märchenhaften Blick über den Kurort
- Die Highlight-Terrasse: Eine weitere überdachte Terrasse mit 56 m² ermöglicht einen einzigartigen Rundumblick und sorgt für Ganztagesbesonnung. Hier können Sie nicht nur entspannen, sondern auch das private Jacuzzi in Kombination mit einem Naßzellenanschluss genießen. Natürlich auf Wunsch mit einer Outdoor-Küche
- Absolut barrierefrei: Das Penthouse ist komplett barrierefrei, was höchsten Komfort und Zugänglichkeit garantiert.
- Liftzugang: Der direkte Zugang zum Penthouse erfolgt bequem mit dem Lift, der Ihnen einen komfortablen Zugang ermöglicht.
- Klimaanlage und Photovoltaik: Moderne Klimaanlage sorgt für eine angenehme Temperatur das ganze Jahr über, während die Photovoltaikanlage für eine nachhaltige und umweltfreundliche Energieversorgung sorgt.
- High-End-Technik: Mit einer möglichen BUS-System-Steuerung wird dieses Penthouse technisch auf höchstem Niveau ausgestattet, um Ihnen höchsten Wohnkomfort zu bieten.
Für Menschen, die das Besondere suchen, stellt dieses Penthouse eine wahre Rarität dar – eine Immobilie, die Luxus, Natur und Komfort in perfekter Weise miteinander verbindet. ***
Für weitere Informationen und ein unverbindliches Beratungsgespräch stehen wir gerne zur Verfügung!
teilweise KI unterstützt
Eckdaten
| Kaufpreis: | auf Anfrage |
| Fläche: | 120,00 m² |
| Zimmer: | 5 |
Basisdaten zur Immobilie
| Objektnr: | O2100164008 |
| Art: | Wohnung - Penthouse |
| Land: | Österreich |
| Baujahr: | 2025/26 |
| Zustand: | Erstbezug |
| Kaufpreis: | auf Anfrage |
| Provision: | 1,5 % exkl. 20% MwSt. vom Gesamtkaufpreis |
| Wohnfläche: | 120,00 m² |
| Gesamtfläche: | 140,00 m² |
| Zimmer: | 5 |
| Bäder: | 2 |
| WC: | 2 |
| Terrassen: | 3 |
| Stellplätze: | 2 |
| Keller: | 5,00 m² |
| Heizwärmebedarf: | B 31,10 kWh/m²a |
Ausstattung
Parkett, Fernwärme, Wohnküche / offene Küche, Personenaufzug, Bad mit Fenster, Badewanne, Dusche, Kabel/Satelliten-TV, Tiefgarage
Internet und TV
Information zur Internet und TV Versorgung hier
Ihre persönliche Beratung
Heidi Gutmann
bestpoint Immobilien GmbH
info@bestpoint.cc
+43 699 18 32 6886
