Immobilie merken

Lagerfläche

Sonstige - Sonstige, 4800 Attnang-Puchheim

Beschreibung der Immobilie

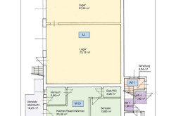
Die zum Verkauf stehende Lagerfläche befindet sich in zentraler Lage in Attnang-Puchheim. Das Ortszentrum sowie der Bahnhof sind in wenigen Minuten zu Fuß erreichbar.

Zusätzlich ist im Obergeschoss des Gebäudes ein Büro mit ca. 46 m² zum Preis von EUR 100.000,00 verfügbar.

Eckdaten

Kaufpreis: 150.000,00 €
Fläche: 110,00 m²
Zimmer: 1

Basisdaten zur Immobilie

Objektnr: 0004005103
Art: Sonstige - Sonstige
Land: Österreich
Baujahr: 2015
Kaufpreis: 150.000,00
Kaufpreis / m²: auf Anfrage
Provision: 3% des Kaufpreises plus 20% USt.
Nutzfläche: 110,00 m²
Zimmer: 1
Heizwärmebedarf:  C  54,00 kWh/m²a
fGEE:  C  1,13

Internet und TV

Information zur Internet und TV Versorgung hier




Immobilie anfragen




Ihre persönliche Beratung

Real-Treuhand Immobilien Vertriebs GmbH

Anna-Lena Victora

Real-Treuhand Immobilien

victora@raiffeisen-immobilien.at

+43 50 6596 80029781

+43 676 8141 89781