Top-Investment - Rohbaufläche mit Gestaltungspotential
Einzelhandel
- Ladenlokal,
6334
Schwoich
Lage der Immobilie
Schwoich ist eine Gemeinde mit ca. 2.650 Einwohnern (Stand 1. Jänner 2024) im Bezirk Kufstein in Tirol. Die Gemeinde liegt im Gerichtsbezirk Kufstein.
Das schöne Dorf liegt im Tiroler Unterland, ca. fünf Kilometer südlich von Kufstein, auf einem Hochplateau rechts des Flusses Inn. Die Gemeindefläche erstreckt sich vom Innufer bis auf die Walleralm am Fuße des Wilden Kaisers sowie der Locherer Kapelle bis zum "Häringer Wasserfall".
Einrichtungen des täglichen Bedarfs, z.B. Gemeindeamt, Kindergarten, Kinderkrippe, Volksschule, SPAR-Supermarkt, Gastronomiebetriebe etc. sind im Ort vorhanden.
Bekannt ist das Erholungsdorf u.a. auch für seine atemberaubende Natur die zu zahlreichen Sportmöglichkeiten einlädt. Neben Wandern und Bergsteigen kann man hier auch hervorragend Mountainbiken, Tennis und Fußball spielen oder im malerischen Bananensee schwimmen.
Im Winter gibt es ausgezeichnete Langlaufloipen oder man tobt sich beim Hochfeldlift beim Skifahren aus. Das bekannte Skigebiet SkiWelt Wilder Kaiser-Brixental ist nur ca. 15 Autominuten entfernt.
Schwoich ist auch verkehrstechnisch gut erschlossen. Die Inntalautobahn A12 verläuft auf der gegenüberliegenden Innseite. Die Anschlussstelle Kufstein Süd ist daher in wenigen Autominuten erreichbar. Der Bahnhof Kufstein liegt rund acht Kilometer entfernt.
Der bekannte Kurort Bad Häring sowie die umliegenden Städte Kufstein und Wörgl sind ebenfalls in wenigen Minuten mit dem Auto aber auch sehr gut mit öffentlichen Verkehrsmitteln erreichbar.
Entfernungen:
Bad Häring ca. 2 km,
Rosenheim ca. 40 km,
München ca. 90 km,
Innsbruck ca. 70 km
Beschreibung der Immobilie
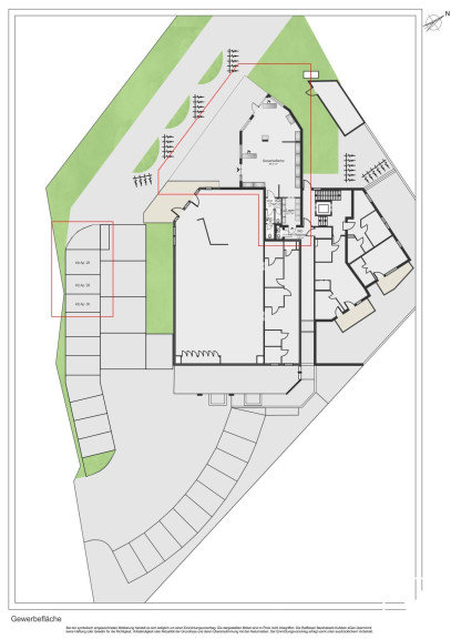
Wir freuen uns sehr, Ihnen diese attraktive Gewerbefläche in zentraler Lage von Schwoich - direkt neben dem Spar Markt - anbieten zu dürfen.
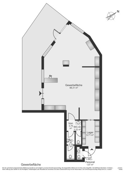
Insgesamt stehen Ihnen ca. 106 m² Nutzfläche zur Verfügung.
Die Fläche befindet sich noch im Rohzustand und kann nach eigenen Wünschen ausgebaut werden.
Die Immobilie bietet Ihnen eine helle, freundliche Atmosphäre und ist für verschiedenste Nutzungsmöglichkeiten optimal geeignet.
Der ideale Standort direkt an der Landstraße und die gleichzeitige Zentrumsnähe vereinen beste Verkehrsanbindungen und hohe Kundenfrequenz.
Objektdetails:
- erstklassige Verkehrs- und Zentrumslage
- moderne, energieeffiziente Bauweise und Ausstattung
- flexible Gestaltungsmöglichkeiten je nach Bedarf
- geringe Betriebskosten
- Gewerbe- bzw. Geschäftsfläche ca. 88,31 m²
- sehr gute Raumhöhe
- Lager/Büro etc. ca. 6,71 m²
- WC Damen
- WC Herren
- WC Personal
- Außenfläche ca. 88,93 m²
Ursprünglich waren die Räumlichkeiten für eine Bäckerei mit Tagescafé vorgesehen, es bieten sich jedoch zahlreiche, weitere Nutzungsmöglichkeiten an, z.B.
- Startups, Praxis, Kanzlei, Büro, Agentur
- Ordination, Therapie, Studio, Atelier
Ein weiteres Highlight ist die riesige, sonnige Außenfläche mit ca. 89 m², eine ideale Terrasse mit traumhaften Ausblick auf die schöne Natur- und Berglandschaft von Schwoich.
Die großen Fensterfronten bringen Licht in die Räume und sorgen für ein gutes und angenehmes Raumklima.
Beheizt wird das Objekt mit einer effizienten Pellets-Zentralheizung welche eine wohlige Wärme garantiert.
Im Kaufpreis sind drei Autoabstellplätze im Freien inkludiert.
Lassen Sie sich diese Gelegenheit nicht entgehen und verwirklichen Sie Ihren Traum vom eigenen Business.
Wir freuen uns auf Ihre Anfrage!
Eckdaten
| Kaufpreis: | 430.000,00 € |
| Fläche: | 106,02 m² |
Basisdaten zur Immobilie
| Objektnr: | 0009000468 |
| Art: | Einzelhandel - Ladenlokal |
| Land: | Österreich |
| Baujahr: | 2022 |
| Kaufpreis: | 430.000,00 € |
| Kaufpreis / m²: | auf Anfrage |
| Provision: | 3% des Kaufpreises plus 20% USt. |
| Betriebskosten: | 400,00 € |
| Nutzfläche: | 106,02 m² |
| WC: | 3 |
| Heizwärmebedarf: | B 27,50 kWh/m²a |
| fGEE: | A 0,78 |
Ausstattung
Zentralheizung
Internet und TV
Information zur Internet und TV Versorgung hier
Ihre persönliche Beratung
Andrea Steiner
Raiffeisen Tirol Kufstein
andrea.steiner@rbk.at
50182
+43 5372 200-50182
