Beschreibung der Immobilie
Großzügige 3 Zimmerwohnung im Arsenal
Diese schöne Anlage, eingebettet im Areal des Arsenals, bietet Wohnkomfort in Grünruhelage und Zentrumsnähe zugleich. Es gibt Vielzahl an Freizeitmöglichkeiten - ob spazieren gehen, laufen oder mit den Kindern am Spielplatz Zeit verbringen. Der naheliegende Hauptbahnhof bietet sämtliche Einkaufsmöglichkeiten.
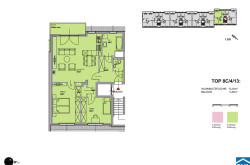
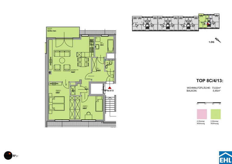
Die Wohnung befindet sich im 1. Dachgeschoss und verfügt über eine großzügige Wohnküche, 2 Schlafzimmer, ein Badezimmer mit Badewanne und Waschmaschinenanschluss, ein separates WC, sowie einen Vorraum.
Bei den Fotos handelt es sich teilweise um Musterfotos.
Erhalten Sie hier einen Einblick in das Arsenal: https://arsenal-living.at/
Ausstattung
- Voll ausgestattete Küche
- Wohnräume: Parkettboden
- Sanitärräume: Fliesen
- Badezimmer mit Wanne und Waschmaschinenanschluss
- Großteils Fahrradräume und Waschküchen
Folgende Infrastruktur ist direkt im Arsenal vorhanden:
- Gasthaus
- Postfiliale
- Arzt
- Tennisplätze
- Kindergarten
- Heeresgeschichtliches Museum
Die Wohnung ist nicht barrierefrei.
zzgl. Heizung EUR 31,48 + USt. EUR 6,30 = Brutto EUR 37,78
Bei Bedarf kann ein Hofstellplatz (EUR 80,- brutto) oder ein Tiefgaragenplatz (EUR 120,- brutto) angemietet werden.
Befristung: 7 Jahre, 1 Jahr Kündigungsverzicht, 3 Monate Kündigungsfrist
Öffentliche Verkehrsanbindung
Buslinie 69A
Straßenbahn 18
Verkehrsknotenpunkt Hauptbahnhof liegt nur wenige Gehminuten entfernt: Straßenbahnlinie D, Schnellbahn
Nebenkosten
3 BMM Kaution, Vertragserrichtungsgebühr
Wir weisen darauf hin, dass zwischen dem Vermittler und dem zu vermittelnden Dritten ein familiäres oder wirtschaftliches Naheverhältnis besteht.
Der Immobilienmakler erklärt, dass er – entgegen dem in der Immobilienwirtschaft üblichen Geschäftsgebrauch des Doppelmaklers – einseitig nur für den Vermieter tätig ist.
Infrastruktur / Entfernungen
Gesundheit
Arzt <375m
Apotheke <475m
Klinik <1.000m
Krankenhaus <1.525m
Kinder & Schulen
Schule <675m
Kindergarten <450m
Universität <500m
Höhere Schule <1.225m
Nahversorgung
Supermarkt <375m
Bäckerei <550m
Einkaufszentrum <975m
Sonstige
Geldautomat <650m
Bank <800m
Post <925m
Polizei <1.000m
Verkehr
Bus <200m
U-Bahn <1.100m
Straßenbahn <625m
Bahnhof <475m
Autobahnanschluss <950m
Angaben Entfernung Luftlinie / Quelle: OpenStreetMap
Eckdaten
| Gesamtmiete: | 1.490,00 € |
| Fläche: | 73,02 m² |
| Zimmer: | 3 |
Basisdaten zur Immobilie
| Objektnr: | 68590 |
| Art: | Wohnung |
| Land: | Österreich |
| Zustand: | Gepflegt |
| Alter: | Neubau |
| Gesamtmiete: | 1.490,00 € |
| Kaltmiete (netto): | 1.173,23 € |
| Kaltmiete: | 1.354,55 € |
| Provision: | Gemäß Erstauftraggeberprinzip bezahlt der Abgeber die Provision. |
| Betriebskosten: | 181,32 € |
| MwSt Gesamt: | 135,45 € |
| Wohnfläche: | 73,02 m² |
| Nutzfläche: | 73,02 m² |
| Zimmer: | 3 |
| Bäder: | 1 |
| WC: | 1 |
| Balkone: | 1 |
| Heizwärmebedarf: | C 51,20 kWh/m²a |
| fGEE: | C 1,09 |
Ausstattung
Fliesen, Parkett, Wohnküche / offene Küche, Personenaufzug, Südbalkon, Bad mit Fenster, Badewanne
Internet und TV
Information zur Internet und TV Versorgung hier
Ihre persönliche Beratung
Josef Michelfeit
EHL Immobilien GmbH
j.michelfeit@ehl.at
+43-1-512 76 90-403
