Rendite-Hit: Anlegerwohnung mit Sorglos-Vermietungs-Konzept | paulus5.at
Wohnung
,
1030
Wien
,
Paulusgasse 5
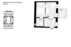
Lage der Immobilie
Landstraßer Hauptstraße, Paulusplatz, Rabenhof TheaterBeschreibung der Immobilie
Alle Details zum Projekt finden Sie auch unter: www.paulus5.at
Das Projekt
Die Paulusgasse 5 befindet sich in exzellenter Stadtlage mit optimaler Verkehrsanbindung und perfekter Infrastruktur. Es entstehen 57 neue, moderne und energieeffiziente Eigentumswohnungen mit knapp 2.900 m² Wohnfläche und ca. 500m² Freifläche. 65% der Eigentumswohnungen sind für Eigennutzer und 35% für Anleger mit einem innovativen Vorsorge-Wohnungs-Modell mit Sorglos-Vermietungs-Konzept und überdurchschnittlichen Renditen geplant. Das Projekt besteht aus insgesamt vier Gebäudeteilen (4. Stiegen) mit großem Innenhof, einem neu aufgestockten Dachgeschoß, sowie die zwei Townhouses in Innenlage. Die Bestandswohnungen in den Hauptgebäuden werden vollständig und hochwertig saniert, viele davon mit einem neuen Balkon ausgestattet, das Heiz-Kühlsystem wird durch eine nachhaltige zentrale Luftwärmepumpe ersetzt, bei jeder Stiege wird ein Aufzug installiert, der große Innenhof wird begrünt. Das Gebäude wird aufgestockt und in den zwei 2 Dachgeschoßen entstehen 7 neue Wohnungen mit Außenflächen. Im hinteren Teil des Gebäudes entstehen zwei Townhouses mit Grünflächen.
Anlegerwohnungen auf Stiege 1 & 2
Vorsorge-Wohnungs-Modell mit Sorglos-Vermietungs-Konzept:
- professionelles, zentrales Management übernimmt die Verwaltung und Verrechnung
- 28 Apartments für Kurzzeitvermietung mit gewerblichem Betreiber
- 2 Wohnungen mit langfristigen Mietverträgen (Top 4-5 | Top 30)
- Mieteinnahmen (Kurz- und Langzeitvermietung) in gemeinsamen Mietenpool
- Kalkulierte Mietrendite über 4% pro Jahr
Zentrales Management
Ein professionelles, zentrales Management übernimmt sämtliche Verwaltungsaufgaben:
- Vermietung (Kurz- und Langzeit)
- Mietvertragsabwicklung und Mieterbetreuung
- Wartung und Instandhaltung
- Abwicklung aller Betriebs- und Nebenkosten
- Rechtliche Betreuung und Einhaltung gesetzlicher Vorgaben
Dieses Rundum-sorglos-Paket ermöglicht Eigentümern eine passive, risikoreduzierte Kapitalanlage, da der gesamte organisatorische Aufwand ausgelagert wird.
Mietenpool - Einheitliche Rendite für alle Eigentümer
Alle Mieteinnahmen fließen in einen gemeinsamen „Mietentopf“, wodurch Anleger stabile Erträge erzielen. Dieses Modell minimiert das Risiko von Leerstand, da die Einnahmen anteilsmäßig auf alle Eigentümer verteilt werden.
Professionelles Management für eine sorgenfreie Kapitalanlage
Ein professionelles Management übernimmt sämtliche Aufgaben rund um die Kurzzeitvermietung, von der Buchung über die Wartung bis hin zu den rechtlichen Aspekten. Für Investoren bedeutet dies eine mühelose Kapitalanlage ohne administrativen Aufwand.
Lage und Umgebung der Paulusgasse 5, 1030 Wien
Das Projekt befindet sich in einer attraktiven Lage im 3. Bezirk, mit guter Anbindung an den öffentlichen Verkehr. Durch die beiden nahegelegenen U-Bahnstationen U3 Schlachthausgasse und U3 Kardinal-Nagl-Platz, ist die Innenstadt in knapp 10 Minuten erreichbar. Auch die Nähe zu beliebten Sehenswürdigkeiten, wie dem Stephansplatz, macht die besonders für Kurzzeitmieter attraktiv. Zudem bietet die Umgebung zahlreiche Naherholungsgebiete, wie Prater oder Donaukanal. Auch Wiens kulturelles Angebot, wie das Kunsthaus Wien und die Wiener Staatsoper sind in kurzer Zeit erreichbar.
Ausstattung
Die gut durchdachten und kompakt geplanten Apartments mit einer Größe von ca. 29 - 44 m² werden komplett möbliert verkauft. Die moderne und hochwertige Ausstattung entspricht Hotelstandards – von voll ausgestatteten Küchen inklusive Kochutensilien über hochwertige Betten bis hin zu modernen Fernsehern. Jedes Detail wurde sorgfältig auf die Bedürfnisse der Mieter abgestimmt, um eine komfortable und praktische Nutzung zu gewährleisten.
Kaufpreise
Netto-Kaufpreise* liegen zwischen € 158.000,- und € 402.000,- (zzgl. 20% USt) - *Möbel- und Einrichtungspaket ist NICHT im Kaufpreis enthalten. Die Preise sind beim jeweiligen Objekt angeführt.
Hinweis
Sämtliche Bilder, Visualisierungen und Pläne, die in den Inseraten verwendet werden, dienen als Referenz. Die gezeigte Einrichtung und Fotos sind beispielhaft und können von der tatsächlichen Einrichtung oder Layout abweichen. Die Angaben beruhen auf Informationen des Verkäufers.
Noch nichts gefunden? Wir informieren Sie über geeignete Immobilienangebote noch vor allen anderen.
Legen Sie jetzt Ihren individuellen Suchagenten unter folgendem Link an. Wir schicken Ihnen passende Immobilien exklusiv vorab zu.
Suchagent anlegen - https://accenta-immobilien.service.immo/registrieren/de
Wir weisen darauf hin, dass zwischen dem Vermittler und dem zu vermittelnden Dritten ein familiäres oder wirtschaftliches Naheverhältnis besteht.
Der Vermittler ist als Doppelmakler tätig.
Sie wollen auch Ihre Immobilien Verkaufen oder Vermieten?
Accenta Immobilien - Ihr Partner für Immobilienvermittlung
www.accenta-immo.at
01/997 12 93
Infrastruktur / Entfernungen
Gesundheit
Arzt <175m
Apotheke <350m
Klinik <250m
Krankenhaus <300m
Kinder & Schulen
Schule <125m
Kindergarten <150m
Universität <625m
Höhere Schule <600m
Nahversorgung
Supermarkt <125m
Bäckerei <225m
Einkaufszentrum <600m
Sonstige
Geldautomat <250m
Bank <375m
Post <375m
Polizei <375m
Verkehr
Bus <200m
U-Bahn <300m
Straßenbahn <275m
Bahnhof <375m
Autobahnanschluss <900m
Angaben Entfernung Luftlinie / Quelle: OpenStreetMap
Eckdaten
| Kaufpreis: | 255.724,00 € |
| Fläche: | 29,40 m² |
| Zimmer: | 1 |
Basisdaten zur Immobilie
| Objektnr: | 11021 |
| Art: | Wohnung |
| Land: | Österreich |
| Zustand: | Erstbezug |
| Kaufpreis: | 255.724,00 € |
| Kaufpreis / m²: | auf Anfrage |
| Provision: | 3% des Kaufpreises zzgl. 20% USt. |
| Wohnfläche: | 29,40 m² |
| Nutzfläche: | 33,49 m² |
| Gesamtfläche: | 33,49 m² |
| Zimmer: | 1 |
| Bäder: | 1 |
| WC: | 1 |
| Balkone: | 1 |
| Heizwärmebedarf: | C 56,69 kWh/m²a |
| fGEE: | C 1,25 |
Ausstattung
Fliesen, Parkett, Fußbodenheizung, Zentralheizung, Einbauküche, Personenaufzug
Internet und TV
Information zur Internet und TV Versorgung hier
Ihre persönliche Beratung
Michael Riedler
Accenta Immobilien e.U.
michael.riedler@accenta-immo.at
+43 1 997 18 00
+43 699 14228400
F +43 1 997 18 00 – 10
