Townhouse mit Weitblick in Kleinhöflein - Schlüsselfertig inkl. PP - Neubau
Haus
- Doppelhaushälfte,
7000
Eisenstadt
Lage der Immobilie
Kleinhöflein im BurgenlandBeschreibung der Immobilie
Kleinhöflein - im Winzerviertel Eisenstadts entsteht dieses kleine Wohnbauprojekt mit nur acht Wohnungen und vier Häusern. Es wird eine kleine Gemeinschaft sein, die das 1.749 m² große Grundstück bald Ihr zu Hause nennen wird.
Die Anlage wird aus drei separaten Bauwerken, einem gemeinsamen Parkplatz und privaten Gärten bestehen und gliedert sich wie folgt:
- Bauteil I: zwei Townhäuser auf drei Ebenen. Balkone / Terrassen auf jeder Ebene, Eigengärten
- Bauteil II: acht Wohnungen zwischen 50 und 125 m². Jede Wohnung verfügt über einer großen hofseitigen Freifläche.
- Bauteil III: zwei Doppelhaushälften mit privaten Gärten.
Bei diesem Projekt wurde sehr viel Wert auf Gemütlichkeit, Ruhe und Nachhaltigkeit gelegt. Um die einzelnen Wohnungen / Häuser so gemütlich wie möglich zu gestalten, hat man auch große Freiflächen und möglichst geräumige Zimmer gesetzt. Die Orientierung der Räume zum Hof / Garten garantiert, dass Sie die Ruhe genießen können. Straßenseitig wurden nur Treppenhäuser oder Nebenräume geplant. Eine sparsame und moderne Heizung (Luftwärmepumpe) sowie Solaranlagen auf alle drei Dächern gegeben runden die Qualität der Anlage betreffend der Nachhaltigkeit ab.
Die Wohnungen werden schlüsselfertig, zum angegebenen Preis, inklusive Einbauküche verkauft und sollten Anfang 2024 bezugsfertig sein.
Ausstattung:
- Parkettböden in Wohnräumen, großflächige (60x120) Fliesen in Nassräumen
- Wohnungs-Sicherheitstüren gemäß ÖNORM
- Dreifach verglaste Isolierverglasung (Anthrazit)
- Außenliegender Sonnenschutz
- Fußbodenheizung (Luftwärmepumpe)
- Vorbereitung für Klimaanlagen
- Große Freiflächen
- Kellerabteile
- Sieben Tiefgaragenplätze und 17 Abstellplätze im Hof
Die Häuser:
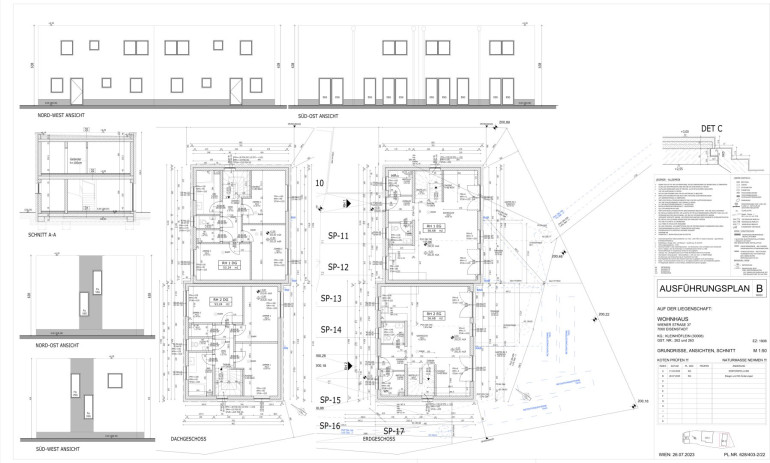
RH1 und RH 2 sind die Straßenseitigen "Townhäuser". Diese bestehen aus drei Etagen mit Schlafräumen in den unteren Stockwerken und ein großes Wohnzimmer im DG, mit sehr beeindruckender Raumhöhe, großem Balkon und Weitblick (Südost).
Das Treppenhaus und die Sanitärräume sind Straßenseitig, sodass alle Schlafräume hofseitig und ruhig sein konnten. Im Kaufpreis inbegriffen ist stets ein Autoabstellplatz und ein großes Kellerabteil (in BTII).
- RH1: 124,43 m² Wohnfläche | 32,16 m² Balkone | 8,75 m² Terrasse | 8,83 m Vorgarten
- RH2: 131,47 m² Wohnfläche | 39,66 m² Balkone | 12,0 m² Terrasse | 15,5 m² Vorgarten (hier abgebildet und im jetzigen Zustand fotografiert)
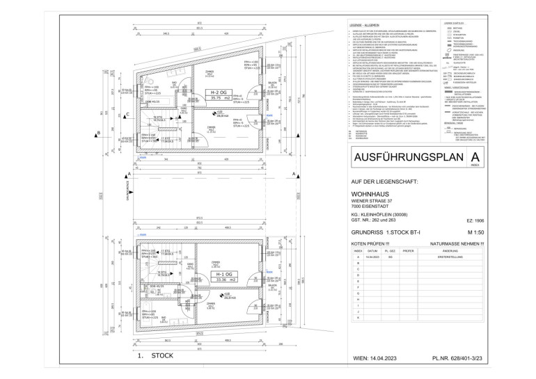
DH1 und DH2 bilden das hintere Doppelhaus, welches zwei Stockwerke und gemütliche ruhige Gärten bietet. Im Kaufpreis inbegriffen ist stets ein Autoabstellplatz und ein großes Kellerabteil (in BTII). Dieser Bauteil ist sehr weit von der Straße entfernt, der Parkplatz ist jedoch genau vor der eigenen Türe.
- DH1: 109,92 m² Wohnfläche | 14,69 m² Terrasse | 108,45 m² Garten
- DH2: 109,92 m² Wohnfläche | 14,79 m² Terrasse | 92,79 m² Garten
Wir weisen darauf hin, dass zwischen dem Vermittler und dem zu vermittelnden Dritten ein familiäres oder wirtschaftliches Naheverhältnis besteht.
Der Vermittler ist als Doppelmakler tätig.
Infrastruktur / Entfernungen
Gesundheit
Arzt <1.500m
Apotheke <1.500m
Klinik <6.500m
Krankenhaus <1.500m
Kinder & Schulen
Schule <500m
Kindergarten <2.000m
Universität <1.500m
Höhere Schule <3.000m
Nahversorgung
Supermarkt <500m
Bäckerei <500m
Einkaufszentrum <2.500m
Sonstige
Bank <1.000m
Geldautomat <2.000m
Post <1.000m
Polizei <1.500m
Verkehr
Bus <500m
Autobahnanschluss <2.500m
Bahnhof <2.500m
Angaben Entfernung Luftlinie / Quelle: OpenStreetMap
Eckdaten
| Kaufpreis: | 425.000,00 € |
| Fläche: | 131,47 m² |
| Zimmer: | 4 |
Basisdaten zur Immobilie
| Objektnr: | 4760/523 |
| Art: | Haus - Doppelhaushälfte |
| Land: | Österreich |
| Baujahr: | 2024 |
| Zustand: | Erstbezug |
| Alter: | Neubau |
| Kaufpreis: | 425.000,00 € |
| Provision: | 15.300,00 € inkl. 20% USt. |
| Wohnfläche: | 131,47 m² |
| Zimmer: | 4 |
| Bäder: | 2 |
| WC: | 3 |
| Balkone: | 2 |
| Terrassen: | 1 |
| Stellplätze: | 2 |
| Garten: | 15,50 m² |
| Keller: | 4,22 m² |
| Heizwärmebedarf: | B 27,06 kWh/m²a |
| fGEE: | A+ 0,58 |
Ausstattung
Parkett, Fußbodenheizung, Einbauküche, Dusche, Parkplatz, Tiefgarage
Internet und TV
Information zur Internet und TV Versorgung hier
Ihre persönliche Beratung
Victor Vassilev
Per.Fact Immo E.U.
vassilev@perfact-immo.at
0676/4774191
