Lage der Immobilie
Kleinhöflein im BurgenlandBeschreibung der Immobilie
Baufortschritt: Fertigstellungsanzeige vorhanden. Das Gebäude kann bereits genutzt und bewohnt werden. Die Innenausstattung der Wohnungen wird, solange es noch möglich ist, nach Wunsch des Käufers gestaltet.
Kleinhöflein - im Winzerviertel Eisenstadts entsteht dieses kleine Wohnbauprojekt mit nur acht Wohnungen und vier Häusern. Es wird eine kleine Gemeinschaft sein, die das 1.749 m² große Grundstück bald Ihr zu Hause nennen wird.
Die Anlage wird aus drei separaten Bauwerken, einem gemeinsamen Parkplatz und privaten Gärten bestehen und gliedert sich wie folgt:
- Bauteil I: zwei Townhäuser auf drei Ebenen. Balkone / Terrassen auf jeder Ebene, Eigengärten
- Bauteil II: acht Wohnungen zwischen 50 und 125 m². Jede Wohnung verfügt über einer großen hofseitigen Freifläche.
- Bauteil III: zwei Doppelhaushälften mit privaten Gärten.
Bei diesem Projekt wurde sehr viel Wert auf Gemütlichkeit, Ruhe und Nachhaltigkeit gelegt. Um die einzelnen Wohnungen / Häuser so gemütlich wie möglich zu gestalten, hat man auch große Freiflächen und möglichst geräumige Zimmer gesetzt. Die Orientierung der Räume zum Hof / Garten garantiert, dass Sie die Ruhe genießen können. Straßenseitig wurden nur Treppenhäuser oder Nebenräume geplant. Eine sparsame und moderne Heizung (Luftwärmepumpe) sowie Solaranlagen auf alle drei Dächern gegeben runden die Qualität der Anlage betreffend der Nachhaltigkeit ab.
Die Wohnungen werden schlüsselfertig, zum angegebenen Preis, inklusive Einbauküche verkauft und sollten Anfang 2024 bezugsfertig sein.
Ausstattung:
- Parkettböden in Wohnräumen, großflächige (60x120) Fliesen in Nassräumen
- Sicherheitstüren gemäß ÖNORM
- Dreifach verglaste Isolierverglasung (Anthrazit)
- Vorbereitung für außenliegender elektrischer Sonnenschutz (Einbau optional Möglich)
- Fußbodenheizung (Luftwärmepumpe)
- Vorbereitung für Klimaanlagen
- Große Freiflächen mit WPC Bodenbelag in Holzoptik
- Kellerabteile
- Sieben Tiefgaragenplätze und 17 Abstellplätze im Hof
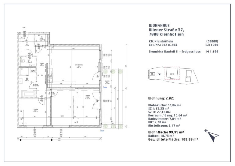
Wohnung BT II Top 02:
Diese geräumige drei-Zimmer-Wohnung befindet sich im südlichen Teil des mittleren Hauses. Mit einem sehr großen Balkon ladet die Wohnung zum entspannen ein.
Durch den 33 m² großen Wohnraum betritt man den 19 m² großen Balkon. Eine große Eck-Küche befindet sich auf der Innenseite des Zimmers, gegenüber vom Balkon. Für das Design der Küche ist derzeit eine klassische Farbwahl ausgewählt worden, es besteht jedoch noch die Möglichkeit, diese an Ihre Wünschen anzupassen.
Die Schlafzimmer wurden, in einer untypischen Wiese, geräumig geplant und sind groß genug für eine Familie mit einem Kind. Das Elternschlafzimmer wurde in zwei Bereichen geteilt, eine große Ankleide mit Fenster und der Schlafraum beim Balkon. Mit insgesamt 27 m² und einen Zugang ins Freie ist das Elternschlafzimmer ein wahres Highlight. Die Ankleide könnte auch als Arbeitsbereich genutzt werden, da im Schlafbereich eigentlich auch Raum für eine Garderobe wäre. Bei der gleichen Wohnung im 1. OG wurden hier zwei getrennte Schlafzimmer konzipiert. Außerdem verfügt die Wohnung über ein getrennt begehbares Kinderzimmer mit 13,25 m² und großem Doppelfenster.
Das Badezimmer ist ebenso recht geräumig und verfügt über eine Badewanne und eine Dusche. Das WC ist separat und hat auch ein Handwaschbecken. Der Abstellraum beim Vorraum runden die Räumlichkeiten der Top 02 ab.
Wir weisen darauf hin, dass zwischen dem Vermittler und dem zu vermittelnden Dritten ein familiäres oder wirtschaftliches Naheverhältnis besteht.
Der Vermittler ist als Doppelmakler tätig.
Infrastruktur / Entfernungen
Gesundheit
Arzt <1.500m
Apotheke <1.500m
Klinik <6.500m
Krankenhaus <1.500m
Kinder & Schulen
Schule <500m
Kindergarten <2.000m
Universität <1.500m
Höhere Schule <3.000m
Nahversorgung
Supermarkt <500m
Bäckerei <500m
Einkaufszentrum <2.500m
Sonstige
Bank <1.000m
Geldautomat <2.000m
Post <1.000m
Polizei <1.500m
Verkehr
Bus <500m
Autobahnanschluss <2.500m
Bahnhof <2.500m
Angaben Entfernung Luftlinie / Quelle: OpenStreetMap
Eckdaten
| Objektnr: | 4760/518 |
| Art: | Wohnung |
| Land: | Österreich |
| Baujahr: | 2024 |
| Zustand: | Erstbezug |
| Alter: | Neubau |
| Kaufpreis: | 390.000,00 € |
| Provision: | 14.040,00 € inkl. 20% USt. |
| Wohnfläche: | 99,95 m² |
| Nutzfläche: | 109,33 m² |
| Grundstücksfl.: | 1.749,00 m² |
| Zimmer: | 3 |
| Bäder: | 1 |
| WC: | 1 |
| Balkone: | 1 |
| Stellplätze: | 1 |
| Keller: | 2,00 m² |
| Heizwärmebedarf: | B 27,06 kWh/m²a |
| fGEE: | A+ 0,58 |
Ausstattung
Parkett, Fußbodenheizung, Einbauküche, Wohnküche / offene Küche, Personenaufzug, Badewanne, Dusche, Parkplatz, Tiefgarage
Internet und TV
Information zur Internet und TV Versorgung hier
Ihre persönliche Beratung
Victor Vassilev
Per.Fact Immo E.U.
E vassilev@perfact-immo.at
T 0676/4774191
