VERKAUFT!!! 2.Bauabschnitt!!! Wohnpark Schladming Haus West TOP 0.1 - Hochwertige Neubauwohnung in Zentrumsnähe

Wohnung - Etage, 8970 Schladming

Beschreibung der Immobilie

+++ WOHNPARK SCHLADMING STARTET DEN 2.BAUABSCHNITT+++

Der Baustart vom Projekt "Wohnpark Schladming" ist im September 2024 erfolgt.
Nun geht es in die zweite Runde, gesamt 20 Wohnungen in den Häusern "WEST" und "SÜD" angeboten!

Eine genaue Übersicht und alle Informationen zum Projekt, bekommen sehr gerne auf Anfrage!

Sie suchen ein neues Zuhause? Dann sind Sie hier genau richtig!

Von RE/MAX Nature in Schladming zum Kauf angeboten wird der "WOHNPARK SCHLADMING" - ein hochwertiges Neubauprojekt in bester Lage.
Es wird unweit des Zentrums mit herrlichem Blick in die umliegende Bergwelt gebaut und umfasst insgesamt im Endausbau 47 Wohnungen, welche sich auf 4 verschiedene Häuser aufteilen.
Ausgestattet mit großzügigen Sonnenterrassen bzw. Eigengärten und Tiefgaragenplätzen.

Eigennutzung wie auch der Kauf als Anlageimmobilie ist möglich. Bei Bedarf bzw. Interesse erhalten Sie von uns den Nettopreis der für Sie interessanten Wohnung gerne auf Anfrage.

Das Leben ist es wert, besonders gestaltet zu werden. Die Wohnqualität ist ein angenehmer Teil dieser Gestaltungsmöglichkeiten, sie erzeugt ihren Mehrwert auf eine ganz besondere Weise.
Im gegebenen Projekt bieten das umgesetzte, architektonische Konzept eine umfassende Basis dafür, eine gelungene Symbiose zwischen dem Bauwerk selbst sowie Mensch und Natur kann und wird entstehen.

Der Bauabschnitt 2 umfasst 20 Wohnungen, diese sind nun terminlich fixiert und werden aktuell zum Kauf angeboten.
Die 2-, 3- und 4-Zimmer-Wohnungen sind barrierefrei ausgeführt und über Tiefgarage und Lift erreichbar.
Die Wohnflächen reichen von ca.52m² bis hin zu ca.98m².
Lichtdurchflutete Räumlichkeiten und eine hochwertige Ausstattung sowie die Ausführung in Massivbauweise sorgen für maximale Wohnqualität.
Genauso wird das Projekt den ökologischen Anforderungen sicherlich gerecht, dafür sorgen zum Beispiel ein Gründach und die Anbindung an das Biomassefernwärmenetz (Wartungs- und Instandhaltungsfreiheit).
Eine bemerkenswerte Wertigkeit liefern zudem die bis zu 3 Meter tiefen Terrassen, welche zum einen den idealen Sichtschutz und zum anderen eine natürliche Beschattung garantieren.
Highlights sind auch die Ausrichtung ALLER Wohnungen nach Süden oder Westen sowie die mindestens 2,5 Meter breiten Tiefgaragenparkplätze.
Eine ideale Gestaltung der Außenbereiche mit autofreier Ruhezone, sowie ein ebenerdiger Kinderwagen- und Fahrradabstellplatz runden das Angebot ab.

Alle, die nur wenige Minuten vom Stadtkern entfernt wohnen möchten und sich ein individuell gestaltetes Zuhause wünschen, finden hier wahrscheinlich genau das Richtige.
Dank der ausgezeichneten Anbindung an die öffentlichen Verkehrsmittel - Bushaltestelle und Bahnhof befinden sich in unmittelbarer Nähe - ist das Wohnprojekt auch für Menschen ohne Auto bestens geeignet.

Bei Interesse bieten wir Ihnen gerne unsere volle Unterstützung an, ganz an Ihre individuellen Fragen und Bedürfnissen angepasst, und das vom ersten Interesse bis zur Kaufentscheidung und darüber hinaus.

++++++++++++++
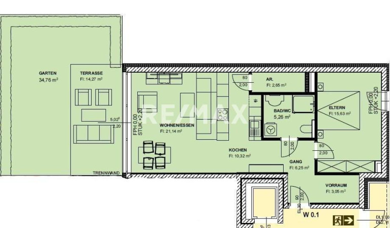
Die hier angebotene WOHNUNG W 0.1 (Haus West, EG, Top 1) bietet eine Wohnfläche von ca.65,3m², dazu eine Terrasse mit ca.14,3m² sowie einen Garten mit ca.34,76m², zusätzlich ein Kellerabteil.
Sie unterteilt sich in Vorraum, Abstellraum, Bad mit WC, den schönen Wohn-Koch-Essbereich sowie einem weiteren Zimmer.

Der Kauf eines Tiefgaragenstellplatzes ist obligat und wird ab € 29.000,00 angeboten.

Sowohl die Planai Talstation (Hochwurzen), als auch das Stadtzentrum von Schladming sind in wenigen Gehminuten zu erreichen.
++++++++++++++

Die berühmte Bergstadt Schladming - Austragungsort der Schi-WM 2013 - ist eine Wintersportmetropole mit Weltruf und im Feriendorf Rohrmoos heißt die Devise "vom Bett aufs Brett", denn hier befinden sich die zentralen Skiberge Planai und Hochwurzen direkt vor der Haustüre, ein riesiges Wintersport Eldorado erwartet Sie.
Abseits der Piste gibt es ein wunderschönes Langlauf Loipennetz, eine Rodelbahn, die Tag und Nacht in Betrieb ist, ein Erlebnisschwimmbad, Winterwanderwege, einen Eislaufplatz, die Indoor Sportangebote, Museen, Pferdeschlittenfahrten, Fackelwanderungen und vieles mehr. Im Sommer findet man ein riesiges Wanderwegenetz mit traumhaften Wasserlandschaften, Mountainbike Routen, Radwege, Klettern, Erlebnisbad, Golf und Minigolf, Rafting, Kulturangebote, Aktionsportarten etc. vor.

Für weitere Fragen bzw. Terminvereinbarungen rufen Sie bitte einfach an oder schreiben uns eine E-Mail.

PS: BITTE BEACHTEN SIE, DASS WIR AUFGRUND DER NACHWEISPFLICHT GEGENÜBER DEM EIGENTÜMER NUR ANFRAGEN UNTER ANGABE DER VOLLSTÄNDIGEN ANSCHRIFT SAMT TELEFONNUMMER BEARBEITEN KÖNNEN, DIESEN ANFORDERUNGEN NICHT GERECHT WERDENDE ANFRAGEN MÜSSEN LEIDER UNBEANTWORTET BLEIBEN!
Angaben gemäß gesetzlichem Erfordernis:
Heizwärmebedarf:34.0 kWh/(m²a)
Klasse Heizwärmebedarf:B
Faktor Gesamtenergieeffizienz:0.64
Klasse Faktor Gesamtenergieeffizienz:A+

Eckdaten

Objektnr: 2445_2904
Art: Wohnung - Etage
Land: Österreich
Baujahr: ca. 2024
Zustand: Erstbezug
Kaufpreis: 530.000,00
Provision: 3.00 %
Wohnfläche: 65,30 m²
Zimmer: 2
Bäder: 1
WC: 1
Terrassen: 1
Stellplätze: 1
Garten: 34,76 m²
Keller: 4,83 m²
Heizwärmebedarf:  B  34,00 kWh/m²a
fGEE:  A+  0,64
Immobilie merken Exposé

Ausstattung

Zentralheizung, Personenaufzug, Kabel/Satelliten-TV, Garage


Internet und TV

Information zur Internet und TV Versorgung hier


Immobilie anfragen


Ihre persönliche Beratung

RE/MAX Nature 1 in Liezen

Fabio Perali

RE/MAX Nature 1 in Liezen

E f.perali@remax-nature.at

T +43361230262

H +43 3612 302 62-32