Bungalow-Idylle am See mit 4 Zimmern auf 85 m²

Haus - Bungalow, 7061 Trausdorf an der Wulka

Beschreibung der Immobilie

Ihr Paradies am Esterhazysee in Trausdorf an der Wulka!

Hier erwartet Sie ein idyllischer Bungalow, in einer Siedlung am malerischen Ufer des Esterhazysees. Der See-Anlage ist nicht öffentlich zugänglich.

Mit einer Wohnfläche von ca. 85 Quadratmetern und einem Mietgrundstück von 600 Quadratmetern bietet dieses Juwel Raum für Erholung und Entspannung inmitten unberührter Natur.

Dieser Bungalow wurde ca. 1980 in Massivbauweise errichtet, die Fassade verfügt über eine Wärmedämmung, eine neuwertige Gastherme und im Jahr 2024 wurde die beheizbare Veranda mit einer neuen Glasfront und großzügigen Terrassen-Schiebetüren ausgestattet.

Der Zustand der Räume ist altersentsprechend. Renovierungs- bzw. Sanierungsmaßnahmen sind vorzunehmen.

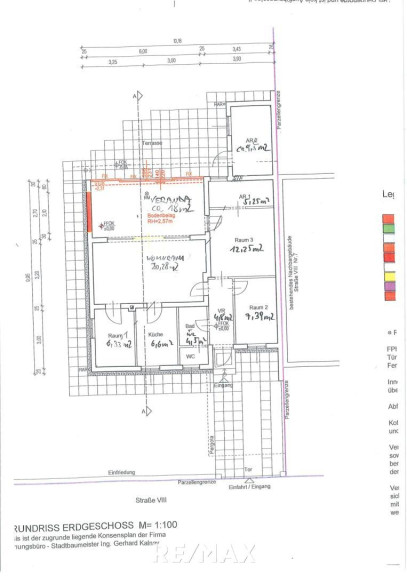
Das ca. 85 m² große Haus bietet Ihnen ein Wohnzimmer mit großer Veranda, Küche, Bad, drei kleinere Schlafräume und einen kleinen Schrankraum.

Der liebevoll gestaltete Garten ist ein Paradies für Naturfreunde und bietet eine Vielzahl von blühenden Pflanzen.

Diese Immobilie vereint die Vorzüge eines gemütlichen Zuhauses mit der Schönheit und Ruhe der Natur. Ob Sie sich nach Entspannung sehnen, sportliche Aktivitäten lieben oder einfach die Stille der Landschaft genießen möchten – hier finden Sie alles, was das Herz begehrt.

Kommen Sie und entdecken Sie Ihren persönlichen Rückzugsort am Esterhazysee! Vereinbaren Sie jetzt gleich Ihren persönlichen Besichtigungstermin!

AUSSTATTUNGDETAILS:
+ neuwertige Gastherme
+ Neue Glasfront zum Garten
+ Alarmanlage
+ Brunnen
+ Abstellraum
+ Geräteschuppen

RAUMPLAN:
+ Wohnzimmer: ca. 20 m²
+ Beheizbare Veranda: ca. 18 m²
+ Küche: ca. 6,6 m²
+ Badezimmer: ca. 4,5 m²
+ Vorzimmer: ca. 4,8 m²
+ Schlafzimmer: ca. 12 m²
+ Schrankraum: ca. 5 m²
+ Zimmer: ca. 6,3 m²
+ Zimmer: ca. 7,3 m²

MIETKONDITIONEN FÜR DAS GRUNDSTÜCK:
Der Mietvertrag wird für 10 Jahre mit einer vertraglichen Option auf weitere 10 Jahre abgeschlossen. Danach kann der Pachtvertrag erneuert werden.

Die jährliche Pacht/Miete für das Grundstück beträgt derzeit ca. € 5.363, - (Wertgesichert für 10 Jahre.
Für die 2. Vertragsperiode: Jährlich ca. € 5.899, -

Für die Errichtung des Pacht- bzw. Mietvertrages sind ca. € 1.434,88 einmalig zu bezahlen.

LAGE:
Trausdorf an der Wulka ist ein typisch burgenlandkroatischer Ort mit ca. 2062 Einwohnern im Burgenland im Bezirk Eisenstadt-Umgebung. Durch die Nähe zur Landeshauptstadt Eisenstadt und der sehr guten Verkehrsanbindung an Wien, erfreut sich Trausdorf als Wohnort großer Beliebtheit.

Die ruhige Lage zwischen Leithagebirge und Neusiedlersee bietet jede Menge Erholung für jedes Alter. Die Gemeinde ist ein idealer Ausgangspunkt zu zahlreichen Ausflugszielen im Nord- und Mittelburgenland, wie: Neusiedlersee, Seefestspiele Mörbisch, Oper im Steinbruch, Familypark, Schloss Esterhazy und vieles mehr. An den Ufern der Wulka kann man gemütlich entlang der Kunstmeile spazieren.

Trausdorf hat sich den Charm eines typischen Weinbauortes des Nordburgenlandes erhalten. Kulturell und touristisch hat der Ort auch einiges zu bieten.

Einige gastronomische Betriebe, ein Spar, Kindergarten und Volksschule, bieten den perfekten Rahmen für Ihren neuen Lebensmittelpunkt.

ENTFERNUNGEN:
Ortszentrum: 2.4km
Volksschule: 2.4km
Spar: 3km
Autobahnanschluss: 2,9km
Eisenstadt Zentrum: 5km
Mörbisch: 15km
Familypark: 8km
Wien Stadtgrenze: 45km
Flughafen: 60km
Sopron (H): 20km


SONSTIGE ANGABEN:
Die Angaben zum Objekt basieren auf uns zur Verfügung gestellten Informationen. Eine Haftung unsererseits ist hierfür ausgeschlossen. Detailfragen werden im Zuge von Besichtigungen besprochen, geklärt oder nachgereicht.

Wir bitten um Verständnis, dass wir aufgrund der Nachweispflicht gegenüber dem Eigentümer, nur Anfragen mit vollständigen Kontaktdaten (Name, Anschrift, Tel.-Nr., E-Mail) beantworten können.

Wir informieren Sie darüber, dass wir bei diesem Objekt eine Doppelmaklertätigkeit ausüben. (§ 5 Abs. 3 MaklerG.)

Sie haben noch keine Finanzierung oder interessieren sich für ein Vergleichsangebot? Sprechen Sie uns an - wir arbeiten mit langjährigen Finanzierungspartnern zusammen und vermitteln Ihnen gerne einen kompetenten Finanzierungsberater, der Ihnen unverbindlich ein individuelles Angebot erstellt.

Dieses Angebot ist unverbindlich und einer Zwischenverwertung vorbehalten.
Angaben gemäß gesetzlichem Erfordernis:
Heizwärmebedarf:120.4 kWh/(m²a)
Klasse Heizwärmebedarf:D
Faktor Gesamtenergieeffizienz:1.65
Klasse Faktor Gesamtenergieeffizienz:C

Nur auf remax.at finden Sie neue RE/MAX Immobilien früher und vollständig, und mit der RE/MAX App sofort am Handy!

Eckdaten

Objektnr: 2275_7299
Art: Haus - Bungalow
Land: Österreich
Baujahr: ca. 1980
Kaufpreis: 149.000,00
Provision: 3.00 %
Wohnfläche: 85,00 m²
Nutzfläche: 15,00 m²
Grundstücksfl.: 601,00 m²
Zimmer: 4
Bäder: 1
WC: 1
Terrassen: 1
Stellplätze: 1
Heizwärmebedarf:  D  120,00 kWh/m²a
fGEE:  C  1,65
Immobilie merken Exposé

Ausstattung

Gas, Zentralheizung, Kabel/Satelliten-TV, Parkplatz, Alarmanlage


Internet und TV

Information zur Internet und TV Versorgung hier


Immobilie anfragen


Ihre persönliche Beratung

RE/MAX Style

Andreas Batka

RE/MAX P&I in Neusiedl/S.

E a.batka@remax-pi.at

H +43 660 628 45 24