Jetzt verfügbar: Büroetage auf ca. 1.500 m²
Büro / Praxis
- Bürohaus,
1110
Wien
Lage der Immobilie
Die angebotene Bürofläche befindet sich in einer der aufstrebenden Gegenden Wiens, inmitten des lebendigen 11. Bezirks. Diese Lage besticht durch eine hervorragende Anbindung an das öffentliche Verkehrsnetz, das schnelle und bequeme Verbindungen in das Stadtzentrum sowie zu den umliegenden Bezirken garantiert. In unmittelbarer Nähe finden sich mehrere Straßenbahn- und Bushaltestellen, welche die Mobilität innerhalb der Stadt maßgeblich erleichtern. Die Umgebung ist geprägt von einer dynamischen Mischung aus traditioneller Wiener Architektur und modernen Neubauten. Sie bietet eine Vielzahl an Annehmlichkeiten, darunter gemütliche Cafés, vielseitige Restaurants und zahlreiche Einkaufsmöglichkeiten. Diese Vielfalt macht den Standort sowohl für Angestellte als auch für Besucher besonders attraktiv. Die Anbindung an den öffentlichen Verkehr ist hervorragend: •Autobuslinie 69A (drei Stationen zur U-Bahn-Linie U3) •Straßenbahnlinie 6 •Schnellbahnlinie S7 (Flughafenschnellbahn)Beschreibung der Immobilie
Eckdaten
Objektnr: | 130097_6 |
Art: | Büro / Praxis - Bürohaus |
Land: | Österreich |
Baujahr: | 2002 |
Zustand: | Neuwertig |
Gesamtmiete: | 24.105,31 € |
Kaltmiete (netto): | 14.761,46 € |
Kaltmiete: | 17.713,75 € |
Miete / m²: | 11,64 € |
Provision: | 3 Bruttomonatsmieten zzgl. 20% USt. |
Betriebskosten: | 5.326,30 € |
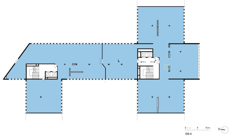
Nutzfläche: | 1.521,80 m² |
Heizwärmebedarf: | B 40,90 kWh/m²a |
fGEE: | B 0,99 |
Ausstattung
Teppichboden
Internet und TV
Information zur Internet und TV Versorgung hier
Ihre persönliche Beratung

Gottfried Bischof
IMMOcontract Immobilien Vermittlung GmbH
E G.Bischof@IMMOcontract.at
H 0043676841420554