3-Zimmer-Dachgeschoßwohnung mit Terrasse
Wohnung
- Dachgeschoß,
1090
Wien
Lage der Immobilie
Volksoper / Währinger StraßeBeschreibung der Immobilie
ALLGEMEIN
Diese gemütliche 3-Zimmer-Dachgeschoßwohnung ist der ideale Rückzugsort mitten im lebendigen Stadtleben. Sie bietet nicht nur einen ruhigen Balkon mit Blick in den Innenhof, sondern auch eine Terrasse, die zum Entspannen einlädt. Die Wohnung besticht durch ihre perfekte Anbindung an den öffentlichen Verkehr, sodass Sie das Stadtzentrum schnell erreichen können. Nur wenige Gehminuten entfernt liegt die Währingerstraße, die mit zahlreichen Geschäften und Märkten zum Bummeln und Entdecken einlädt. Ein Ort, an dem Sie urbanes Leben mit Ruhe und Komfort vereinen können.
RAUMAUFTEILUNG / AUSSTATTUNG
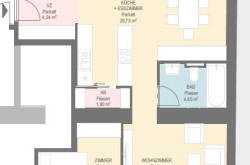
In diese äußerst schöne Dachgeschoßwohnung gelangen Sie über ein einladendes Vorzimmer mit praktischem Abstellraum. Weiter führt der Weg in eine großzügige Küche mit zusätzlichem Abstellraum und einem großen Essbereich, der auf einen Balkon mit Blick in den grünen Innenhof führt, der von schönem Baumbestand umgeben ist. Ein Gang verbindet das Badezimmer mit WC und führt zu weiteren Zimmern, die flexibel als Wohnzimmer mit Schlafzimmer oder als zwei separate Schlafzimmer genutzt werden können. Von hier aus gelangen Sie auf eine weitere, idyllische Terrasse, die zusätzlichen Raum für Entspannung bietet. Die Wohnung bietet zudem zahlreiche Annehmlichkeiten, darunter eine hochwertige Einbauküche, Luftwärmepumpe, Fußbodenheizung und Klimaanlagen, die für höchsten Komfort sorgen.
INFRASTRUKTUR
Die Immobilie befindet sich nur wenige Gehminuten von der Nußdorfer Straße und der Währinger Straße entfernt. Die Nahversorgung ist durch zahlreiche Geschäfte in der Umgebung hervorragend. Die Anbindung an das öffentliche Verkehrsnetz ist optimal, mit der U6 Währinger Straße/Volksoper sowie den Straßenbahnlinien 5, 33, 37, 38, 40-42 und der Autobuslinie 40A in unmittelbarer Nähe.
INFORMATION
Oben angeführte Angaben basieren auf Informationen und Unterlagen des Eigentümers und sind unsererseits ohne Gewähr.
Provision: 3% + 20% USt.
Hinweis: Im Rahmen unserer Offenlegungspflichten weisen wir darauf hin, dass unsere Fotos mittels KI-Technologien optisch verschönert und bearbeitet werden, sowie leere Räume mittels KI-Technologien virtuell möbliert und dekoriert werden. Betreffende Visualisierungen tragen als Bildunterschrift Bezeichnungen wie "KI-generierter Einrichtungsvorschlag"
Wir weisen darauf hin, dass zwischen dem Vermittler und dem zu vermittelnden Dritten ein familiäres oder wirtschaftliches Naheverhältnis besteht.
Der Vermittler ist als Doppelmakler tätig.
Infrastruktur / Entfernungen
Gesundheit
Arzt <500m
Apotheke <500m
Klinik <500m
Krankenhaus <500m
Kinder & Schulen
Schule <500m
Kindergarten <500m
Universität <500m
Höhere Schule <500m
Nahversorgung
Supermarkt <500m
Bäckerei <500m
Einkaufszentrum <2.000m
Sonstige
Geldautomat <500m
Bank <500m
Post <500m
Polizei <1.000m
Verkehr
Bus <500m
U-Bahn <500m
Straßenbahn <500m
Bahnhof <500m
Autobahnanschluss <2.000m
Angaben Entfernung Luftlinie / Quelle: OpenStreetMap
Eckdaten
| Kaufpreis: | 890.000,00 € |
| Fläche: | 75,00 m² |
| Zimmer: | 3 |
Basisdaten zur Immobilie
| Objektnr: | 2754 |
| Art: | Wohnung - Dachgeschoß |
| Land: | Österreich |
| Zustand: | Erstbezug |
| Alter: | Altbau |
| Kaufpreis: | 890.000,00 € |
| Betriebskosten: | 188,45 € |
| MwSt Gesamt: | 21,49 € |
| Wohnfläche: | 75,00 m² |
| Zimmer: | 3 |
| Bäder: | 1 |
| WC: | 1 |
| Balkone: | 1 |
| Terrassen: | 1 |
| Heizwärmebedarf: | B 40,70 kWh/m²a |
| fGEE: | A+ 0,66 |
Ausstattung
Fliesen, Parkett, Solarenergie, Fußbodenheizung, Einbauküche, Wohnküche / offene Küche, Personenaufzug, Südbalkon, Badewanne, Kabel/Satelliten-TV
Internet und TV
Information zur Internet und TV Versorgung hier
Ihre persönliche Beratung
Alexander Hamersky
Marschall Immobilien GmbH
a.hamersky@marschall.at
+43 676 700 79 18
+436767007918
