Charmante 2-Zimmer Wohnung mit effizienter Raumaufteilung!! - Rohdiamant sucht letzten Schliff ++Videorundgang++
Wohnung
,
8020
Graz
Beschreibung der Immobilie
Diese Immobilie überzeugt vor allem durch Ihre überaus effiziente Raumaufteilung sowie ihrem Altbau-Charme. Mit einem kleinen Kapital können Sie diesem Rohjuwel den letzten Schliff geben. Ein separates Zimmer sowie der zentrale Wohn/Kochbereich machen diese Wohnung ideal für Single's.
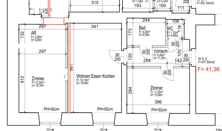
Die Raumaufteilung auf einen Blick:
- Vorraum
- 1tes Zimmer (mit 11,25m²)
- Bad mit Wanne
- separates WC
- Wohnküche (mit 19,13m²)
Ebenso würde sich diese Einheit als Büro bestens eigenen!
Bitte beachten Sie, dass Anfragen ausschließlich per Mail oder WhatsApp angenommen werden können. Für einen Besichtigungstermin oder Fragen stehe Ich, Patrick Großschädl, BSc, Ihnen unter Whatsapp Whatsapp gerne zur Verfügung.
Unsere Auswahl an Anzeigen ist momentan sehr umfangreich und es ist uns nicht möglich, alle Angebote auf den verschiedenen Online-Plattformen zu präsentieren. Deshalb laden wir Sie herzlich ein, unsere Homepage www.papst-immo.at zu besuchen, um einen Überblick über unser gesamtes Angebot zu erhalten.
Eckdaten
| Kaufpreis: | 154.900,00 € |
| Fläche: | 41,36 m² |
| Zimmer: | 2 |
Basisdaten zur Immobilie
| Objektnr: | O2100164644 |
| Art: | Wohnung |
| Land: | Österreich |
| Alter: | Altbau |
| Kaufpreis: | 154.900,00 € |
| Provision: | 3 % zzgl. 20% MwSt. |
| Wohnfläche: | 41,36 m² |
| Gesamtfläche: | 41,36 m² |
| Zimmer: | 2 |
| Bäder: | 1 |
| WC: | 1 |
| Heizwärmebedarf: | C 97,00 kWh/m²a |
| fGEE: | C 1,75 |
Ausstattung
Parkett, Fernwärme, Einbauküche, Badewanne, Kabel/Satelliten-TV
Internet und TV
Information zur Internet und TV Versorgung hier
Ihre persönliche Beratung
BSc Patrick Großschädl
Papst Immobilien GmbH
info@papst-immo.at
0650 8286331
