4-Zimmer-Erstbezugs-Penthouse mit Dachterrassen nahe AKH

Wohnung - Penthouse, 1180 Wien , Staudgasse 40

Beschreibung der Immobilie

Das exklusive Neubauprojekt in der Staudgasse im 18. Bezirk, vereint modernen Wohnkomfort mit dem Charme des traditionsreichen Währinger Bezirks. In einer ruhigen Seitenstraße gelegen, bietet es eine perfekte Balance zwischen urbaner Lebendigkeit und entspannter Wohnatmosphäre. Alle Wohnungen sind bezugsbereit, nur eine Küche muss noch eingebaut werden.

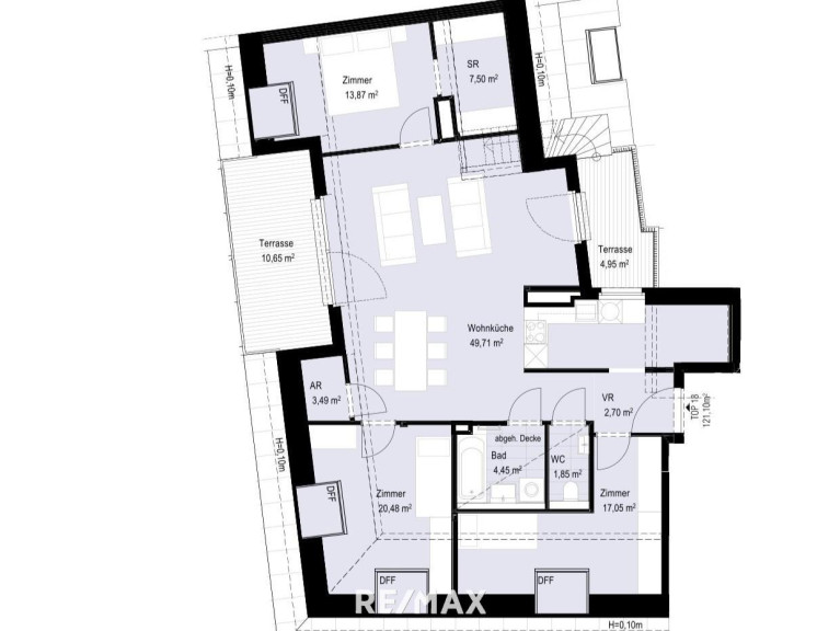
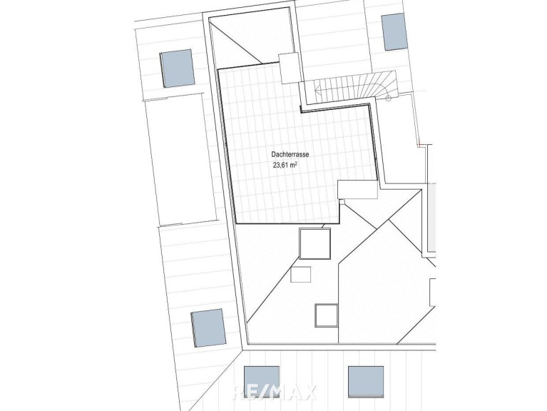
Diese exklusive 4-Zimmer-Wohnung im 2. Dachgeschoss verfügt über zwei Terrassen sowie eine Dachterrasse mit ca. 23,61 m². Die ca. 49,71 m² große Wohnküche ist ideal aufgeteilt. Über die Wohnküche gelangt man auf eine ca. 10,65 m² große, westseitige Terrasse sowie eine ca. 4,95 m² große hofseitige Terrasse, die mit dem Aufgang zur beeindruckenden Dachterrasse ausgestattet ist. Zwei weitere Zimmer sind westseitig, ein Zimmer südseitig ausgerichtet. Das Badezimmer ist mit einer Badewanne und einem Waschmaschinenanschluss ausgestattet. Das WC ist separat und hat ein Waschbecken.

360°-Bilder auf www.remax.at/3801-1012
In diesem Projekt haben Sie Wohnkomfort auf höchstem Niveau:
- Durchdachte Grundrisse für optimale Raumnutzung
- Hochwertige Ausstattung mit Parkettböden und Fußbodenheizung
- Freiflächen wie Balkone, Terrassen oder Gärten bei den meisten Wohneinheiten
- Energieeffiziente Bauweise für nachhaltiges Wohnen
- Kellerabteil für jede Wohnung
- Großer Fahrradabstellraum im Keller
- Tiefgaragenplätze optional zu erwerben

Lage und Umgebung:
- Ausgezeichnete öffentliche Verkehrsanbindung mit den Linien 9, 40, 41, 42 und U6
- Vielfältige Einkaufsmöglichkeiten und Restaurants in unmittelbarer Nähe
- Das Allgemeine Krankenhaus ist nur 10 Min Fußweg entfernt

Der Verkaufspreis für Anleger mit Vorsteuerabzugsberechtigung beträgt € 1.317.523,-.
Stellplätze können ab € 30.000,- dazu erworben werden.

Wohnen in Währing:
Der 18. Wiener Gemeindebezirk ist bekannt für seine hohe Lebensqualität. Die Nähe zum Wienerwald, zahlreiche Grünflächen und die ausgezeichnete Infrastruktur machen den Bezirk zu einer der begehrtesten Wohngegenden Wiens. Dieses Neubauprojekt in der Staudgasse 40 bietet nicht nur ein Zuhause, sondern einen Lebensstil - urban, komfortabel und zukunftsweisend. Es vereint die Vorzüge des städtischen Lebens mit dem Komfort moderner Wohnkonzepte und schafft so einen Ort zum Wohlfühlen.

Gerne unterstützen wir Sie, auch wenn es um die Finanzierung geht! Unsere Makler können eine unverbindliche Erstüberprüfung Ihres Finanzierungsbedarfs für dieses Objekt durchführen. Sprechen Sie Ihren Makler oder Ihre Maklerin aktiv an, wenn Sie noch keine Finanzierungszusage haben!

Wir weisen auf ein wirtschaftliches Nahverhältnis zum Eigentümer wegen einer weiteren Vermittlung und auf unsere Doppelmaklertätigkeit hin.
Angaben gemäß gesetzlichem Erfordernis:
Heizwärmebedarf:33.6 kWh/(m²a)
Klasse Heizwärmebedarf:B
Faktor Gesamtenergieeffizienz:0.78
Klasse Faktor Gesamtenergieeffizienz:A

Eckdaten

Objektnr: 3801_1012
Art: Wohnung - Penthouse
Land: Österreich
Baujahr: ca. 2024
Zustand: Erstbezug
Alter: Neubau
Kaufpreis: 1.436.100,00
Provision: 3.00 %
Wohnfläche: 121,00 m²
Zimmer: 4
Bäder: 1
WC: 1
Terrassen: 2
Stellplätze: 1
Keller: 1,49 m²
Heizwärmebedarf:  B  33,60 kWh/m²a
fGEE:  A  0,78
Immobilie merken Exposé

Ausstattung

Zentralheizung, Personenaufzug, Garage


Internet und TV

Information zur Internet und TV Versorgung hier


Immobilie anfragen


Ihre persönliche Beratung

RE/MAX Together

Amber Lai

RE/MAX Together

E Amber.Lai@remax-together.at

H +43 660 1150 055