Welser Hütte auf der Postalm
Haus
,
5441
Abtenau
Beschreibung der Immobilie
Eine seltene Gelegenheit bietet sich Ihnen zum Erwerb der Welser Hütte auf der Postalm.
Auf 1.200 bis 1.900 m Seehöhe liegt Österreichs größtes zusammenhängendes Almplateau und Naturparadies.
Bequem über die Postalmstraße von Strobl oder von Abtenau erreichen Sie das einmalige Landschaftsschutzgebiet und inmitten diesem liegt in bester Panoramalage, die Welser Hütte.
Auf einer leichten Anhöhe nach Süden situiert, bietet die Welser Hütte einen wunderschönen Blick auf die umliegenden Berggipfel. Ursprünglich wurde die Hütte im Jahr 1933 als Schutzhütte gegründet. Der jetzige Eigentümer hatte die Möglichkeit diese 2001 zu erwerben und führte 2006 maßgebliche Sanierungen durch. Die Hütte wird vom Eigentümer als Beherbergungsbetrieb geführt.
Wir verweisen auf die Funktion als Doppelmakler und auf das wirtschaftliche Naheverhältnis zum Auftraggeber.
Eckdaten
| Kaufpreis: | 1.750.000,00 € |
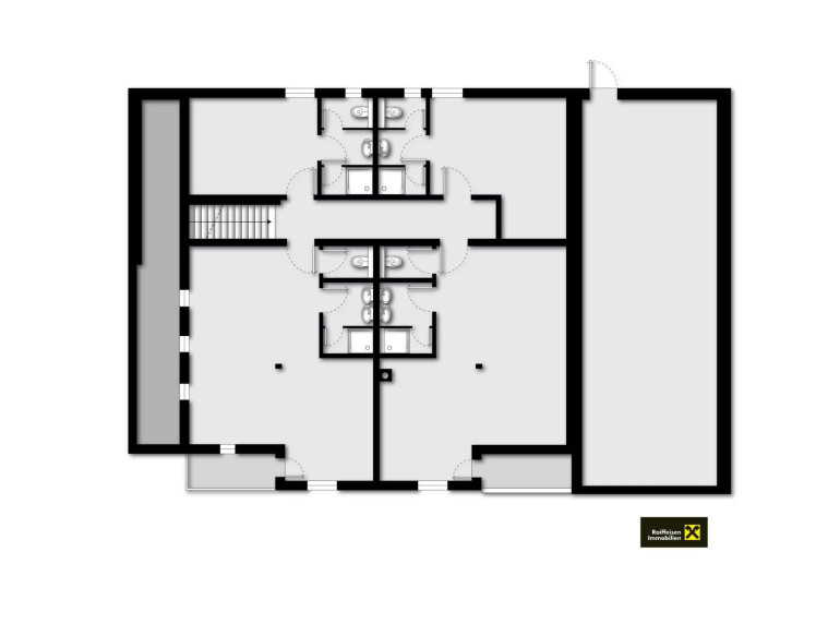
| Fläche: | 351,00 m² |
| Zimmer: | 7 |
Basisdaten zur Immobilie
| Objektnr: | 0003002665 |
| Art: | Haus |
| Land: | Österreich |
| Baujahr: | ca. 1933/2006 |
| Kaufpreis: | 1.750.000,00 € |
| Kaufpreis / m²: | auf Anfrage |
| Provision: | 3% des Kaufpreises plus 20% USt. |
| Nutzfläche: | 351,00 m² |
| Grundstücksfl.: | 1.007,00 m² |
| Zimmer: | 7 |
| Bäder: | 5 |
| WC: | 2 |
| Terrassen: | 1 |
| Keller: | 25,00 m² |
| Heizwärmebedarf: | G 276,00 kWh/m²a |
| fGEE: | D 2,46 |
Ausstattung
Elektro, Heizofen
Internet und TV
Information zur Internet und TV Versorgung hier
Ihre persönliche Beratung
Regina Schnopfhagen
Raiffeisen Salzburg
regina.schnopfhagen@immoraiffeisen.at
+43 6227 2269 23
+43 6227 2269 23
