Ein- bis Zweifamilienhaus mit großem Garten
Haus
- Einfamilienhaus,
5111
Bürmoos
Lage der Immobilie
Bürmoos ist eine der nördlichsten Gemeinden des Bundeslandes Salzburg und profitiert von einer Vielzahl an naturnahen Freizeitgestaltungsmöglichkeiten und Infrastruktur für Familien. Dank der Lokalbahn, welche im 15-Minuten-Takt in Richtung Salzburg fährt, ist man hier bestens an die Landeshauptstadt und die umliegenden Gemeinden angebunden.
Im Ort selbst, und vom Haus aus fußläufig erreichbar, gibt es ein breites Angebot an Supermärkten und Geschäften, Ärzten und Restaurants. Ein Fitnessstudio und der Bürmooser See, der besonders im Sommer ein beliebter Erholungsort ist, sind ebenfalls nur wenige Minuten entfernt.
Familien profitieren vom nahegelegenen Kindergarten, der Volksschule und Mittelschule im Ort. Weitere Schulen, wie beispielsweise die Musik-Mittelschule in Lamprechtshausen oder die HAK in Oberndorf, sowie ein breites Angebot an Gymnasien in Salzburg sind mühelos mit den Öffis erreichbar.
Die Kombination aus guter Infrastruktur, naturnaher Umgebung und schneller Verkehrsanbindung macht dieses Haus zu einem idealen Wohnort für Familien und Berufstätige.
Beschreibung der Immobilie
Ländliches Familienleben im nördlichen Flachgau mit perfekter Anbindung!
Das gemütliche Haus liegt am Rande des Bürmooser Ortszentrumsund bietet daher einen perfekten Zugang zur Infrastruktur des Ortes, sowie - dank der Lokalbahn - eine ausgezeichnete Anbindung an die umliegenden Orte und die Landeshauptstadt Salzburg.
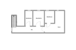
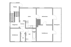
Es ist derzeit in zwei Wohneinheiten mit je einem Bad, einer Wohnküche, einem Wohnzimmer und zwei Schlafzimmern eingeteilt, kann aber mühelos in ein großes Einfamilienhaus umgewandelt werden.
Highlight des Hauses ist der viele Stauraum, der im Keller und im Dachboden, sowie im Nebengebäude gegeben ist, und natürlich der traumhafte Garten. Dieser umschließt das Gebäude und biete vor allem hinter dem Haus eine große sonnige Fläche, die ganz nach eigenen Wünschen gestaltet werden kann.
Das Grundstück ist nicht vermessen und nicht im Grenzkataster eingetragen.
Wir verweisen auf unsere Funktion als Doppelmakler.
Eckdaten
| Kaufpreis: | 549.000,00 € |
| Fläche: | 145,00 m² |
| Zimmer: | 6 |
Basisdaten zur Immobilie
| Objektnr: | 0003001885 |
| Art: | Haus - Einfamilienhaus |
| Land: | Österreich |
| Baujahr: | ca. 1955 |
| Kaufpreis: | 549.000,00 € |
| Provision: | 3% des Kaufpreises plus 20% USt. |
| Wohnfläche: | 145,00 m² |
| Grundstücksfl.: | 764,00 m² |
| Zimmer: | 6 |
| Bäder: | 2 |
| WC: | 2 |
| Balkone: | 1 |
| Terrassen: | 1 |
| Keller: | 36,00 m² |
| Heizwärmebedarf: | D 148,00 kWh/m²a |
| fGEE: | C 1,67 |
Ausstattung
Gas, Zentralheizung
Internet und TV
Information zur Internet und TV Versorgung hier
Ihre persönliche Beratung
Jana Karl
Raiffeisen Salzburg
jana.karl@immoraiffeisen.at
+43662888614226
+43 662 8886 14221
