Beschreibung der Immobilie
Wohnen am Donaufeld
Im 21. Bezirk Wiens entsteht ein modernes Wohngebäude mit 30 Eigentumswohnungen perfekt auf unterschiedliche Bedürfnisse zugeschnitten. Die durchdachten 2- bis 4-Zimmer-Wohnungen bieten Wohnflächen zwischen 35 m² und 93 m² und erfüllen vielfältige Ansprüche an ein komfortables Wohnen.
Die ruhige Lage in Floridsdorf überzeugt mit einer hervorragenden Anbindung an die Wiener Innenstadt sowie an das öffentliche Verkehrsnetz.
Die Fakten:
- 30 Eigentumswohnungen
- 2 bis 4 Zimmer mit Wohnflächen von ca. 35 bis 93 m²
- Naherholungsgebiet Alte Donau
- Kleinkinderspielplatz
- 13 Tiefgaragenstellplätze
- Ideal für Anleger und Eigennutzer
Die Ausstattung:
- Eichenparkettböden
- Hochwertige Sanitärausstattung
- Fußbodenheizung über Luft-Wasser-Wärmepumpe oder andere energieschonende Wärmeerzeugungsanlagen
- Kunststofffenster
- Außenliegend Sonnenschutz (manuelle Bedienung).
Die Lage
Genießen Sie eine hohe Lebensqualität in einem Bezirk mit zahlreichen Freizeitmöglichkeiten: Die Alte Donau, die Donauinsel und weitläufige Grünflächen laden zu Erholung und Aktivitäten ein. Darüber hinaus sorgen eine hervorragende Nahversorgung und zahlreiche Einkaufsmöglichkeiten für zusätzlichen Komfort.
Profitieren Sie von modernem Wohnkomfort in einer der dynamischsten Gegenden Wiens.
Straßenbahnlinie: 25 und 26
U-Bahn: U1 und U6
Fertigstellung: 4. Quartal 2027
Provisionsfrei für den Käufer!
Wir weisen darauf hin, dass zwischen dem Vermittler und dem zu vermittelnden Dritten ein familiäres oder wirtschaftliches Naheverhältnis besteht.
Der Vermittler ist als Doppelmakler tätig.
Infrastruktur / Entfernungen
Gesundheit
Arzt <250m
Apotheke <250m
Klinik <2.000m
Krankenhaus <2.250m
Kinder & Schulen
Schule <500m
Kindergarten <250m
Universität <750m
Höhere Schule <1.500m
Nahversorgung
Supermarkt <250m
Bäckerei <500m
Einkaufszentrum <1.500m
Sonstige
Geldautomat <1.250m
Bank <1.500m
Post <1.500m
Polizei <500m
Verkehr
Bus <250m
U-Bahn <1.250m
Straßenbahn <250m
Bahnhof <1.500m
Autobahnanschluss <2.250m
Angaben Entfernung Luftlinie / Quelle: OpenStreetMap
Eckdaten
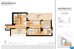
| Kaufpreis: | 669.500,00 € |
| Fläche: | 86,22 m² |
| Zimmer: | 4 |
Basisdaten zur Immobilie
| Objektnr: | 83696 |
| Art: | Wohnung |
| Land: | Österreich |
| Baujahr: | 2025 |
| Zustand: | Erstbezug |
| Alter: | Neubau |
| Kaufpreis: | 669.500,00 € |
| Provision: | Provisionsfrei für den Käufer |
| Wohnfläche: | 86,22 m² |
| Zimmer: | 4 |
| Bäder: | 1 |
| WC: | 2 |
| Terrassen: | 1 |
| Keller: | 1,99 m² |
| Heizwärmebedarf: | B 31,05 kWh/m²a |
| fGEE: | A 0,75 |
Ausstattung
Fliesen, Parkettboden, Fußbodenheizung, Wohnküche / offene Küche, Personenaufzug, Nordbalkon, Südbalkon, Badewanne
Internet und TV
Information zur Internet und TV Versorgung hier
Ihre persönliche Beratung
DI Birgita EHRENBERGER
EHL Immobilien GmbH
b.ehrenberger@ehl.at
+43-1-512 76 90-422
+43 664 88160139
