Lage der Immobilie
Die Wohnung befindet sich im Dachgeschoß eines 2-stöckigen Gebäudes. Sie liegt in der Nähe des berühmten Schlosses Schönbrunn und ist somit in einer attraktiven und beliebten Wohngegend gelegen. In der unmittelbaren Umgebung der Wohnung gibt es zahlreiche Annehmlichkeiten wie Ärzte, Apotheken, Schulen, Kindergärten, Supermärkte, Bäckereien, Geldautomaten, Banken, Postämter, PolizeiBeschreibung der Immobilie
ACHTUNG: Gerne stellt Ihnen unser Unternehmen professionelle Kontakte für interessante Finanzierungsmöglichkeiten zur Verfügung!
Willkommen in Ihrem zukünftigen Zuhause im Herzen von Wien! Diese traumhafte Dachgeschosswohnung in 1120 Wien lässt keine Wünsche offen und bietet Ihnen auf insgesamt 165m² puren Wohnkomfort.
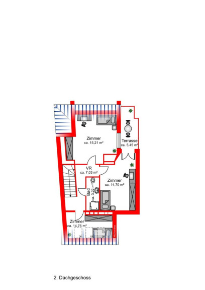
Schon gleich nach dem Foyer werden Sie von einer großzügigen und lichtdurchfluteten Wohnessküche empfangen, die zum gemeinsamen Kochen und Essen mit Familie und Freunden einlädt. Die hochwertige Ausstattung mit Fliesen und Parkettböden, sowie die modernen Kunststofffenster mit Doppel- und Mehrfachverglasung sorgen für ein angenehmes Wohngefühl. Von der Wohnküche aus haben Sie einen atemberaubenden Blick über einen große Terrasse auf die Stadt, der Sie jeden Tag aufs Neue begeistern wird. Die schöne Fläche von knapp 30 m² der großen, von zwei Terrasse ermöglicht Ihnen ein Vielzahl von Nutzungsvarianten. Zum Sonnen, Grillen oder auch als Essensbereich unter freiem Himmel.
Die zwei Terrassen in unterschiedlichen Himmelsrichtungen bieten Ihnen einzigartige Ausblicke auf die Stadt und die umliegende grüne Landschaft bieten.
Die Wohnung verfügt über insgesamt 5 Zimmer, aufgeteilt auf die beiden Ebenen. Die unterschiedlich großen Zimmer bieten Ihnen genügend Platz für individuelle Gestaltungsmöglichkeiten. Ob als großzügiges Wohnzimmer, gemütliches Arbeits- oder Spielzimmer oder als Schlafzimmer - hier ist für jeden etwas dabei.
Die beiden Badezimmer mit modernen Fliesen und Armaturen mit Anschlüssen für Waschmaschine und Trockner sowie zwei separaten WCs sorgen für höchsten Komfort und ermöglichen auch größeren Familien ein harmonisches Miteinander. Die Gasetagenheizung sorgt für wohlige Wärme in den kalten Wintermonaten und lässt Ihnen die Freiheit, die Raumtemperatur individuell zu regulieren.
Die Lage der Wohnung ist einfach perfekt. Durch die ausgezeichnete Verkehrsanbindung mit Bus, Straßenbahn und Bahnhof sind Sie schnell in der Innenstadt und können alle Vorzüge Wiens genießen.
Lassen Sie sich diese einzigartige Gelegenheit nicht entgehen und werden Sie stolzer Besitzer dieser traumhaften Dachgeschosswohnung. Der Kaufpreis von
€ 739.000,00 ist angesichts der hochwertigen Ausstattung, der Lage und der Größe der Wohnung sehr angemessen.
Gerne vereinbaren wir einen Besichtigungstermin. Wir freuen uns, Sie in Ihrem neuen Zuhause begrüßen zu dürfen!
Interessenten, die mit uns einen aufrechten Maklervertrag haben,
übermitteln wir auf Wunsch folgende, objektspezifische Unterlagen:
- Objektexposee,
- Energieausweis,
- Grundbuchauszug,
- Wohnungseigentumsvertrag,
- Nutzwertgutachten,
- Eigentümerversammlungsprotokolle,
- Vorausschau 2024,
- aktuelle Betriebskostenvorschreibung
FINANZIERUNG:
Durch die Kooperation mit einem effizienten und marktführenden Finanzierungsdienstleistungsunternehmen, bieten wir unseren Interessenten eine Kreditmöglichkeit an, die trotz der durch KIM-Verordnung erschwerten Kreditvergabe, eine Finanzierung ermöglicht. Fragen Sie uns!
INFOS & BESICHTIGUNGEN:
Für Informationen und Besichtigungen steht Ihnen Herr Mag. Moser unter +43 699 15152424 oder +43 1 877 2222 gerne zur Verfügung.
RECHTLICHER HINWEIS:
Im Hinblick auf die geltende Gesetzeslage weisen wir darauf hin, dass für unser Tätigwerden für jeden Interessenten (vollständige Anbietung, Angabe der Objektanschrift, Besichtigungen, Übermittlung der Objektunterlagen sowie sonstige Dienstleistungen) der Abschluss eines Maklervertrages die unbedingte Grundlage darstellt.
INFORMATION FÜR KONSUMENTEN:
1. Dieses Objekt wird von einem konzessionierten Immobilienmaklerunternehmen vermarktet. Im Falle der Anmietung oder des Ankaufs fällt eine Vermittlungsprovision an.
2. Der Makler ist kraft bestehenden Geschäftsgebrauchs für beide Vertragspartner des abzuschließenden Geschäfts tätig (Doppelmakler).
POST SCRIPTUM:
Wir sind auf Miet- und Eigentumsobjekte, sowie Grundstücke im 13. Bezirk spezialisiert, vermitteln allerdings selbstverständlich auch Wohnimmobilien im gesamten Großraum Wien!
Wenn Sie beim Verkauf Ihrer Immobilie auf Ihre RECHTSSICHERHEIT großen Wert legen und wenn für Sie deren Vermittlung hinsichtlich der fachlichen Kompetenz nur durch einen absoluten Experten für Sie in Frage kommt, setzen Sie auf unser Know-how sowie Kontakte zu den richtigen Käufern und sichern Sie sich Ihren Erfolg durch Qualitätsarbeit, starke Spezialisierung und 30-jährige Erfahrung.
Infrastruktur / Entfernungen
Gesundheit
Arzt <500m
Apotheke <1.000m
Klinik <1.500m
Krankenhaus <2.500m
Kinder & Schulen
Schule <1.000m
Kindergarten <1.000m
Universität <2.000m
Höhere Schule <2.000m
Nahversorgung
Supermarkt <1.000m
Bäckerei <1.000m
Einkaufszentrum <1.500m
Sonstige
Geldautomat <1.000m
Bank <1.000m
Post <1.000m
Polizei <500m
Verkehr
Bus <500m
U-Bahn <1.500m
Straßenbahn <1.000m
Bahnhof <1.000m
Autobahnanschluss <2.000m
Angaben Entfernung Luftlinie / Quelle: OpenStreetMap
Eckdaten
Objektnr: | 1544 |
Art: | Wohnung - Dachgeschoß |
Land: | Österreich |
Baujahr: | 2000 |
Kaufpreis: | 698.000,00 € |
Provision: | 25.128,00 € inkl. 20% USt. |
Betriebskosten: | 297,00 € |
MwSt Gesamt: | 45,60 € |
Wohnfläche: | 165,00 m² |
Zimmer: | 5 |
WC: | 2 |
Terrassen: | 2 |
Heizwärmebedarf: | 60,00 kWh/m²a |
fGEE: | 1,21 |
Ausstattung
Fliesen, Parkett, Gas, Etagenheizung, Wohnküche / offene Küche
Internet und TV
Information zur Internet und TV Versorgung hier
Ihre persönliche Beratung

Mag. Michael Moser
KLEIN & PARTNER Immobilien GmbH
E m.moser@kleinpartner.com
T +43 1 877 2222
H +43 699 1515 2424
F +43 1 877 2222 20