Moderne Doppelhaushälfte in Gaaden – Neubau ohne Maklergebühr
Haus
- Doppelhaushälfte,
2531
Gaaden
Lage der Immobilie
- Bus 265 zu Fuß erreichbar - Lebensmittelgeschäft in der Nähe - Apotheke und Arzt in direkte Umgebung - Kindergarten und Schulen gut erreichbar - Naturpark Sparbach - Wiener Wald zum WandernBeschreibung der Immobilie
Eckdaten
| Kaufpreis: | 575.000,00 € |
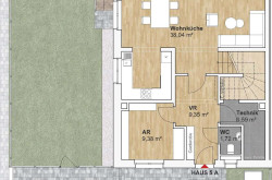
| Fläche: | 132,00 m² |
| Zimmer: | 5 |
Basisdaten zur Immobilie
| Objektnr: | 1157 |
| Art: | Haus - Doppelhaushälfte |
| Land: | Österreich |
| Baujahr: | 2023 |
| Zustand: | Erstbezug |
| Kaufpreis: | 575.000,00 € |
| Wohnfläche: | 132,00 m² |
| Grundstücksfl.: | 306,00 m² |
| Zimmer: | 5 |
| Bäder: | 1 |
| WC: | 2 |
| Terrassen: | 1 |
| Stellplätze: | 2 |
| Heizwärmebedarf: | 33,50 kWh/m²a |
| fGEE: | 0,71 |
Ausstattung
Fußbodenheizung
Internet und TV
Information zur Internet und TV Versorgung hier
Ihre persönliche Beratung
Christopher Reischel
Reischel Immobilien GmbH
kontakt@reischel.at
00436648518828
00436648518828
F 00431336808080
