Gratkorn, Geschäftsfläche ideal für Gastro
Gastgewerbe
- Gastronomie/Restaurant,
8101
Gratkorn
Beschreibung der Immobilie
Für nähere Informationen stehen wir Ihnen gerne zur Verfügung und freuen uns auf Ihre Anfrage.
Eckdaten
| Gesamtmiete: | 3.394,99 € |
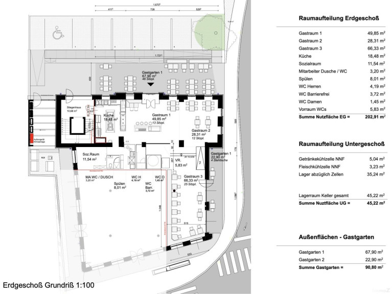
| Fläche: | 245,00 m² |
| Zimmer: | 1 |
Basisdaten zur Immobilie
| Objektnr: | O2100164724 |
| Art: | Gastgewerbe - Gastronomie/Restaurant |
| Land: | Österreich |
| Gesamtmiete: | 3.394,99 € |
| Kaltmiete (netto): | 3.394,99 € |
| Kaltmiete: | 3.394,99 € |
| Provision: | 3 BMM zzgl. 20% MwSt. |
| Gesamtfläche: | 245,00 m² |
| Lagerfläche: | 45,00 m² |
| Zimmer: | 1 |
| Terrassen: | 2 |
| Stellplätze: | 1 |
Ausstattung
Kabel/Satelliten-TV
Internet und TV
Information zur Internet und TV Versorgung hier
Ihre persönliche Beratung
BSc Patrick Großschädl
Papst Immobilien GmbH
info@papst-immo.at
0650 8286331
