Beschreibung der Immobilie
Das Wohnhaus in der Markhofgasse 2 bietet eine einzigartige Gelegenheit, in einem zentralen und dennoch ruhigen Teil von Wien zu wohnen. Mit insgesamt 34 Wohnungen, die teilweise saniert, jedoch größtenteils stark sanierungsbedürftig sind, haben Sie die Möglichkeit, Ihre Traumwohnung nach Ihren eigenen Vorstellungen zu gestalten oder von den bereits durchgeführten Sanierungsmaßnahmen zu profitieren.
Über das Gebäude:
- 34 Wohneinheiten – Eine interessante Mischung aus modernisierten und renovierungsbedürftigen Wohnungen, die Ihnen die Möglichkeit bieten, mit Eigeninitiative und kreativen Ideen den Charme dieses Altbaus zu entfalten.
- Sanierungsarbeiten – Das Stiegenhaus sowie die Fassade wurden bereits umfassend saniert, sodass das Gebäude von außen einen gepflegten Eindruck hinterlässt. Die Fenster werden auf 3-fach-Verglasung getauscht, was nicht nur für eine bessere Energieeffizienz sorgt, sondern auch für Ruhe und Komfort innerhalb der Wohnungen.
- Sanierungsbedarf – Einige Wohnungen bedürfen noch umfangreicherer Renovierungsarbeiten, was sie besonders für Handwerker, Investoren oder Käufer interessant macht, die die Wohnung ganz nach ihren Vorstellungen gestalten möchten.
Lage – Wohnen im 3. Bezirk von Wien
Die Markhofgasse 2 befindet sich im 3. Wiener Gemeindebezirk – Landstraße, einem der zentralsten und lebendigsten Stadtteile Wiens. Diese Lage bietet eine perfekte Mischung aus städtischem Komfort und einer ruhigen, grünen Umgebung, die für eine hohe Lebensqualität sorgt.
- Exzellente Anbindung – Die U-Bahnstation Schlachthausgasse befindet sich direkt gegenüber, was Ihnen eine optimale Anbindung an das öffentliche Verkehrsnetz bietet. Die U3 bringt Sie schnell in die Innenstadt und verbindet Sie mit wichtigen Verkehrsknotenpunkten Wiens. Mehrere Straßenbahn- und Buslinien ergänzen das Netz und bieten schnelle Verbindungen in alle Richtungen.
- Einkaufsmöglichkeiten – Der Landstraßer Hauptstraße mit einer Vielzahl an Geschäften, Supermärkten, Bäckereien und Restaurants ist nur einen kurzen Spaziergang entfernt. Auch das Einkaufszentrum “Simm City” liegt in der Nähe und bietet eine breite Auswahl an Geschäften und Dienstleistungen.
- Freizeitmöglichkeiten – Der nahegelegene Prater lädt zu ausgedehnten Spaziergängen, Radtouren und sportlichen Aktivitäten ein. Der Park ist ein wahres Naturparadies im Herzen der Stadt. Zudem finden Sie in der Umgebung zahlreiche Cafés, Bars und Restaurants, die für eine lebendige Atmosphäre sorgen.
- Bildungseinrichtungen – Schulen, Kindergärten sowie Hochschulen, wie die Universität für angewandte Kunst, befinden sich ebenfalls in der Nähe und machen die Lage besonders attraktiv für Familien und Studierende.
Das Wohnhaus in der Markhofgasse 2 bietet eine ausgezeichnete Kombination aus zentralem Wohnen, bester Anbindung und einer ruhigen Umgebung. Nutzen Sie diese Chance, in einem der gefragtesten Wiener Bezirke zu wohnen!
Vereinbaren Sie noch heute einen Besichtigungstermin und entdecken Sie das Potenzial dieser Liegenschaft!
Wir weisen darauf hin, dass zwischen dem Vermittler und dem zu vermittelnden Dritten ein familiäres oder wirtschaftliches Naheverhältnis besteht.
Der Vermittler ist als Doppelmakler tätig.
Infrastruktur / Entfernungen
Gesundheit
Arzt <500m
Apotheke <250m
Klinik <500m
Krankenhaus <750m
Kinder & Schulen
Schule <500m
Kindergarten <250m
Universität <750m
Höhere Schule <750m
Nahversorgung
Supermarkt <250m
Bäckerei <250m
Einkaufszentrum <1.000m
Sonstige
Geldautomat <500m
Bank <500m
Post <500m
Polizei <500m
Verkehr
Bus <250m
U-Bahn <250m
Straßenbahn <250m
Bahnhof <250m
Autobahnanschluss <500m
Angaben Entfernung Luftlinie / Quelle: OpenStreetMap
Eckdaten
| Kaufpreis: | 549.000,00 € |
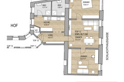
| Fläche: | 99,71 m² |
| Zimmer: | 3 |
Basisdaten zur Immobilie
| Objektnr: | 83481 |
| Art: | Wohnung |
| Land: | Österreich |
| Baujahr: | 1905 |
| Alter: | Altbau |
| Kaufpreis: | 549.000,00 € |
| Provision: | 3% des Kaufpreises zzgl. 20% USt. |
| Betriebskosten: | 239,99 € |
| MwSt Gesamt: | 24,00 € |
| Wohnfläche: | 99,71 m² |
| Zimmer: | 3 |
| Bäder: | 1 |
| WC: | 1 |
| Heizwärmebedarf: | D 128,80 kWh/m²a |
| fGEE: | D 2,29 |
Ausstattung
Fliesen, Parkett, Gas, Einbauküche, Dusche
Internet und TV
Information zur Internet und TV Versorgung hier
Ihre persönliche Beratung
Ilse Reindl
EHL Immobilien GmbH
i.reindl@ehl.at
+43 1 5127690 410
+43 664 881 601 43
