Zentral. Zeitgemäß. Zuhause. – Wohnen im Zentrumsnähe

Wohnung - Etage, 4694 Ohlsdorf

Beschreibung der Immobilie

Zentral. Zeitgemäß. Zuhause. – 13 Neubauwohnungen in Ohlsdorf, Angerweg 2

Wer das Zentrale liebt und auf moderne Wohnqualität nicht verzichten möchte, findet am Angerweg in Ohlsdorf sein neues Zuhause. Nur wenige Schritte vom Ortszentrum entfernt entstehen 13 hochwertige Eigentumswohnungen mit durchdachten Grundrissen und zeitgemäßer Ausstattung – ideal für alle, die urbane Nähe mit ruhiger Wohnlage verbinden möchten.

Was Sie erwartet:
• Zentrale Lage: In wenigen Gehminuten mitten im Ortskern – Einkauf, Schule, Nahversorger direkt ums Eck
• Moderne Ausstattung: Edle Parkettböden, stilvolle Fliesen, Fußbodenheizung & energieeffiziente Luftwärmepumpe
• Wohnkomfort für jeden Anspruch: Von 42 m² bis 110 m² – ideal für Singles, Paare oder Familien
• Draußen zuhause: Großzügige Terrassen oder Eigengärten für entspannte Stunden im Grünen
• Komfortabel & barrierefrei: Lift in alle Etagen, Tiefgarage für stressfreies Parken
• Gestaltungsfreiraum: Jetzt noch mitplanen und Ihre Wünsche einbringen

Aktueller Verkaufsstand:
✔ Bereits 5 Wohnungen vergeben – nur noch 8 verfügbar!
✔ Baustart bei 50 % Verkaufsquote – jetzt vor Baustart sichern und noch mitgestalten!

Lebenswert wohnen – mitten in Ohlsdorf

Wohnen Sie naturnah und dennoch bestens angebunden: Die Autobahn erreichen Sie in wenigen Minuten, Erholung bieten Traunsee, Traunstein und zahlreiche Freizeitangebote der Region.

Direkt vom Bauträger – provisionsfrei für Käufer

Jetzt informieren und Wohntraum sichern:
📞 Persönlich berät Sie Sabine Wenzel (0676 300 40 62) und Christian Sammer (0650 31 71 003)
🌐 Alle Details unter: www.angerweg-zwei.at

Zuhause ankommen. Im Herzen von Ohlsdorf.



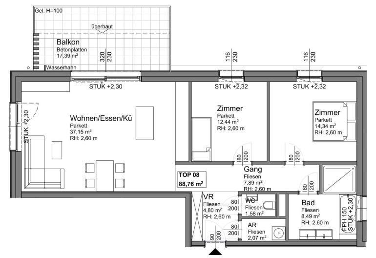
Top 8 befindet sich im 1. Obergeschoss und bietet eine perfekt durchdachte 3-Zimmer-Wohnung. Die großzügige Raumgestaltung schafft ein harmonisches Wohngefühl, während der große Balkon zusätzlichen Platz im Freien bietet – ideal für entspannte Stunden.
Angaben gemäß gesetzlichem Erfordernis:
Heizwärmebedarf:40.0 kWh/(m²a)

Für weitere Fragen und für einen Besichtigungstermin steht Ihnen Frau Sabine Wenzel unter Ihrer Handynummer 0676 300 40 62 zur Verfügung.

Eckdaten

Objektnr: 1068_4963
Art: Wohnung - Etage
Land: Österreich
Baujahr: ca. 2025
Zustand: Erstbezug
Kaufpreis: 441.800,00
Wohnfläche: 88,76 m²
Zimmer: 3
Bäder: 1
WC: 1
Balkone: 1
Keller: 3,88 m²
Heizwärmebedarf: 40,00 kWh/m²a
Immobilie merken Exposé

Ausstattung

Etagenheizung, Personenaufzug


Internet und TV

Information zur Internet und TV Versorgung hier


Immobilie anfragen


Ihre persönliche Beratung

RE/MAX Traunsee

Sabine Wenzel

RE/MAX Traunsee

E s.wenzel@remax-traunsee.at

T +07612/892 32232

H +43 676 300 40 62

F +43 7612 89 232-30