Barrierefreie 3 Zimmer Eigentumswohnung TOP 5

Wohnung - Etage, 5230 Mattighofen

Beschreibung der Immobilie

Tolle barrierefreie Neubauwohnung mit Lift am Stadtrand von Mattighofen

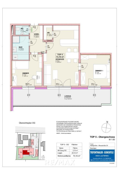
Diese großzügige 3-Zimmer-Wohnung mit großer Loggia an der Südseite bietet auf 73,16 m² modernen Wohnkomfort und viel Platz für individuelle Gestaltungsmöglichkeiten.

Eckdaten
Wohnfläche: 73,16 m² + Loggia mit 24.12 m²
Baujahr: 2025-2026
Lift
Die Heizung erfolgt mit Photovoltaik-unterstützter Luftwärmepumpe und Fußbodenheizung.
Fenster: Dreifach verglaste Kunststofffenster mit Alu Beklipsung außen.
Sonnenschutz und elektrische Raffstore sind ebenfalls vorhanden.
Jeder Wohnung ist ein Carport fest zugeordnet, das beim Wohnungskauf verpflichtend zum zusätzlichen Preis von €10.000 mit erworben wird.
Zusätzliche allgemeine Parkplätze sind vorhanden.

Sämtliche Infrastruturanlagen befinden sich im Ort.

Wir weisen auf Ihre 14-tägige Rücktrittsfrist (nach § 11 FAGG ) hin. Damit Ihre Rechte gewahrt werden, beantworten wir nur Anfragen mit vollständigen Kontaktdaten (Name, Adresse, Handy, E-Mail). Wir werden gerne vor Ablauf der 14-tägigen Rücktrittsfrist für Sie tätig, wenn Sie uns gesetzeskonform (FAGG) und ausdrücklich (am besten per E-Mail) auffordern. Wenn Kaufvertrag/ Mietvertrag nicht zustande kommen, ist unsere Tätigkeit für Sie völlig kostenfrei. Wir möchten an dieser Stelle auf unsere Doppelmaklertätigkeit hinweisen.

Nur auf www.remax.at finden Sie neue RE/MAX Immobilien früher und vollständig.

Neuer Job, neue Perspektiven: Jetzt als Immobilienmakler/in durchstarten!
Werden Sie Teil unseres Teams – jetzt bewerben unter karriere@remax-innova.at.

Weitere Infos in unseren News: https://www.remax.at/de/ib/remax-innova-braunau-inn/news/wir-suchen-sie-16641
Angaben gemäß gesetzlichem Erfordernis:
Heizwärmebedarf:31.0 kWh/(m²a)
Klasse Heizwärmebedarf:B
Faktor Gesamtenergieeffizienz:0.62
Klasse Faktor Gesamtenergieeffizienz:A+

Für weitere Infos oder eine Besichtigung steht Ihnen Herr Erlinger unter Tel. 0664/4040130 sehr gerne zur Verfügung.

Eckdaten

Objektnr: 1651_4678
Art: Wohnung - Etage
Land: Österreich
Baujahr: ca. 2025
Zustand: Erstbezug
Alter: Neubau
Kaufpreis: 310.000,00
Wohnfläche: 73,16 m²
Zimmer: 3
Bäder: 1
WC: 1
Stellplätze: 1
Heizwärmebedarf:  B  31,00 kWh/m²a
fGEE:  A+  0,62
Immobilie merken Exposé

Ausstattung

Erdwärme, Zentralheizung, Personenaufzug, Kabel/Satelliten-TV, Parkplatz


Internet und TV

Information zur Internet und TV Versorgung hier


Immobilie anfragen


Ihre persönliche Beratung

RE/MAX Innova in Braunau

Heinrich Erlinger

RE/MAX Innova in Braunau

E h.erlinger@remax-innova.at

T +43/7722/22137040

H +43 664 40 40 130