Attraktives Wohnungspaket - 6 Wohnungen in Wien - Wohnungseigentum - Share Deal - 1090, 1100, 1220 Wien
Zinshaus Renditeobjekt
,
1090
Wien,Alsergrund
Beschreibung der Immobilie
Zum Kauf steht dieses attraktive Wohnungspaket, bestehend aus folgenden sechs Wohnungen:
- Wohnung 1: 1100 Wien, ca. 43m², mit Loggia, Neubau
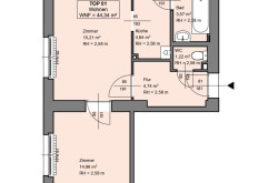
- Wohnung 2: 1220 Wien, ca. 44,34m², Neubau
- Wohnung 3: 1090 Wien, ca. 53,80m², Altbau
- Wohnung 4: 1090 Wien, ca. 42,00m², Altbau
- Wohnung 5: 1090 Wien, ca. 46,66m², mit Balkon, Altbau
- Wohnung 6: 1090 Wien, ca. 46,66m², mit Balkon, Altbau
Wir haben Ihnen ein paar Beispielfotos hochgeladen.
Einige Details zu den jeweiligen Wohnungen – weitere Details entnehmen Sie bitte den Infoblatt / Éxposé, welches Sie nach Ihrer Anfrage zugeschickt bekommen:
- Wohnung 1: Troststraße, 1100 Wien, 1 Zimmer, ca. 43m² – mit Loggia, 1. OG (mit Lift), guter Zustand, Neubau, vermietet bis Ende April 2025 (HMZ netto: 501,39 €)
- Vorraum
- Bad mit Dusche und
- WC
- Küche mit
- Zimmer
- geschlossene Loggia
- Kellerabteil
- Wohnung 2 Zachgasse, 1220 Wien, 2 Zimmer, ca. 44,34m² – Erdgeschoss, guter Zustand, Neubau, vermietet bis Ende April 2025 (HMZ netto 2025: 514,50 €)
- Vorzimmer
- WC
- Küche
- Bad mit Badewanne
- Zimmer 1
- Zimmer 2
- Kellerabteil
Die Fassade wurde vor etwa 10 Jahren saniert und wärmegedämmt. Die Fenster der Wohnung verfügen über hochwertige Rollläden. Die Eingangstür ist eine Sicherheitstür.
- Wohnung 3: Währinger Gürtel, 1090 Wien, 1,5 Zimmer, ca. 53,80m², 2. OG, Altbau, guter Zustand, vermietet (HMZ netto: 638,17 €)
- Vorzimmer
- Zimmer
- Küche
-Kabinett
- Bad
- WC
- Kellerabteil
Ein Lift ist vorhanden, allerdings gibt es eine eigene Liftgemeinschaft, in die man sich einkaufen könnte.
Laut WE-Vertrag ist die Kurzzeitvermietung erlaubt.
- Wohnung 4: Währinger Gürtel, 1090 Wien, 1 Zimmer, ca. 42m², 2. OG, Altbau, Zustand dzt. unbekannt, vermietet (HMZ netto: 83,16 €)
- Vorzimmer
- Bad
- Zimmer
- Küche
- Kellerabteil
Ein Lift ist vorhanden, allerdings gibt es eine eigene Liftgemeinschaft, in die man sich einkaufen könnte.
Laut WE-Vertrag ist die Kurzzeitvermietung erlaubt.
- Wohnung 5: Währinger Gürtel, 1090 Wien, 1,5 Zimmer, mit Balkon, ca. 46,66m², 2. OG, Altbau, guter Zustand, vermietet (HMZ netto: 430,26 €)
- Vorzimmer
- Bad
- Küche
- Zimmer
- Kabinett
- Balkon
- Kellerabteil
Ein Lift ist vorhanden, allerdings gibt es eine eigene Liftgemeinschaft, in die man sich einkaufen könnte.
Laut WE-Vertrag ist die Kurzzeitvermietung erlaubt.
- Wohnung 6: Währinger Gürtel, 1090 Wien, 1,5 Zimmer, mit Balkon, ca. 46,66m², 3. OG, guter Zustand, vermietet (HMZ netto 155,32 €)
- Vorzimmer
- Bad
- Küche
- Zimmer
- Kabinett
- Kellerabteil
Ein Lift ist vorhanden, allerdings gibt es eine eigene Liftgemeinschaft, in die man sich einkaufen könnte.
Laut WE-Vertrag ist die Kurzzeitvermietung erlaubt.
Share Deal Option!
Kaufpreis 1.200.000,00 € (bei Übernahme der Kredite werden diese vom Kaufpreis abgezogen).
Bei Vertragsabschluss (Schriftform vorausgesetzt) fallen folgende Kosten bar an:
Kaufpreis 1.200.000,00 €
(Eintragungsgebühr 13.200,00 €
Grunderwerbssteuer 42.000,00 €
Provision 43.200,00 €
Gesamt* 1.298.400,00 €
*zzgl. Vertragserrichtung & Durchführung
In der Gmbh befinden sich bei Übergabe nur die Immobilien.
WEITERE DETAILS ENTNEHMEN ZUM WOHNUNGSPAKET SIE BITTE DEM INFOBLATT, WELCHES WIR IHNEN GERNE NACH IHRER ANFRAGE ZUSENDEN.
Es besteht ein wirtschaftliches und familiäres Naheverhältnis.
Wir weisen darauf hin, dass zwischen dem Vermittler und dem zu vermittelnden Dritten ein familiäres oder wirtschaftliches Naheverhältnis besteht.
Der Vermittler ist als Doppelmakler tätig.
Infrastruktur / Entfernungen
Gesundheit
Arzt <500m
Apotheke <500m
Klinik <500m
Krankenhaus <1.000m
Kinder & Schulen
Schule <500m
Kindergarten <500m
Universität <500m
Höhere Schule <500m
Nahversorgung
Supermarkt <500m
Bäckerei <500m
Einkaufszentrum <2.000m
Sonstige
Geldautomat <500m
Bank <500m
Post <500m
Polizei <1.000m
Verkehr
Bus <500m
U-Bahn <500m
Straßenbahn <500m
Bahnhof <500m
Autobahnanschluss <2.000m
Angaben Entfernung Luftlinie / Quelle: OpenStreetMap
Eckdaten
| Kaufpreis: | 1.200.000,00 € |
Basisdaten zur Immobilie
| Objektnr: | 3660 |
| Art: | Zinshaus Renditeobjekt |
| Land: | Österreich |
| Alter: | Altbau |
| Kaufpreis: | 1.200.000,00 € |
| Kaufpreis / m²: | auf Anfrage |
| Provision: | 43.200,00 € inkl. 20% USt. |
Ausstattung
Parkett, Fliesen, Gas, Einbauküche, Dusche
Internet und TV
Information zur Internet und TV Versorgung hier
Ihre persönliche Beratung
Alfred Xaver Kiesling
Alfred X. Kiesling - Immobilien
Alfred@kiesling-immobilien.at
0664 16 45 458
+ 43 664 16 45 45 8
