2-Zimmer-Wohnung mit Terrasse für Naturliebhaber! Dornbacher Bestlage!
Wohnung
,
1170
Wien
Lage der Immobilie
Das Projekt "Franz-Glaser-Gasse 30" befindet sich im 17. Wiener Gemeindebezirk Hernals, in einer attraktiven Grün- und Ruhelage am Heuberg. Diese Gegend verbindet die Vorteile der Nähe zum Heuberg mit einer super Anbindung an das Stadtzentrum. Mit der Straßenbahnlinie 43 erreicht man in etwa 20 Minuten die Innenstadt (Schottentor). Zudem wird mit der geplanten Erweiterung der U-Bahnlinie U5 die Verbindung zur Innenstadt weiter verbessert. Freizeitmöglichkeiten bieten der nahegelegene Schwarzenbergpark, der Sportzentrum Marswiese, die Kreuzeichenwiese, der Kongresspark uvm. Darüber hinaus profitieren Sie von der hervorragenden Infrastruktur in der Umgebung. Ärzte, Kindergärten und Schulen sind schnell erreichbar, was besonders für Familien von großem Vorteil ist. Auch Universitäten, Supermärkte und Bäckereien befinden sich in unmittelbarer Nähe und bieten Ihnen alles, was Sie für den täglichen Bedarf benötigen.Beschreibung der Immobilie
NEUBAUPROJEKT in Dornbach - die noble Gegend von Hernals! Erstbezug im Frühjahr 2025!
Willkommen in Ihrem neuen Zuhause! Inmitten der grünen und begehrten Wohngegend Dornbach entsteht ein modernes Neubauprojekt mit insgesamt 13 hochwertigen Wohnungen – ideal für Singles, Paare, Familien oder Senioren. Hier genießen Sie urbane Lebensqualität kombiniert mit Ruhe und Natur.
Die Wohnflächen reichen von 46 m² bis 177 m², ergänzt durch Terrassen, Balkone und/oder Gärten. Für höchsten Komfort sorgt eine hauseigene Tiefgarage mit 11 Stellplätzen, erreichbar über eine elegante, geschwungene Einfahrt.
IDEALE RAUMAUFTEILUNG • SINGLES • PAARE • JUNGFAMILIEN
TOP 1: 2 Zimmer | 70,76 m² | 20,23 m² Garten | 14,41 m² Terrasse | € 680.000,-
TOP 2: 2 Zimmer | 59,75 m² | 38,34 m² Garten | 16,09 m² Terrasse | € 612.000,-
TOP 3: 2 Zimmer | 71,20 m² | 78,98 m² Garten | 14,41 m² Terrasse | € 731.000,-
TOP 4: 3 Zimmer | 75,15 m² | 8,41 m² Balkon + 5,82 m² Balkon | € 697.000,-
TOP 5: 2 Zimmer | 59,56 m² | 17,72 m² Balkon | € 600.300,-
TOP 6: VERKAUFT
TOP 7: VERKAUFT
TOP 8: VERKAUFT
TOP 9: 2 Zimmer | 57,39 m² | 17,72 m² Balkon | € 574.200,-
TOP 10: VERKAUFT
TOP 11: VERKAUFT
TOP 12: VERKAUFT
TOP 13: VERKAUFT
NEUBAUPROJEKT in Dornbach - die noble Gegend von Hernals! Erstbezug im Frühjahr 2025!
Willkommen in Ihrem neuen Zuhause! Inmitten der grünen und begehrten Wohngegend Dornbach entsteht ein modernes Neubauprojekt mit insgesamt 13 hochwertigen Wohnungen – ideal für Singles, Paare, Familien oder Senioren. Hier genießen Sie urbane Lebensqualität kombiniert mit Ruhe und Natur.
Die Wohnflächen reichen von 46 m² bis 177 m², ergänzt durch Terrassen, Balkone und/oder Gärten. Für höchsten Komfort sorgt eine hauseigene Tiefgarage mit 11 Stellplätzen, erreichbar über eine elegante, geschwungene Einfahrt.
IDEALE RAUMAUFTEILUNG • PAARE • JUNGFAMILIE • NATURLIEBHABER
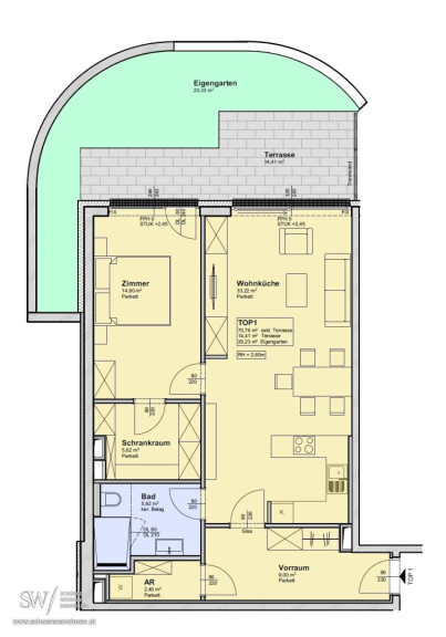
TOP 1 • 2-ZIMMER-WOHNUNG MIT GARTEN & TERRASSE
Erstbezug | ca. 71 m² Wohnfläche | 14 m² Terrasse | 20 m² Garten
Gegenständliche lichtdurchflutete Wohnung Top 1 mit einer großzügigen Fläche von 71 m² bietet ausreichend Platz für Singles, Paare oder kleine Familien, die das urbane Leben in einer der schönsten Städte Europas genießen möchten. Die 2 hellen Zimmer sind optimal gestaltet, um sowohl Rückzugsorte als auch inspirierende Wohnbereiche zu schaffen. Hier können Sie Ihre persönlichen Wohnträume verwirklichen und sich eine Oase der Ruhe inmitten des Stadtlebens schaffen.
Ein besonderes Highlight dieser Immobilie ist der wunderschöne 20 m² große Garten mit angrenzender 14 m² Terrasse. Stellen Sie sich vor, wie Sie an warmen Sommertagen auf Ihrer eigenen Terrasse entspannen, die Natur genießen und Gäste zu geselligen Grillabenden einladen. Diese Außenbereiche erweitern nicht nur Ihren Wohnraum, sondern bieten auch einen idealen Rückzugsort für entspannte Stunden im Freien. Geheizt wird mittels Fußbodenheizung über eine Gas-Zentralheizung.
HIGHLIGHTS AUF EINEN BLICK:
- Wohnküche: 33,22 m² – großzügig, offen und hell
- Schlafzimmer: 14,2 m² mit begehbarer Garderobe
- Badezimmer mit WC
- Abstellraum
- 14 m² Terrasse
- 20 m² Eigengarten – ideal zum Entspannen und Genießen
AUSSTATTUNG:
- Fußbodenheizung (Gas-Zentralheizung)
- Hochwertiger Parkettboden
- Großformatiges Feinsteinzeug in Bad/WC
- Walk-in-Dusche mit Regenbrause
- Elektrische Außenjalousien (Raffstore)
- Haus mit Aufzug & Tiefgarage
- Vollwärmeschutzfassade
- Kellerabteil
- Optional: Tiefgaragenplatz normal € 35.000,- oder ein großer Garagenplatz € 40.000,-
LAGE & VERKEHRSANBINDUNG:
- Bus: 44A (Eselstiege)
- Straßenbahn: 43 (Dornbacher Straße)
- S-Bahn: S45 (Hernals)
- Nahversorgung, Ärzte, Schulen in direkter Umgebung
ANMERKUNG ZU DEN BILDERN:
Die Fotos geben einen ersten Eindruck von einigen der Wohnungen. Da in manchen noch Baumaterial lagert, konnten wir leider noch nicht überall fotografieren.
Zögern Sie nicht, sich dieses einmalige Angebot näher anzusehen. Ihr neues Zuhause in Wien wartet auf Sie – ein Ort, an dem Sie Erinnerungen schaffen und das Leben in vollen Zügen genießen können. Kontaktieren Sie mich noch heute für eine Besichtigung!
Wir weisen darauf hin, dass ein wirtschaftliches und familiäres Naheverhältnis mit dem Abgeber besteht.
Dieses Angebot ist freibleibend und unverbindlich und beruht auf Angaben des Abgebers. Wir übernehmen hiefür keine wie immer geartete Haftung.
Weitere Auskünfte erteilt Ihnen gerne Fr. Eveline Momirov unter 0676/ 350-12-20. Per Mail erreichen Sie mich unter eveline.momirov@schoeneswohnen.at
Unterlagen zum Objekt werden Ihnen gerne auf Wunsch übermittelt.
Schönes Wohnen Immobilien
www.schoeneswohnen.at
Wir weisen darauf hin, dass zwischen dem Vermittler und dem zu vermittelnden Dritten ein familiäres oder wirtschaftliches Naheverhältnis besteht.
Der Vermittler ist als Doppelmakler tätig.
Infrastruktur / Entfernungen
Gesundheit
Arzt <1.000m
Apotheke <1.500m
Klinik <2.000m
Krankenhaus <1.500m
Kinder & Schulen
Schule <1.500m
Kindergarten <1.000m
Universität <1.000m
Höhere Schule <3.000m
Nahversorgung
Supermarkt <1.000m
Bäckerei <1.000m
Einkaufszentrum <1.500m
Sonstige
Geldautomat <1.500m
Bank <1.500m
Post <1.000m
Polizei <2.000m
Verkehr
Bus <500m
U-Bahn <2.500m
Straßenbahn <1.000m
Bahnhof <2.000m
Autobahnanschluss <6.000m
Angaben Entfernung Luftlinie / Quelle: OpenStreetMap
Eckdaten
| Kaufpreis: | 680.000,00 € |
| Fläche: | 71,00 m² |
| Zimmer: | 2 |
Basisdaten zur Immobilie
| Objektnr: | 4042 |
| Art: | Wohnung |
| Land: | Österreich |
| Zustand: | Erstbezug |
| Alter: | Neubau |
| Kaufpreis: | 680.000,00 € |
| Provision: | 3% des Kaufpreises zzgl. 20% USt. |
| Wohnfläche: | 71,00 m² |
| Zimmer: | 2 |
| Bäder: | 1 |
| WC: | 1 |
| Terrassen: | 1 |
| Garten: | 20,00 m² |
| Keller: | 2,00 m² |
| Heizwärmebedarf: | B 33,89 kWh/m²a |
| fGEE: | A 0,71 |
Ausstattung
Parkett, Gas, Fußbodenheizung, Zentralheizung, Wohnküche / offene Küche, Personenaufzug, Dusche, Kabel/Satelliten-TV, Tiefgarage
Internet und TV
Information zur Internet und TV Versorgung hier
Ihre persönliche Beratung
Eveline Momirov
Schönes Wohnen Immobilientreuhand GmbH
eveline.momirov@schoeneswohnen.at
014869100
06763501220
