Traumhaftes Penthouse in ruhiger Lage

Wohnung - Penthouse, 8967 Haus

Beschreibung der Immobilie

Dieser Neubau mit 4 wunderschönen, großzügigen Appartements wurde in Weißenbach/Haus errichtet.

Bei der Architektur wurde ein spezielles Augenmerk auf die Kombination von alpenländischem Baustil und möglichst offenen, hellen Räumlichkeiten gelegt.
Die Wohnungsgrößen sind nicht nur den heutigen Standards angepasst, vielmehr sind diese bereits zukunftsweisend geplant.

Der Kaufpreis inkludiert 1 Carportplatz, 1 Aussenstellplatz, ein kleines Kellerabteil, allgemeiner Schiraum

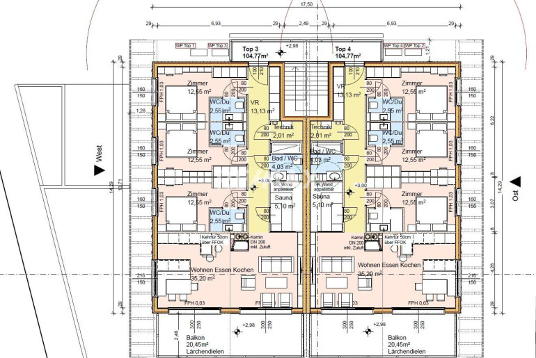
Die Top 3 im 1.OG hat folgende Raumaufteilung:
Vorraum, 3 Schlafzimmer mit je 1 Badezimmer/Du/WC en suit und ein kl. Raum extra mit einem Stockbett
Technikraum, Wohn- Ess- Küchenbereich mit Kamin, Sauna
Großzügige überdachte Balkone mit Lärchendielen

Zur Verfügung steht auch noch Top 4:
Top 3 1.OG mit 104,77m² € 885.000,-

Mit dem Kauf eines Apartments werden Sie Eigentümer in einer der besten und schönsten Lagen des Alpenraums.

- Sie kaufen die Immobilie und werden dadurch grundbücherlicher Eigentümer
- Sie können die Wohnung jederzeit VERKAUFEN oder VERERBEN.
- Sämtliche Aufgaben wie Instandhaltung, Reinigung, Wartung etc. werden von einer Hausverwaltung ausgeführt.

Der solide Holzriegelbau spart langfristig Kosten und erhält somit den Wert der Immobilie.

Um unsere Umwelt zu schonen, wie auch zur Minimierung Ihrer Betriebskosten, wurde eine Photovoltaikanlage für jede der 4 Wohnungen installiert.
Alle Wohnräume wurden mit edlen Parkettböden ausgestattet.
Die Beheizung der Räume mit einer energiesparenden Fußbodenheizung ist selbstverständlich.

Eine Haltestelle für Shuttlebus oder Linienbus der Sie in die umliegenden Gemeinden fährt, befindet sich in unmittelbarer Nähe.

Nach dem Motto „wohnen, wo andere Urlaub machen“ leben Sie inmitten der grandiosen Südwände des Dachsteins und der Schladminger Tauern.
Der atemberaubende Blick auf das Bergpanorama des Hauser Kaibling und auf dem überdachten Südbalkon auf unberührte Wiesen lässt keine Wünsche offen.

Ob Familien, Sportler oder Erholungssuchende – in den Feriendörfern Haus, Weißenbach und Aich fühlen sich alle wohl. Nicht umsonst ist Haus im Ennstal seit 2014 offiziell das schönste Dorf Europas. Sommer-Erlebnis am Hauser Kaibling: E-Trial, Disc Golf, Kinderspielplätze und Erlebniswege sowie 800 Schafe, die für eine optimale ökologische Pistenpflege sorgen. Daneben zahlreiche Wander- und MTB-Touren in ganz Haus-Aich-Gössenberg. Im Winter starten Sie auf den schönsten Pisten in die 4-Berge-Skischaukel. Uriges Ambiente und Hüttengaudi am Berg - gemütliche Pferdeschlittenfahrten, Winterwanderungen, Eislaufen und Eisstockschießen im Tal - langweilig wird Ihnen bei uns ganz bestimmt nicht.
Wenn Sie Fragen haben oder eine Besichtigung wünschen rufen Sie uns bitte an oder schreiben eine E-Mail!

PS: BITTE BEACHTEN SIE, DASS WIR AUFGRUND DER NACHWEISPFLICHT GEGENÜBER DEM EIGENTÜMER NUR ANFRAGEN UNTER ANGABE DER VOLLSTÄNDIGEN ANSCHRIFT SAMT TELEFONNUMMER BEARBEITEN KÖNNEN
Angaben gemäß gesetzlichem Erfordernis:
Heizwärmebedarf:61.0 kWh/(m²a)
Faktor Gesamtenergieeffizienz:0.73
Klasse Faktor Gesamtenergieeffizienz:A+

Eckdaten

Objektnr: 2445_2648
Art: Wohnung - Penthouse
Land: Österreich
Baujahr: ca. 2023
Zustand: Erstbezug
Möbliert: Voll
Kaufpreis: 885.000,00
Provision: 3.00 %
Wohnfläche: 104,77 m²
Zimmer: 4,50
Bäder: 3
WC: 3
Balkone: 2
Stellplätze: 2
Keller: 3,00 m²
Heizwärmebedarf: 61,00 kWh/m²a
fGEE:  A+  0,73
Immobilie merken Exposé

Ausstattung

Erdwärme, Zentralheizung, Garage, Parkplatz


Internet und TV

Information zur Internet und TV Versorgung hier


Immobilie anfragen


Ihre persönliche Beratung

RE/MAX Nature 1 in Liezen

Monika Perali

RE/MAX Nature 1 in Liezen

E m.perali@remax-nature.at

T +43361230262

H +43 3612 / 30 262-31

F +43 3612 / 30 291