Wohnhaus mit 3 Wohnungen, Pool und Garage in Wels/Pernau
Haus
- Mehrfamilienhaus,
4600
Wels
Beschreibung der Immobilie
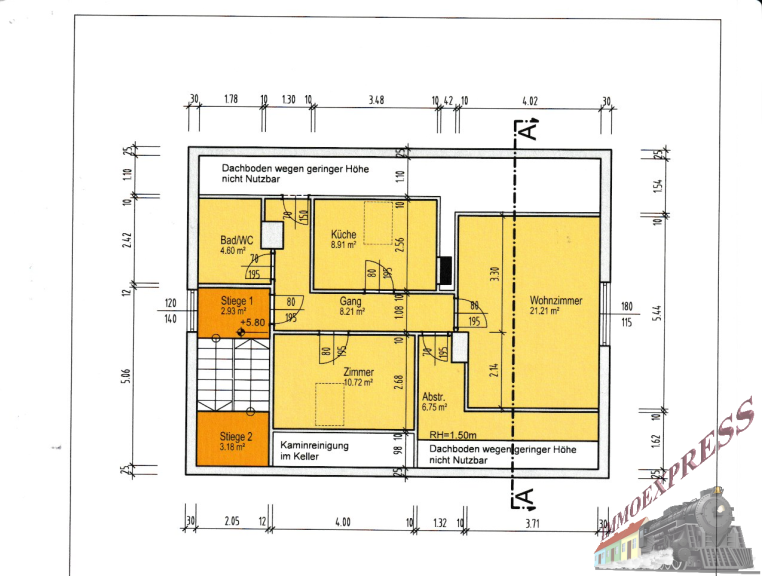
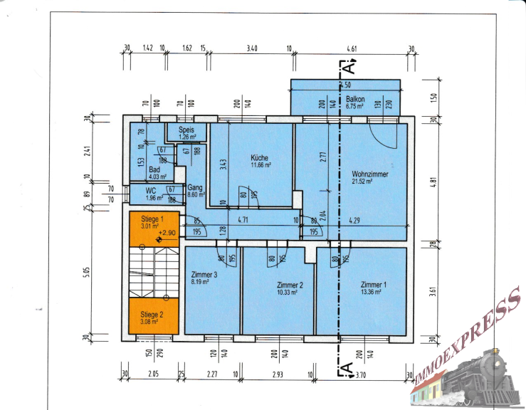
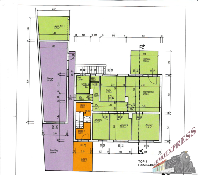
Objekttyp: Mehrfamilienhaus / Wohnhaus mit 3 Wohneinheiten Wohnfläche: ca. 224 m² Grundstücksfläche: ca. 638 m² Einheiten: 3 Wohneinheiten Lage: Wels / Pernau
Besondere Highlights: Pool, Garage, Gartenfläche, ruhige Wohnlage
Objektbeschreibung
Dieses gepflegte Wohnhaus in begehrter Lage von Wels/Pernau bietet auf einer Gesamtwohnfläche von ca. 224 m² drei eigenständige Wohneinheiten und eignet sich sowohl als Mehrgenerationenhaus, für Anleger oder zur Eigennutzung mit Vermietungsmöglichkeit.
Jede Wohneinheit verfügt über eine durchdachte Raumaufteilung und bietet ausreichend Platz für individuelle Wohnbedürfnisse. Der gepflegte Garten mit Pool lädt zum Verweilen und Entspannen ein.
Ausstattung & Aufteilung
- 3 getrennte Wohneinheiten (EG 81m2 OG 81m2 DG 62 m2)
- Gesamtwohnfläche ca. 224 m²
- Gepflegter Garten mit Pool
- Garage sowie zusätzliche Stellplätze
- Keller- bzw. Abstellräume vorhanden
Das ca. 638 m² große Grundstück bietet genügend Freifläche für Gartenliebhaber und Familien. Ein Pool sorgt für sommerliche Abkühlung, die grüne Umgebung fördert Erholung und Lebensqualität.
Lage & Infrastruktur
Die Immobilie befindet sich in einer beliebten Wohngegend von Wels-Pernau. Alle wichtigen Einrichtungen des täglichen Bedarfs wie Supermärkte, Schulen, Kindergärten sowie öffentliche Verkehrsmittel sind in wenigen Minuten erreichbar. Auch die Innenstadt von Wels ist schnell zugänglich.
Fazit
Ein vielseitig nutzbares Wohnhaus mit attraktiver Flächenaufteilung, in guter Lage und mit hochwertiger Ausstattung wie Pool und Garage. Perfekt für Familien, Investoren oder Wohnen mit mehreren Generationen.
KAUFPREIS : € 638.000,--
Nebenkosten:
3,5 % Grunderwerbsteuer
1,1% GrundbucheintragFür die Richtigkeit der Daten wird keine Gewähr übernommen, sie wurden uns vom Verkäufer und der Kommunalbehörde mitgeteilt.
Provision 3 % + 20 % UST.
1,5% + 20% UST Vertragserrichtungsgebühr beim Vertragsersteller
- Bemessungsgrundlage ist der Kaufpreis.
Für weitere Fragen oder eine Besichtigung steht Ihnen gerne Herr Robert Brandtner
unter 0664 37 89 799 oder r.brandtner@immo.express zur Verfügung.
Für die Richtigkeit der Daten wird keine Gewähr übernommen, sie wurden uns vom Verkäufer und der Kommunalbehörde mitgeteilt.
Rechtlicher Hinweis: Der Makler steht zum Abgeber in einem familiären Naheverhältnis.
Nähere Auskünfte zum Nahverhältnis auf Anfrage gerne.
Gerne unterstützen wir Sie auch bei der Finanzierung bei diesem oder einem anderen Objekt. Sprechen Sie uns darauf an, wir beraten Sie gerne.
Wir weisen darauf hin, dass wir, mit Ausnahme von Wohnungssuchenden für Mietwohnungen, als DoppelmaklerIn tätig sind. Nähere Informationen zum DoppelmaklerIn auf Anfrage gerne.
Eckdaten
Objektnr: | O2100164881 |
Art: | Haus - Mehrfamilienhaus |
Land: | Österreich |
Möbliert: | Teil |
Alter: | Neubau |
Kaufpreis: | 638.000,00 € |
Provision: | 3 |
Wohnfläche: | 225,00 m² |
Grundstücksfl.: | 638,00 m² |
Gesamtfläche: | 224,00 m² |
Stellplätze: | 1 |
Heizwärmebedarf: | D 109,00 kWh/m²a |
fGEE: | D 1,82 |
Ausstattung
Parkett, Gas, Zentralheizung, Kabel/Satelliten-TV, Garage
Internet und TV
Information zur Internet und TV Versorgung hier
Ihre persönliche Beratung

Robert Brandtner
Immoexpress KG
E r.brandtner@immo.express
H +43 664 37 89 799
F +43 (1) 688 02 74