Liegenschaft mit geplantem Einfamilienhaus/Mehrfamilien/Wohnen und Arbeiten – mit Balkon/Terrassen/Garten - PKW-Stellplätze
Grundstück
,
1230
Wien
Lage der Immobilie
Nahe Erlaaer Straße, AlterlaaBeschreibung der Immobilie
Zum Kauf steht eine Liegenschaft mit geplanten Mehrfamilienhaus in einer beliebten Gegend in 1230 Wien
Bitte um eine schriftliche Anfrage, am besten über den "Anfragebutton". Wir danken für Ihr Verständnis.
Anfragen werden von uns üblicherweise binnen 12h beantwortet.
Aufgrund der mitgesendeten Unterlagen und Links, landen wir leider oft im Spam-Filter.
Bitte kontrollieren Sie diesen auf Mails von alfred(at)kiesling-immobilien.at.
Es gibt eine aufrechte Einreichung nach §70b WBO für ein laut Bebauungsplan zulässigem Kleinhaus für 3 Einheiten, die Einreichplanung wird mit der Liegenschaft veräußert. Nach §70b liegen alle erforderlichen Unterlagen bei der zuständigen MA37 Gebietsgruppe SÜD auf, ein sofortiger Baubeginn ist daher möglich. Das Projekt wurde ursprünglich als Anlageobjekt geplant und daher mit den 3 zulässigen Einheiten eingerichtet, die Liegenschaft eignet sich natürlich auch sehr gut zur Nutzung als Einfamilienhaus oder als Ordination / Kanzlei & Wohnen, und kann mittels Planwechsel im bestehenden Verfahren adaptiert werden. Die Zustimmung zum Anbau an die rechte Grundstücksgrenze ist vertraglich mit den Nachbarn geregelt, ebenso der Abbruch der halben Doppelgarage (EXPLIZIT nur für das eingereichte Projekt) die in den 1970ern über beide Grundstücke errichtet wurde ist geregelt.
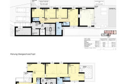
Das geplante Wohn- und Bürogebäude umfasst drei Einheiten:
1. Wohnung Top 1 im Erdgeschoss: 69,90m² Wohnfläche.
4-Zimmer-Wohnung mit eigener Terrasse (Osten) mit Pool und eigenen Garten (ca. 162,00m²)
- Vorraum
- WC
- Zimmer 1
- Zimmer 2
- Zimmer 3
- Bad mit Badewanne
- Abstellraum
- Wohnküche
- Terrasse mit
- Pool
- Eigengarten
Bei der Wohnung Top 1 besteht die Möglichkeit der Errichtung eines Nebengebäudes, welches direkt über die Wohnküche erreicht wird. Dieser Raum erweitert die Wohnfläche der Wohnung um 21,7m².
2. Büro Top 2 im 1. Stock: 99,9m² Bürofläche.
Das Büro umfasst zwei Büroräume, einen Besprechungsraum, zwei getrennte Toiletten, eine Teeküche und zwei Abstellräume- sowie eine Terrasse (Osten) und einen Balkon (Weste).
- Vorraum mit Ausgang auf den
- Balkon
- WC
- Abstellraum
- Büroraum 1
- Teeküche
- Büroraum 2 (durch Einzug einer Trennwand können hier zwei Büroräume geschaffen werden)
- WC 2
- Abstellraum
- Besprechungsraum mit Ausgang auf die
- Terrasse
- Abstellraum
3. Wohnung Top 3 im 2. Stock und Dachgeschoss 89,70m² Wohnfläche auf 2 Ebenen
Drei Schlafzimmer, eine Wohnküche, ein Durchgangszimmer, zwei Bäder, zwei WCs, eine Terrasse in den Osten, eine in den Westen blickend.
- Vorraum
- Gang
- Zimmer 1
- Bad 1
- WC
- Zimmer 2
- Bad 2 mit WC
- Wohnküche mit Ausgang auf die
- Terrasse
- Stiegenaufgang zum
- Zimmer 3
Zu den Allgemeinflächen zählen
- der Müllraum (Erdgeschoss)
- Kinderwagenraum (Erdgeschoss)
- Fahrradabstellraum (Untergeschoss)
- 4 Lagerräume
- Technikräume
- 2 PKW-Stellplätze
- Stiegenhaus
Der zwingend erforderliche Prüfingenieur wurde für die Einreichung bereits benannt, im Zuge des Bauwerberwechsels muss vor Baubeginn zwingend ein vom Bauherren gewählter Prüfingenieur neu benannt werden.
Die unbebaute Liegenschaft ist gerodet, für den am Bauplatz befindlichen Baum wurde der Bescheid zur Entfernung und Ersatzpflanzung erwirkt.
Lagebeschreibung:
Die Liegenschaft, auf welcher sich das Haus befindet, ist in einer überdurchschnittlich guten Lage und weist eine überdurchschnittlich gute Verkehrsanbindung, Nahversorgung sowie Infrastruktur auf. Ein detailliertes Lageprofil erhalten Sie, sobald Sie die Anfrage gestellt haben.
Öffentliche Verkehrsverbindung: Nur 11 Gehminuten zur nächsten U-Bahnstation
Bus: 64A Goldhammergasse rd. 111m
U-Bahn: U6 Erlaaer Straße rd. 730m
Straßenbahn: 360 Neuerlaa rd. 1,1km
Bahn: Lokalbahnhof Schönbrunner Allee rd. 1km
Nahversorgung und Infrastruktur:
Die Nahversorgung ist fußläufig vollständig und ausreichend gesichert.
Supermarkt, Bäckerei, Drogerie: rd. 73m, rd. 80m, rd. 99m
Trafik, Bank, Postfiliale: rd. 77m, rd. 83m, rd. 1km
Div. ärztliche Versorgung:
Allgemeinmediziner im Umkreis von 380m
Zahnarzt rd. 380m
Kinderarzt rd. 1,3km, Apotheke rd. 97m
Schulen & Kinderbetreuung:
Kindergärten rd. 570m-900m
Volksschule rd. 830m-1,4km
Restaurants und Lokale befinden sich im fußläufigen Umkreis rund 800m-1km
Bei Kaufvertragsabschluss fallen folgende Kosten an:
Kaufpreis 450.000,00 €
Eintragungsgebühr 4.950,00 €
Grunderwerbssteuer 15.750,00 €
Provision 16.200,00 €
Gesamt 486.900,00 €
Der Makler ist als Doppelmakler tätig.
Es besteht kein Naheverhältnis.
Der Vermittler ist als Doppelmakler tätig.
Infrastruktur / Entfernungen
Gesundheit
Arzt <1.000m
Apotheke <1.000m
Klinik <1.500m
Krankenhaus <1.500m
Kinder & Schulen
Schule <1.000m
Kindergarten <1.000m
Universität <4.500m
Höhere Schule <4.000m
Nahversorgung
Supermarkt <1.000m
Bäckerei <1.000m
Einkaufszentrum <1.000m
Sonstige
Geldautomat <1.000m
Bank <1.000m
Post <1.000m
Polizei <1.000m
Verkehr
Bus <500m
U-Bahn <500m
Straßenbahn <2.500m
Bahnhof <1.000m
Autobahnanschluss <1.000m
Angaben Entfernung Luftlinie / Quelle: OpenStreetMap
Eckdaten
| Kaufpreis: | 450.000,00 € |
| Fläche: | 485,00 m² |
Basisdaten zur Immobilie
| Objektnr: | 3666 |
| Art: | Grundstück |
| Land: | Österreich |
| Baujahr: | 2025 |
| Zustand: | Erstbezug |
| Alter: | Neubau |
| Kaufpreis: | 450.000,00 € |
| Nutzfläche: | 279,90 m² |
| Grundstücksfl.: | 485,00 m² |
| Balkone: | 1 |
| Terrassen: | 4 |
| Stellplätze: | 2 |
| Garten: | 162,80 m² |
Ausstattung
Einbauküche, Wohnküche / offene Küche, Ostbalkon, Westbalkon, Bad mit Fenster, Dusche, Parkplatz
Internet und TV
Information zur Internet und TV Versorgung hier
Ihre persönliche Beratung
Alfred Xaver Kiesling
Alfred X. Kiesling - Immobilien
Alfred@kiesling-immobilien.at
0664 16 45 458
+ 43 664 16 45 45 8
