Sonnige Dachgeschosswohnung mit großem Balkon ++ RUSTENFELD SIEDLUNG
Wohnung
- Dachgeschoß,
1100
Wien
Beschreibung der Immobilie
Zwischen Rustenfeldgasse und Himbergerstraße erwartet Sie diese schöne, hochwertige Neubauwohnung, entstanden 2018, in ruhiger Lage und mit großem SÜD-Balkon.
Zur Ausstattung gehören exklusive Sanitär Armaturen, Internet- Anschlüsse und Kabel-TV, Gegensprechanlage, Fahrradabstellraum, Kellerabteil, hauseigene Tiefgarage, sowie eine moderne Liftanlage vom Keller bis ins Dachgeschoß.
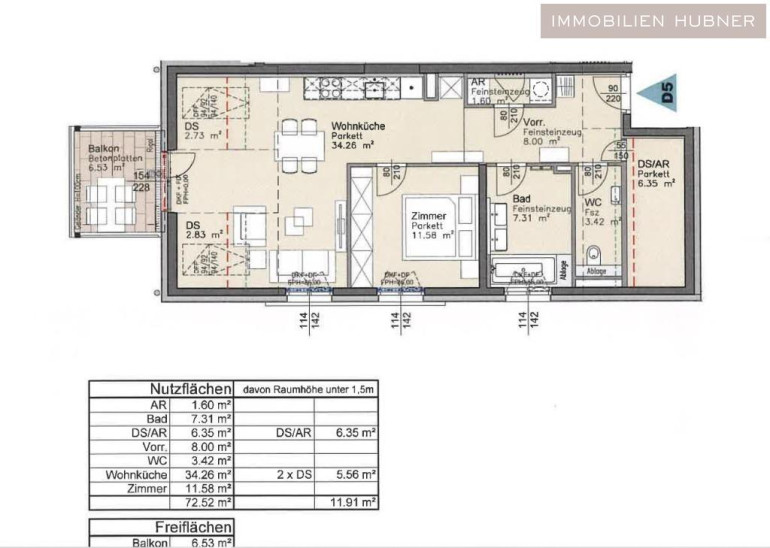
Diese moderne Wohnung besticht durch ihre optimale Raumaufteilung und gliedert sich wie folgt:
RAUMAUFTEILUNG IN STICHWORTEN
• geräumiger Vorraum
• großes Wohnzimmer mit Ausgang zum Balkon
• offene Küche ( unmöbliert)
• Schlafzimmer
• Badezimmer mit Wanne, Doppelwaschbecken und Fenster
• Abstellraum mit Waschmaschinenanschluss
• ein weiterer Stauraum mit ca. 6.35 m2
• WC mit Handwaschbecken
HIGHLIGHTS UND AUSSTATTUNGSMERKMALE
• Baujahr 2018
• großer, sonniger Balkon
• Parkettboden
• hochwertiges Bad
• Feinsteinzeug in allen Nassräumen
• Fußbodenheizung
• Hauszentralheizung mit Thermischer Solaranlage
• hauseigene Tiefgarage (je nach Verfügbarkeit anmietbare Stellplätze oder erwerbbare)
ÖFFENTLICHE VERKEHRSANBINDUNG
• Autobuslinien: 226, 227, 266
• U1 - Station Oberlaa ( in 7 Minuten mit Bus entfernt)
MONATLICHE KOSTENAUFSTELLUNG
• Betriebskosten € 94,43 zzgl. 10% = € 175,50
• Reparaturrücklage Wohnung € 71,50
• Aktuelle monatliche Betriebskosten (2025) gesamt: € 264,55 /Monat
___
Angaben gemäß gesetzlichem Erfordernis: | |||
Heizwärmebedarf: | 34.0 kWh/(m²a) | ||
Klasse Heizwärmebedarf: | B | ||
Faktor Gesamtenergieeffizienz: | 0.65 | ||
Klasse Faktor Gesamtenergieeffizienz: | A+ |
Eckdaten
Objektnr: | 3610_3310 |
Art: | Wohnung - Dachgeschoß |
Land: | Österreich |
Baujahr: | 2018 |
Zustand: | Gepflegt |
Alter: | Neubau |
Kaufpreis: | 359.000,00 € |
Provision: | 3.00 % |
Wohnfläche: | 72,52 m² |
Zimmer: | 2 |
Bäder: | 1 |
WC: | 1 |
Balkone: | 1 |
Stellplätze: | 1 |
Heizwärmebedarf: | B 34,00 kWh/m²a |
fGEE: | A+ 0,65 |
Ausstattung
Solarenergie, Zentralheizung, Personenaufzug, Garage
Internet und TV
Information zur Internet und TV Versorgung hier
Ihre persönliche Beratung

Robert Fried
Hubner Immobilien GmbH
E robert.fried@hubner-immobilien.com