Go2Eisenstadt! Freundliche, helle 2 Zimmer Erstbezugswohnung + Balkon + Parkplätze
Wohnung
,
7000
Eisenstadt
,
Am Bahndamm
Lage der Immobilie
Am Bahndamm - 500m Fußweg zum Bahnhof Eisenstadt, 800m zum EZE Einkaufszentrum EisenstadtBeschreibung der Immobilie
Liebe Wohnungssuchende,
Wir freuen uns über Ihr Interesse an dem Projekt "GO 2 EISENSTADT 4 LIVING" und bieten
auf unserer Projektwebsite www.go2eisenstadt.at
w w w . g o 2 e i s e n s t a d t . a t
einen Überblick über alle verfügbaren Wohneinheiten.
Ob Zwei-, Drei- oder Vierzimmerwohnung – sehen Sie sich die Grundrisspläne in Ruhe durch und teilen uns über das Kontaktformular Ihre Favoriten mit!
Herzlichen Dank!
Hinweis zu den Bildaufnahmen: Einige Wohnungen sind mit gleichem Grundriss in verschiedenen Stockwerken verfügbar. Es kann daher sein, dass die Aufnahmen aus baugleichen Wohnungen im Haus stammen.
NUTZEN SIE GERNE AUCH DIE MÖGLICHKEIT EINER VIDEOBESICHTIGUNG VORAB!
WICHTIG ZU WISSEN: Für eine erfolgreiche Anmietung, muss ein Finanzierungsbeitrag in entsprechender Höhe hinterlegt werden - Detailinformationen finden Sie weiter unten im Text, siehe Punkt Finanzierung!
*************************************
Stellplatz & Stundungsaktion:
Für die Anmietung der Wohnungen ist ein Finanzierungsbeitrag je Wohnungsgröße vor Anmietung zu Leisten. Es gibt auch die Möglichkeit einen Teil des Finanzierungsbeitrags vor Anmietung zu zahlen und den Rest erst nach 3 Jahren - dies wäre dann im Sinne eines Darlehens Seitens der Genossenschaft mit einem Zinssatz von 1,5% p.a. zu verstehen. Weiters verringert sich die Bruttomiete im Falle der Stundung bis 31.12.2026, da die Eigentümer bis zu diesem Datum die Stellplätze gratis zur Verfügung stellen. Ab 01.01.2027 ist die Miete dann in voller Höhe zu entrichten.
Am Beispiel der 2-Zimmer Wohnung Top 9 auf Stiege 1:
Entweder kann der Finanzierungsbeitrag in voller Höhe von € 26.937,02 hinterlegt werden, sodann beträgt der Mietzins inkl. Stellplätzen und aktuellem Heizkosten-Akonto € 834,87. Alternativ kann der Finanzierungsbeitrag in einer ersten Rate in Höhe von € 14.968,41 vor Anmietung und mit der Restzahlung nach 3 Jahren bezahlt werden. Sodann verringert sich die Miete bis 31.12.2026 auf € 750,15 inkl. Stellplätzen und aktuellem Heizkosten-Akonto.
Am Beispiel der 3-Zimmer Wohnung Top 17 auf Stiege 1:
Entweder kann der Finanzierungsbeitrag in voller Höhe von € 36.143,56 hinterlegt werden, sodann beträgt der Mietzins inkl. Stellplätzen und aktuellem Heizkosten-Akonto € 1.097,54. Alternativ kann der Finanzierungsbeitrag in einer ersten Rate in Höhe von € 18.571,78 vor Anmietung und mit der Restzahlung nach 3 Jahren bezahlt werden. Sodann verringert sich die Miete bis 31.12.2026 auf € 1.019,15 inkl. Stellplätzen und aktuellem Heizkosten-Akonto.
Am Beispiel der 4-Zimmer Wohnung Top 7 auf Stiege 2:
Entweder kann der Finanzierungsbeitrag in voller Höhe von € 42.207,16 hinterlegt werden, sodann beträgt der Mietzins inkl. Stellplätzen und aktuellem Heizkosten-Akonto € 1.282,77. Alternativ kann der Finanzierungsbeitrag in einer ersten Rate in Höhe von € 23.103,58 vor Anmietung und mit der Restzahlung nach 3 Jahren bezahlt werden. Sodann verringert sich die Miete bis 31.12.2026 auf € 1.171,98 inkl. Stellplätzen und aktuellem Heizkosten-Akonto.
*************************************
PROJEKT.
Die Wohnhausanlage vereint durchdachte Planung und modernes Design auf harmonische Weise. Der Großteil des Grundstücks wird von einer Tiefgarage und einem großzügigen Kellergeschoss eingenommen. Darüber entstehen zwei elegante, zweigeschossige Wohnhäuser (Stiege 1 und 2) mit insgesamt 46 Wohnungen.
Die Tiefgarage ist bequem über die Zufahrt „Am Bahndamm“ erreichbar. Zusätzlich stehen weitere oberirdische Stellplätze entlang einer neu angelegten Straße parallel zur Bahntrasse zur Verfügung. Fußgänger können die Wohnanlage auch direkt über die Mattersburgerstraße betreten. Die Kellerabteile liegen im Untergeschoss der Stiege 2, die Tiefgarage im Untergeschoss der Stiege 1. Beide Häuser sind im Erdgeschoss jedoch durch einen überdachten Übergang verbunden und schaffen so eine angenehme Verbindung zwischen den Gebäuden.
Die Orientierung der Wohnhäuser ist überwiegend nach Süden ausgerichtet, was lichtdurchflutete Wohnräume garantiert. Komfortabel erschlossen werden alle Wohnebenen durch moderne Aufzüge.
Die Wohnungen in den Obergeschossen verfügen über sonnige Balkone, während die Einheiten im Erdgeschoss mit privaten Gärten ausgestattet sind – teilweise auf dem begrünten Dach der Garage.
Ein liebevoll gestalteter Spielplatz lädt Familien und Kinder zum Verweilen ein. Der Hausgemeinschaft stehen weiters Fahrrad- und Kinderwagenabstellräume im Eingangsbereich der jeweiligen Stiege zur Verfügung.
Das Projekt bietet zudem ein alternatives Gesamtenergiekonzept: Die Beheizung als auch die Warmwasserbereitung erfolgt über Luftwärmepumpen und die Photovoltaik-Anlage dient hierfür zur Strombereitung. Die Wärmeabgabe in den einzelnen Räumen erfolgt über eine Fußbodenheizung. Die Wärmepumpen können nicht nur zum Heizen, sondern auch zum Kühlen verwendet werden. Die im Estrich verlegten Leitungen funktionieren daher sowohl als Heiz- als auch als Kühlsystem.
Diese Wohnhausanlage steht für modernes Wohnen, das Funktionalität und Lebensqualität auf ideale Weise kombiniert.
WOHNUNG.
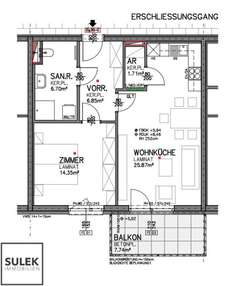
Diese attraktive Wohnung bietet auf ca. 55,48 m² modernen Wohnkomfort und überzeugt durch eine durchdachte Raumaufteilung.
Über den Zentralen Vorraum bietet diese Neubauwohnung folgende Annehmlichkeiten:
- Wohnküche: Der offene und lichtdurchflutete Wohnbereich beinhaltet eine Küche, die geschickt in einer praktischen Nische platziert ist. Die Küche bietet Zugang zu einem Abstellraum (Speisekammer) und sorgt so für zusätzlichen Stauraum.
- ein Schlafzimmer (ca. 14m²) bietet ausreichend Platz für individuelle Gestaltung
- ein Badezimmer, ausgestattet mit Dusche, Waschplatz, Waschmaschinen Anschluss und einem WC
Vom Wohnbereich aus gelangen Sie direkt auf den ca. 7,8 m² großen, südost gerichtetem Balkon. Ein zugehöriges Kellerabteil sowie zwei PKW-Stellplätze runden das Angebot perfekt ab.
Zusätzliche Merkmale:
- Zwei PKW-Stellplätze (Tiefgarage GA 42 und im Freiem AP 26)
- Kellerabteil (ca. 5,25 m²)
FINANZIERUNG.
Für eine erfolgreiche Anmietung ist wichtig zu wissen, dass:
- ein Finanzierungsbeitrag in Höhe von € 26.937,02 hinterlegt werden muss,
- die Vorlage eines Einkommensnachweises (z.B. die letzten drei Gehaltszettel) notwendig ist,
- die Miete max. 50% des Haushaltsnettoeinkommens ausmachen darf,
- Kosten für Kaltwasser, Warmwasser und Heizung separat nach Verbrauch verrechnet werden und in der inserierten Miete nicht inkludiert sind.
Es gibt die Möglichkeit 50 % des Finanzierungsbeitrags für einen Zeitraum von drei Jahren zu stunden. Während dieser Zeit werden lediglich Zinsen in Höhe von 1,5 % jährlich auf den gestundeten Betrag verrechnet. Zudem werden sowohl ein PKW-Abstellplatz als auch ein Garagenplatz bis zum 31.12.2026 kostenlos zur Verfügung gestellt, sodass sich die Miete in diesem Zeitraum reduziert.
Kaufoption:
- Ein sofortiger Ankauf ist nicht möglich!
- Nach 5 / 10 / 15 / 20 Jahren gibt es die Möglichkeit ein Kaufanbot an die Genossenschaft zu stellen.
- Die Miete wird nicht auf einen etwaigen Kauf angerechnet.
LAGE / INFRASTRUKTUR.
Willkommen in Eisenstadt – Lebensqualität pur
Eisenstadt vereint alles, was modernes Wohnen ausmacht: erstklassige Bildung von der Vorschule bis zur Hochschule, umfassende medizinische Versorgung und optimale Verkehrsanbindungen.
Die Stadt punktet mit einem gut ausgebauten Nahverkehr, direkter Autobahnanbindung und einer vielfältigen Auswahl an Einkaufsmöglichkeiten – von charmanten Boutiquen in der Innenstadt bis hin zu modernen Einkaufszentren.
Hier treffen Bildung, Gesundheit und Mobilität aufeinander, um eine lebendige Gemeinschaft zu schaffen, in der sich jede Generation wohlfühlt. Eisenstadt ist mehr als ein Wohnort – es ist ein Ort zum Leben.
Die Liegenschaft befindet sich zwischen der südlichen und südwestlichen Haupterschließungsachse von Eisenstadt – der Mattersburger Straße (B50) und der Rusterstraße (B52). Die Wohnhausanlage grenzt an ein Geschäftsviertel mit zahlreichen Einkaufsmöglichkeiten und liegt in der Nähe der Anbindung an die Burgenland Schnellstraße S31.
Öffentliche Verkehrsanbindung:
- Bushaltestelle "Franz-Werffel-Gasse" - 350m (5 Gehminuten)
- "Bahnhof Eisenstadt" R64, REX64 - 500m (7 Gehminuten)
- Bushaltestelle "Mattersburger Straße 15" - 650m (9 Gehminuten)
Einkaufsmöglichkeiten und Nahversorgung:
Das Einkaufszentrum EZE Eisenstadt liegt nur wenige Gehminuten (750m) entfernt. Hier befinden sich zahlreiche Geschäfte diverser Händler (Lebensmittel, Drogerie, Elektrohandel, Bekleidung, Dienstleistungsbetriebe wie z.B. ein Frisör, und vieles mehr). Die nächstgelegenen Supermärkte sind ein Penny in 400m Entfernung (6 Gehminuten) und ein BILLA in 550m (8 Gehminuten). Der nächste Drogeriemarkt (BIPA) befindet sich im EZE, 11 Gehminuten entfernt. Eine Apotheke, Bank- und Postfiliale finden Sie im Zentrum der Stadt (ca. 1,5km, 3 Autofahrtminuten).
*************************************
Für weitere Informationen stehen wir Ihnen gerne tel. unter +43 660 125 52 42 oder per E-Mail an pr@sulek-immobilien.at zur Verfügung.
*************************************
Die zur Verfügung gestellten Informationen beruhen auf Angaben des Abgebers, der Gemeinde und der Hausverwaltung bzw. der jeweiligen Professionisten. Für die Richtigkeit und Vollständigkeit der Angaben kann keine Gewähr bzw. Haftung übernommen werden.
Bitte beachten Sie, dass unser Unternehmen keine Reisekosten übernimmt, die im Zusammenhang mit der Besichtigung von Immobilien anfallen. Alle anfallenden Kosten für Anreise, Unterkunft und Verpflegung müssen von den Interessenten selbst getragen werden. Des Weiteren übernehmen wir keine Haftung für Kosten, die durch kurzfristige Stornierungen oder Änderungen von Besichtigungsterminen entstehen können.
Wir danken für Ihr Verständnis.
*************************************
Noch nichts gefunden? Wir informieren Sie über geeignete Immobilienangebote noch vor allen anderen.
Legen Sie jetzt Ihren individuellen Suchagenten unter folgendem Link an. Wir schicken Ihnen passende Immobilien exklusiv vorab zu.
Suchagent anlegen - https://sulek-immobilien.service.immo/registrieren/de
Der Immobilienmakler erklärt, dass er – entgegen dem in der Immobilienwirtschaft üblichen Geschäftsgebrauch des Doppelmaklers – einseitig nur für den Vermieter tätig ist.
Infrastruktur / Entfernungen
Gesundheit
Arzt <500m
Apotheke <1.250m
Klinik <8.000m
Krankenhaus <1.500m
Kinder & Schulen
Schule <1.250m
Kindergarten <750m
Universität <1.250m
Höhere Schule <1.500m
Nahversorgung
Supermarkt <250m
Bäckerei <750m
Einkaufszentrum <250m
Sonstige
Bank <500m
Geldautomat <500m
Post <750m
Polizei <1.000m
Verkehr
Bus <250m
Autobahnanschluss <1.500m
Bahnhof <500m
Angaben Entfernung Luftlinie / Quelle: OpenStreetMap
Eckdaten
| Objektnr: | 25582 |
| Art: | Wohnung |
| Land: | Österreich |
| Baujahr: | 2025 |
| Zustand: | Erstbezug |
| Alter: | Neubau |
| Gesamtmiete: | 834,87 € |
| Kaltmiete (netto): | 693,11 € |
| Kaltmiete: | 808,24 € |
| Provision: | Gemäß Erstauftraggeberprinzip bezahlt der Abgeber die Provision. |
| Betriebskosten: | 115,13 € |
| Heizkosten: | 26,63 € |
| Wohnfläche: | 55,48 m² |
| Zimmer: | 2 |
| Bäder: | 1 |
| WC: | 1 |
| Balkone: | 1 |
| Stellplätze: | 1 |
| Keller: | 5,25 m² |
| Heizwärmebedarf: | B 33,00 kWh/m²a |
| fGEE: | A+ 0,62 |
Ausstattung
Fliesen, Laminatboden, Fußbodenheizung, Wohnküche / offene Küche, Personenaufzug, Südbalkon, Dusche, Kabel/Satelliten-TV, Parkplatz, Tiefgarage
Internet und TV
Information zur Internet und TV Versorgung hier
Ihre persönliche Beratung
Philipp Renner
Mittelsmann Philipp Sulek GmbH
pr@sulek-immobilien.at
+43 660 125 52 42
