Stock2Live Exklusive Wohneinheiten 42qm - 120qm in Stockerau! _fußläufig zu Schule und Bahnhof!
Wohnung
- Etage,
2000
Stockerau
Lage der Immobilie
INNENSTADT FUSSLÄUFIG zu SCHULE und BAHNHOF TIEFGARAGE, LIFTBeschreibung der Immobilie
Eckdaten
Objektnr: | 130127_36 |
Art: | Wohnung - Etage |
Land: | Österreich |
Baujahr: | 2023 |
Zustand: | Erstbezug |
Kaufpreis: | 270.000,00 € |
Provision: | 3% zzgl. 20% USt. |
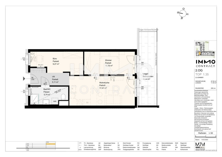
Wohnfläche: | 47,83 m² |
Zimmer: | 2,50 |
Bäder: | 1 |
Heizwärmebedarf: | 25,00 kWh/m²a |
fGEE: | 0,72 |
Ausstattung
Fernwärme
Internet und TV
Information zur Internet und TV Versorgung hier
Ihre persönliche Beratung

Doris Schneider-Hiesberger
IMMOcontract Immobilien Vermittlung GmbH
E D.Schneider-Hiesberger@IMMOcontract.at
H 00436648191815