Zentrale Terrassen-Wohnung
Wohnung
,
1190
Wien
Lage der Immobilie
Diese attraktive Wohnung in 1190 Wien überzeugt durch ihre ideale Lage. In unmittelbarer Nähe finden Sie alles, was das Herz begehrt: Ärzte, Apotheken und Kliniken sorgen für Ihre Gesundheit, während Schulen und Kindergärten eine optimale Bildung bieten. Einkaufsmöglichkeiten wie Supermärkte und Bäckereien sind bequem erreichbar. Dank der ausgezeichneten Anbindung an öffentliche Verkehrsmittel wie Bus, U-Bahn und Straßenbahn gelangen Sie schnell ins Stadtzentrum.Beschreibung der Immobilie
Helle Wohnung mit Terrasse & Loggia – Wohnen mit Ausblick im Herzen Wiens
Diese charmante Eigentumswohnung überzeugt durch ihre außergewöhnliche Helligkeit.Große Fensterfronten durchfluten die Wohnräume mit Tageslicht und schaffen ein offenes, freundliches Wohngefühl.
Highlights der Wohnung sind die Terrasse und die separate Loggia – perfekt, um Sonne zu genießen, den Tag ausklingen zu lassen oder Gäste zu empfangen. Von hier aus eröffnet sich ein angenehmer Ausblick auf ein gepflegtes Botschaftergebäude und die Umgebung.
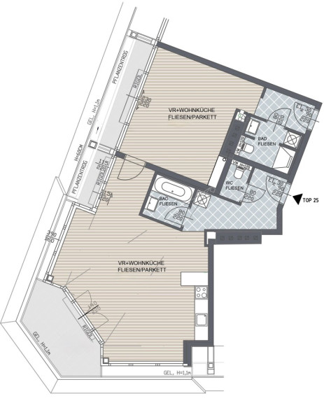
Die Wohnung umfasst:
-
einen Vorraum
-
großzügige Wohnküche mit Terrasse
-
ein separates WC
-
ein modernes Badezimmer mit Wanne
-
geräumiges Zimmer mit eigener Loggia, angeschlossenem Schrankraum und Badezimmer mit Dusche
Im Kellergeschoss befindet sich außerdem ein 9,15 m² großer Einlagerungsraum.
Darüber hinaus profitieren Sie von einer ausgezeichneten Infrastruktur in der Umgebung. Ärzte, Apotheken, Kliniken und Schulen sind gut erreichbar, sodass Sie in Ihrer neuen Nachbarschaft alles finden, was Sie für den täglichen Bedarf benötigen. Supermärkte und Bäckereien sind ebenfalls in der Nähe, was Ihnen das Einkaufen erleichtert.
Die Verkehrsanbindung ist hervorragend – egal ob Sie mit dem Auto, Bus, U-Bahn oder der Straßenbahn unterwegs sind, Sie erreichen schnell und unkompliziert Ihr Ziel. Der nahegelegene Bahnhof und die Autobahnanschlüsse bieten zusätzliche Flexibilität und Mobilität.
Öffentliche Verkehrsanbindung:
- Straßenbahnlinie 37 (nächste Haltestelle etwa 1–2 Gehminuten entfernt)
- U-Bahn U4 (etwa 13 Gehminuten entfernt - in 4 Minuten mit dem Bus erreichbar)
- U-Bahn U6 (etwa 15 Gehminuten entfernt - mit der Straßenbahn in 7 min erreichbar)
- Buslinien: 10A und 39A (nächste Haltestellen etwa 1–2 Gehminuten entfernt)
Dieses Schmuckstück bietet Wohnkomfort und Lebensqualität in zentraler Lage. -> Zögern Sie nicht und vereinbaren Sie noch heute einen Besichtigungstermin.
Hinweis: Einige der gezeigten Fotos wurden digital bearbeitet bzw. virtuell möbliert. Sie dienen der Veranschaulichung, damit Sie das kreative Potenzial der Räume besser erleben können.
Noch nichts gefunden? Wir informieren Sie über geeignete Immobilienangebote noch vor allen anderen.
Legen Sie jetzt Ihren individuellen Suchagenten unter folgendem Link an. Wir schicken Ihnen passende Immobilien exklusiv vorab zu.
Suchagent anlegen - https://s-commerz-immobilienvermittlung.service.immo/registrieren/de
Wir weisen darauf hin, dass zwischen dem Vermittler und dem zu vermittelnden Dritten ein familiäres oder wirtschaftliches Naheverhältnis besteht.
Infrastruktur / Entfernungen
Gesundheit
Arzt <500m
Apotheke <1.000m
Klinik <1.000m
Krankenhaus <1.000m
Kinder & Schulen
Schule <500m
Kindergarten <500m
Universität <500m
Höhere Schule <1.000m
Nahversorgung
Supermarkt <500m
Bäckerei <500m
Einkaufszentrum <1.500m
Sonstige
Geldautomat <500m
Bank <500m
Post <500m
Polizei <500m
Verkehr
Bus <500m
U-Bahn <1.000m
Straßenbahn <500m
Bahnhof <1.000m
Autobahnanschluss <1.000m
Angaben Entfernung Luftlinie / Quelle: OpenStreetMap
Eckdaten
| Objektnr: | 3483 |
| Art: | Wohnung |
| Land: | Österreich |
| Baujahr: | 2016 |
| Zustand: | Gepflegt |
| Möbliert: | Teil |
| Kaufpreis: | 489.000,00 € |
| Provision: | 3% des Kaufpreises zzgl. 20% USt. |
| Wohnfläche: | 83,28 m² |
| Zimmer: | 2 |
| Bäder: | 2 |
| WC: | 2 |
| Terrassen: | 1 |
| Keller: | 9,15 m² |
| Heizwärmebedarf: | A 38,20 kWh/m²a |
| fGEE: | A 0,80 |
Ausstattung
Parkett, Fliesen, Gas, Fußbodenheizung, Zentralheizung, Wohnküche / offene Küche, Personenaufzug, Westbalkon, Badewanne, Dusche, Kabel/Satelliten-TV
Internet und TV
Information zur Internet und TV Versorgung hier
Ihre persönliche Beratung
Mag. Karin LOCSMANDI
S-COMMERZ Immobilienvermittlung GmbH
k.locsmandi@s-commerz.at
+43 50100 672 791
+43 664 838 9815
