Moderne Bürofläche in begehrter Lage: Kalvarinbergstraße als Ihr neuer Geschäftsstandort
Büro / Praxis
,
8020
Graz
,
Kalvarienbergstraße
Lage der Immobilie
Die Kalvarienbergstraße liegt inmitten von Graz und bietet eine ausgezeichnete Erreichbarkeit. Diese zentrale Position erleichtert nicht nur den Zugang zu verschiedenen Teilen der Stadt, sondern macht die Adresse auch für Geschäfte und Büros äußerst attraktiv. Die gute Anbindung an das öffentliche Verkehrsnetz macht es einfach, die Kalvarienbergstraße mit öffentlichen Verkehrsmitteln zu erreichen. Gleichzeitig bietet die zentrale Lage eine gute Erreichbarkeit für Pendler und Geschäftsreisende.Beschreibung der Immobilie
Attraktives Büro in Graz: Effiziente Raumaufteilung, Klimaanlagen und Parkplatz inklusive!
Willkommen in Ihrem neuen Büro in der Kalvarienbergstraße, Graz – einer perfekten Umgebung für produktives Arbeiten und geschäftlichen Erfolg.
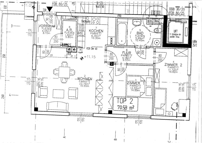
Große Büroräumlichkeit mit rd. 71m² befindet sich im 3.OG (Lift ist vorhanden) eines optimal gelegenen Neubauhaus (Baujahr 2000).
Diese Bürofläche zeichnet sich durch eine durchdachte Raumaufteilung aus, bestehend aus einem einladenden Vorraum, zwei getrennten Zimmern für flexible Nutzung, einem Serverraum sowie einem praktischen Bad/WC. Die zwei Klimaanlagen in den Zimmern sorgen das ganze Jahr über für ein angenehmes Arbeitsklima und ermöglichen höchsten Komfort.
Zusätzlich ist im Preis bereits ein Parkplatz im Freien inkludiert, der Ihnen und Ihren Mitarbeitern bequemes Parken vor Ort ermöglicht. Diese Annehmlichkeit ist nicht nur praktisch, sondern auch kosteneffektiv.
Die zentrale Lage in der Kalvarienbergstraße bietet nicht nur eine gute Erreichbarkeit, sondern auch die Nähe zu Annehmlichkeiten wie Einkaufsmöglichkeiten, Restaurants und Cafés, um Ihren Arbeitsalltag angenehmer zu gestalten.
Nutzen Sie diese Gelegenheit, um sich in einem professionellen Umfeld einzurichten, das sowohl die Bedürfnisse Ihres Geschäfts als auch den Komfort Ihrer Mitarbeiter berücksichtigt.
Vereinbaren Sie noch heute einen Besichtigungstermin und entdecken Sie, wie dieses Büro Ihren geschäftlichen Anforderungen gerecht werden kann.
Wir konnten Ihr Interesse wecken? Gerne vereinbaren wir einen Termin um mit Ihnen das Büro zu besichtigen und Ihnen weitere Details zu erzählen
Wir weisen darauf hin, dass zwischen dem Vermittler und dem zu vermittelnden Dritten ein familiäres oder wirtschaftliches Naheverhältnis besteht.
Der Vermittler ist als Doppelmakler tätig.
Infrastruktur / Entfernungen
Gesundheit
Arzt <250m
Apotheke <1.000m
Klinik <1.000m
Krankenhaus <2.000m
Kinder & Schulen
Schule <500m
Kindergarten <250m
Universität <1.500m
Höhere Schule <1.500m
Nahversorgung
Supermarkt <250m
Bäckerei <750m
Einkaufszentrum <1.750m
Sonstige
Geldautomat <250m
Bank <250m
Post <750m
Polizei <750m
Verkehr
Bus <250m
Straßenbahn <750m
Bahnhof <1.750m
Autobahnanschluss <4.500m
Angaben Entfernung Luftlinie / Quelle: OpenStreetMap
Eckdaten
| Kaltmiete (netto): | 635,00 € |
| Fläche: | 70,53 m² |
Basisdaten zur Immobilie
| Objektnr: | 3147 |
| Art: | Büro / Praxis |
| Land: | Österreich |
| Baujahr: | 2000 |
| Zustand: | Neuwertig |
| Alter: | Neubau |
| Kaltmiete (netto): | 635,00 € |
| Kaltmiete: | 837,85 € |
| Provision: | 3 Bruttomonatsmieten zzgl. 20% USt. |
| Betriebskosten: | 202,85 € |
| MwSt Gesamt: | 167,57 € |
| Bürofläche: | 70,53 m² |
| Bäder: | 1 |
| WC: | 2 |
| Heizwärmebedarf: | D 117,00 kWh/m²a |
| fGEE: | C 1,46 |
Ausstattung
Parkett, Fliesen, Fernwärme, Personenaufzug, Badewanne, Kabel/Satelliten-TV, DV-Verkabelung, Parkplatz, Teeküche
Internet und TV
Information zur Internet und TV Versorgung hier
Ihre persönliche Beratung
Anna Baranova
Immo Circle GesBR
a.baranova@immo-circle.at
+43 660 7662289
+43 660 7662289
