Ared Park - Microbüro mit Gemeinschaftsräumen - 111/B04
Büro / Praxis
,
2544
Enzesfeld-Lindabrunn
,
Aumühlweg 21
Beschreibung der Immobilie
Der ARED Park ca. 30 Kilometer südlich von Wien ist ein TOP Standort für Ihr Unternehmen. Bisher haben sich mehr als 450 Firmen in dem 500.000 m² großem Gewerbegebiet angesiedelt. An diesem Standort wurden bereits mehr als 42.000,00 m² Hallenflächen und mehr als 22.000,00 m² Büroflächen errichtet. Wir bieten Büros, Hallen und Lager in unterschiedlichen Größen. Der Gewerbepark ist unmittelbar an der A2 Abfahrt Leobersdorf und ist mit dem Individualverkehr ideal zu erreichen. Die öffentliche Erreichbarkeit ist über die Südbahnstrecke mit dem Zug zum Bahnhof Leobersdorf und dann mit dem Bus direkt zum Ared Park sehr gut.
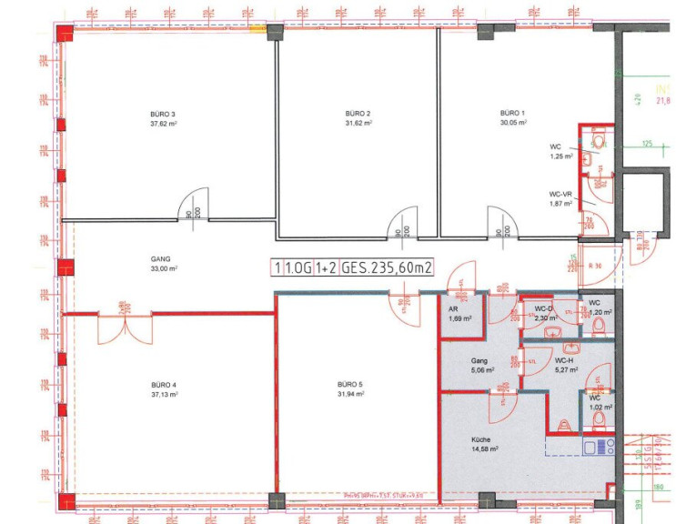
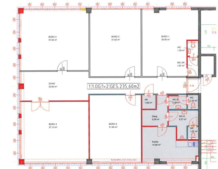
Einzelbüro mit ca. 51,01 m² - inkl. anteiligen Allgemeinflächen (Küche mit Geräten und WC Anlagen, die Bürofläche alleine: ca. 37,13 m²)
Ausstattung:
- Fußbodenheizung
- Verkabelung über Brüstungskanal
- Gratis-Freiparkplätze
- Aufzug
Allgemein:
- Teeküche
- Toiletten Damen und Herren getrennt
Mietkosten:
(Nutzfläche: Bürofläche + anteiliger Allgemeinfläche)
- Betriebskosten beinhalten: Betriebskosten, Heizkosten, Stromkosten und allgemeine wöchentliche Reinigung
Kaution: 3 Bruttomonatsmieten
Verfügbare Flächen
Stiege/Bauteil
Stiege/Bauteil 1
Stiege/Bauteil 2
Eckdaten
| Kaltmiete (netto): | 344,82 € |
| Fläche: | 51,01 m² |
| Zimmer: | 1 |
Basisdaten zur Immobilie
| Objektnr: | 6984/310 |
| Art: | Büro / Praxis |
| Land: | Österreich |
| Kaltmiete (netto): | 344,82 € |
| Kaltmiete: | 658,34 € |
| Miete / m²: | 10,10 € |
| Betriebskosten: | 313,52 € |
| MwSt Gesamt: | 131,66 € |
| Nutzfläche: | 51,01 m² |
| Bürofläche: | 37,13 m² |
| Zimmer: | 1 |
| Heizwärmebedarf: | 62,70 kWh/m²a |
Ausstattung
Laminatboden, Fußbodenheizung, Personenaufzug, Parkplatz, Teeküche
Internet und TV
Information zur Internet und TV Versorgung hier
Ihre persönliche Beratung
Clemens Haselgruber
AURA Wohnungseigentums ges.m.b.H
c.haselgruber@aurabau.at
06644352241
