Stilvolle Maisonettewohnung mit Kamin und Dachterrassen im 4. Bezirk
Wohnung
- Penthouse,
1040
Wien
,
Schelleingasse
Lage der Immobilie
Der 4. Bezirk ist für seine hervorragende Lebensqualität und seine kulturelle Vielfalt bekannt. Sie sind nicht nur wenige Schritte von Parks, Restaurants, Einkaufsmöglichkeiten und öffentlichen Verkehrsmitteln entfernt, auch das Wiener Stadtzentrum erreicht man in Kürze. Die Schelleingasse 4 bietet eine erstklassige Verkehrsanbindung. In unmittelbarer Nähe finden Sie Straßenbahn- und Buslinien, die Sie schnell und bequem durch die Stadt bringen. Der Hauptbahnhof ist ebenfalls nur einen kurzen Spaziergang entfernt, was die Anbindung an den öffentlichen Nah- und Fernverkehr hervorragend macht.Beschreibung der Immobilie
In einem charmanten Wiener Altbau aus dem Jahre 1910 gelangen 6 Wohnungen sowie ein Atelier in den Verkauf.
Diese einzigartigen Wohnungen bieten nicht nur historischen Flair, sondern auch modernen Komfort in einer der begehrtesten Wohngegenden der Stadt.
Das Highlight dieses Altbaujuwels ist zweifelsohne die wunderschöne Dachgeschoßwohnung, die lichtdurchfluteten Wohnraum inmitten einer historischen Kulisse bietet.
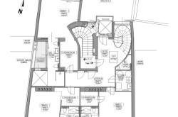
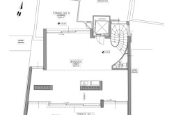
Diese Maisonette-Wohnung wurde ohne Dachschrägen neu errichtet, um höchste Ansprüche an Qualität und Design zu erfüllen. Jeder Raum wurde mit Liebe zum Detail gestaltet, um modernen Wohnkomfort zu gewährleisten. Auf beiden Ebenen findet sich ein eigener Zugang zum neu errichteten, verglasten Lift.
Die bodentiefen Fenster schaffen eine Verbindung zur umgebenden Stadt und verleihen der Wohnung ein helles, offenes Ambiente.
Das Herzstück dieser Immobilie ist der Kamin in der geräumigen Wohnküche, der für Gemütlichkeit und Wärme sorgt. Hier können Sie kulinarische Köstlichkeiten zubereiten und gleichzeitig das Flair eines Kaminabends genießen.
Die Wohnküche bietet direkten Zugang zu einer Ihrer, in den Innenhof ausgerichteten, Dachterrassen. Hier können Sie die warmen Sonnenstrahlen genießen, entspannen oder gesellige Abende mit Freunden und Familie verbringen.
Wenn Sie nach einem einzigartigen Wohnraum suchen, der Ihre Lebensqualität auf ein neues Level hebt, dann ist diese Wohnung im 4. Bezirk die perfekte Wahl für Sie.
Ausstattung:
- Fischgrätparkettböden (Eiche natur) in den Wohnräumen
- Großformatiges Feinsteinzeug in den Nassräumen
- Luftwärmepumpe, Fußbodenheizung und -kühlung - teilweise auch in den Wohnungswänden
- Großflächige Hebe-/Schiebetüren
- Holz-Alu-Fenster
- KNX-Verkabelung
- Beleuchtungskörper von 'Romeo Babe'
- Bewässerungsanlage auf den Terrassen
- Video-Gegensprechanlage
- Sonnenschutz: elektrisch betriebene Raffstores bei allen Fenstern
- Terrassen mit Bewässerungsanlage und Außenbeleuchtung
Diese wunderschöne Dachgeschoß-Wohnung in einem prachtvollen Wiener Stadthaus bietet mit ihrer modernen Ausstattung, höchsten Komfort. Mit ihren großzügigen Räumen, den atemberaubenden Terrassen und der zentralen Lage ist sie ideal für Familien, Paare oder Einzelpersonen, die das Beste aus dem Wiener Stadtleben erleben möchten.
Machen Sie sich hier eine Überblick über die Wohnung!
Wir weisen darauf hin, dass zwischen dem Vermittler und dem zu vermittelnden Dritten ein familiäres oder wirtschaftliches Naheverhältnis besteht.
Der Vermittler ist als Doppelmakler tätig.
Infrastruktur / Entfernungen
Gesundheit
Arzt <250m
Apotheke <250m
Klinik <500m
Krankenhaus <1.250m
Kinder & Schulen
Schule <500m
Kindergarten <250m
Universität <1.250m
Höhere Schule <1.000m
Nahversorgung
Supermarkt <250m
Bäckerei <250m
Einkaufszentrum <750m
Sonstige
Geldautomat <250m
Bank <250m
Post <250m
Polizei <500m
Verkehr
Bus <250m
U-Bahn <250m
Straßenbahn <250m
Bahnhof <250m
Autobahnanschluss <2.250m
Angaben Entfernung Luftlinie / Quelle: OpenStreetMap
Eckdaten
| Kaufpreis: | 2.495.000,00 € |
| Fläche: | 197,70 m² |
| Zimmer: | 4 |
Basisdaten zur Immobilie
| Objektnr: | 84614 |
| Art: | Wohnung - Penthouse |
| Land: | Österreich |
| Baujahr: | 1910 |
| Zustand: | Erstbezug |
| Alter: | Altbau |
| Kaufpreis: | 2.495.000,00 € |
| Provision: | 3% des Kaufpreises zzgl. 20% USt. |
| Betriebskosten: | 346,81 € |
| MwSt Gesamt: | 39,88 € |
| Wohnfläche: | 197,70 m² |
| Zimmer: | 4 |
| Bäder: | 3 |
| WC: | 5 |
| Terrassen: | 4 |
| Keller: | 2,92 m² |
| Heizwärmebedarf: | B 42,50 kWh/m²a |
| fGEE: | A 0,81 |
Ausstattung
Fliesen, Parkett, Fußbodenheizung, Kamin, Personenaufzug, Nordbalkon, Südbalkon, Bad mit Fenster, Badewanne, Dusche
Internet und TV
Information zur Internet und TV Versorgung hier
Ihre persönliche Beratung
Ilse Reindl
EHL Immobilien GmbH
i.reindl@ehl.at
+43 1 5127690 410
+43 664 881 601 43
