LIESING GARDENS als Vorsorgeobjekt: Urbanes Wohnen im Grünen für Ihre Zukunft
Wohnung
,
1230
Wien
,
Draschestraße
Lage der Immobilie
Die Lage von Liesing Gardens verspricht eine perfekte Verbindung von urbanem Komfort und naturnaher Idylle. Eingebettet zwischen Atrien- und Reihenhäusern sowie den Grünanlagen entlang des Liesingbachs bietet dieses Projekt eine Oase der Ruhe und Erholung direkt vor der Haustür. Die Nähe zu bedeutenden Einrichtungen und Freizeitmöglichkeiten wie dem Wienerberg, der Hochschule Campus Wien und dem Westfield Shopping Center Süd garantiert eine hohe Lebensqualität. Familien schätzen die fußläufige Erreichbarkeit von Schulen, Kindergärten und Supermärkten für eine bequeme Alltagsstruktur. Mit einer ausgezeichneten Anbindung über die Triester Straße und den Knoten Inzersdorf ist Liesing Gardens sowohl für Autofahrer als auch Pendler optimal erreichbar. Die Nähe zu Autobahnen wie der A2, A23 und A21 gewährleistet eine unkomplizierte Anbindung an das regionale Straßennetz. Öffentliche Verkehrsmittel: Buslinien: 16A, 17A, 66A, 67ABeschreibung der Immobilie
Investieren Sie jetzt in Ihre Zukunft mit Liesing Gardens – Vorsorgewohnungen in Wiens Süden!
Liesing Gardens präsentiert ein exklusives Wohnbauprojekt im idyllischen Süden Wiens, das die perfekte Symbiose aus urbaner Raffinesse und naturnahem Lebensstil bietet. Hier verschmelzen die Vorzüge einer grünen Umgebung entlang des Liesingbachs mit moderner Infrastruktur zu einem einzigartigen Wohnkonzept.
Das Projekt
Entdecken Sie durchdachte 2- bis 5-Zimmer-Wohneinheiten, die von Loggien und Balkonen bis hin zu townhouse ähnlichen Anordnungen mit privaten Gartenflächen reichen. Ein Highlight bilden die zwei Doppelhäuser, eingebettet in großzügige Gärten, die ein Höchstmaß an Privatsphäre und Lebensqualität bieten. Unser architektonisches Konzept schafft die perfekte Balance zwischen urbanem Flair und entspannten Rückzugsorten.
- 33 Wohnungen
- 2 Doppelhäuser
- Wohnflächen von 36 bis 117 m²
- 2 bis 5 Zimmer
- Fahrrad-/Kinderwagenraum
- Gemeinschaftsgärten
- Kinderspielplatz
Die Ausstattung
Genießen Sie Eleganz und Funktionalität in jedem Detail unserer Innenausstattung. Hochwertige Parkettböden, großformatige Fliesen und Feinsteinzeug schaffen eine ansprechende Atmosphäre. Die Auswahl namhafter Hersteller für Armaturen und Sanitärkeramik sowie Qualitätsfenster mit 3-fach-Verglasung unterstreichen den Fokus auf Qualität und Langlebigkeit.
- Qualitätsfenster mit 3-fach-Verglasung
- Raffstore-Elemente bzw. außenliegende Rollos
- Hochwertige Parkettböden
- Großformatige Fliesen und Feinsteinzeug
- Fußbodenheizung und Kühlung
- Audio-Gegensprechanlage
Nachhaltigkeit
Liesing Gardens setzt Maßstäbe in Sachen Nachhaltigkeit und Effizienz. Das innovative Energiesystem mit photovoltaikgestützter Geothermie garantiert nicht nur niedrige Heizkosten, sondern auch einen kosteneffizienten Betrieb der Wärmepumpe. Mit viel Grünfläche, dem Erhalt des Baumbestands und ökologischen Bautechniken wird aktiv eine lebenswerte Zukunft gestaltet.
- Beheizung über Geothermie/Erdwärmepumpe
- Zusätzliche Kühlung im Dachgeschoss über thermische Bauteilaktivierung
- Photovoltaikanlage am Dach
- Ökologische Haustechniksteuerung
- E-Tankstellen in der Tiefgarage
Entdecken Sie Ihr neues Zuhause, wo Urbanität, Natur und Nachhaltigkeit in perfekter Harmonie zusammenkommen – inve
Kaufpreise der Vorsorgewohnungen
von EUR 206.100,- bis EUR 719.100,- netto zzgl. 20% USt.
Zu erwartender Mietertrag
von EUR 13,50 bis EUR 14,50 netto/m²
Provisionsfrei für den Käufer
Fertigstellung: 2. Quartal 2026
Mehr Informationen und Grundrisse finden Sie auf unserer Projekthomepage.
Bei diesem Angebot handelt es sich um eine Vorsorgewohnung, die zu Vermietungszwecken erworben wird. Der angegebene Kaufpreis versteht sich daher zzgl. 20% USt. Diese Daten sind vorbehaltlich möglicher Änderungen.
Wir weisen darauf hin, dass zwischen dem Vermittler und dem zu vermittelnden Dritten ein familiäres oder wirtschaftliches Naheverhältnis besteht.
Der Vermittler ist als Doppelmakler tätig.
Infrastruktur / Entfernungen
Gesundheit
Arzt <500m
Apotheke <500m
Klinik <500m
Krankenhaus <2.500m
Kinder & Schulen
Schule <250m
Kindergarten <500m
Universität <2.500m
Höhere Schule <3.500m
Nahversorgung
Supermarkt <250m
Bäckerei <750m
Einkaufszentrum <750m
Sonstige
Geldautomat <750m
Bank <750m
Post <750m
Polizei <1.500m
Verkehr
Bus <250m
U-Bahn <2.500m
Straßenbahn <750m
Bahnhof <1.500m
Autobahnanschluss <750m
Angaben Entfernung Luftlinie / Quelle: OpenStreetMap
Eckdaten
| Kaufpreis: | 485.100,00 € |
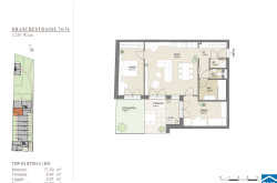
| Fläche: | 77,57 m² |
| Zimmer: | 3 |
Basisdaten zur Immobilie
| Objektnr: | 83953 |
| Art: | Wohnung |
| Land: | Österreich |
| Baujahr: | 2025 |
| Zustand: | Erstbezug |
| Alter: | Neubau |
| Kaufpreis: | 485.100,00 € |
| Kaufpreis / m²: | auf Anfrage |
| Provision: | Provision bezahlt der Abgeber. |
| Wohnfläche: | 77,57 m² |
| Zimmer: | 3 |
| Bäder: | 1 |
| WC: | 1 |
| Terrassen: | 1 |
| Garten: | 11,38 m² |
| Keller: | 1,69 m² |
| Heizwärmebedarf: | B 28,00 kWh/m²a |
| fGEE: | A 0,73 |
Ausstattung
Fliesen, Parkett, Erdwärme, Fußbodenheizung, Wohnküche / offene Küche, Personenaufzug, Dusche, Garage
Internet und TV
Information zur Internet und TV Versorgung hier
Ihre persönliche Beratung
Andrea PÖCHHACKER; MSc
EHL Immobilien GmbH
a.poechhacker@ehl.at
+4315127690 DW 411
+43664 83 73 481
