Moderne Büroflächen im EURO PLAZA zu mieten - 1120 Wien
Büro / Praxis
- Bürofläche,
1120
Wien
Lage der Immobilie
U-Bahn: U6 Bahnhof: Meidling - viele Regionalzüge und S-Bahnen Straßenbahn: 62 Bus: 7A, 15A, 63ABeschreibung der Immobilie
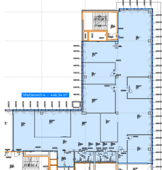
Eckdaten
| Miete / m²: | 15,70 € |
Basisdaten zur Immobilie
| Objektnr: | 109240624 |
| Art: | Büro / Praxis - Bürofläche |
| Land: | Österreich |
| Miete / m²: | 15,70 € |
| Provision: | 3 BMM zzgl. USt. |
| Heizwärmebedarf: | B 42,00 kWh/m²a |
Ausstattung
Personenaufzug
Internet und TV
Information zur Internet und TV Versorgung hier
Ihre persönliche Beratung
Mag. (FH) Elisa Stadlinger, MRICS
ÖRAG Immobilien Vermittlung GmbH
Buero@Oerag.at
0043153473382
