Khekgasse 38: perfekt geplante 7 Maisonette-Wohnungen (bewilligter Dachboden)
Wohnung
- Rohdachboden,
1230
Wien
Lage der Immobilie
Khekgasse // nahe Bahnhof LiesingBeschreibung der Immobilie
*************************************
Das Projekt.
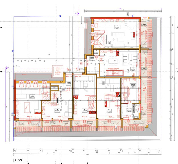
Zum Verkauf gelangt ein aktuell in der Einreichung befindlicher Rohdachboden mit voraussichtlich rund 636m² erzielbarer Wohnnutzfläche und rund 105m² Terrassenfläche in der Khekgasse/Welschgasse in 1230 Wien. Geplant und in der Einreichung sind 7 Dachgeschossmaisonetten (von 74,79m² Wohnfläche + 14,15m² Terrasse bis 126,40m² Wohnfläche + 14,92m² Terrasse), welche über einen noch zu verbauenden Personenaufzug und in weiterer Folge über einen Laubengang zugänglich gemacht werden.
Das Haus selbst wurde im Jahr 1971 von der gemeinnützigen Wohnungsgesellschaft für Bundesbedienstete errichtet und unterliegt daher dem Wohnungsgemeinnützigkeitsgesetz (WGG). Im Jahr 2014 fand die Begründung von Wohnungseigentum (aktuell 15 WE-Objekte) statt. Im Jahr 1998 wurden die bestehenden Fenster gegen neue Kunststofffenster getauscht - in den Jahren 2017 und 2018 wurden die Elektro-Steigleitungen umfassend saniert. Aufgrund dieser Sanierungen läuft bis 2032 ein Instandhaltungs-/Sanierungsdarlehen (Restschuld per 10/2020 betrug € 92.625,14).
Über den Wohnungseigentumsvertrag liegt die Zustimmung aller Eigentümer zu einem Dachgeschoßausbau bzw. einer Aufstockung des Gebäudes um ein Geschoß vor und die Eigentümer der bisher verkauften Wohnungen haben sich dazu verpflichtet, sämtliche Einreichpläne und Urkunden für den Dachgeschoßausbau zu unterfertigen. Die Einholung sämtlicher Zustimmungen obliegt dem Käufer der Rohdachböden.
Es gibt einige Verpflichtungen, denen der Käufer der Rohdachböden mit Anbotslegung bzw. Kauf zustimmt (z.B. Beauftragung des Ausbau von dafür konzessionierten Unternehmen, Adaptierung der Versorgungsleitungen sofern benötigt, Verbau eines Personenaufzug, Abschluss Bauherrenversicherung, etc.) . Der detaillierte Forderungskatalog, ein Bauzustandsgutachten aus dem Jahr 2021, die Einreichplanung, Statik, etc. wird gerne auf Anfrage zugesendet.
Die Lage.
Das Objekt befindet sich in einer sehr beliebten Lage Wiens - nahe der Stadtgrenze in erholsamer Ruhelage, jedoch trotzdem perfekt angebunden dank dem nahegelegenen Bahnhof Liesing. Fußläufig erreichen Sie das Einkaufszentrum "River Side" in nur 450m Distanz samt vielerlei Geschäfte und Lokale, das Liesinger Bad, sowie Haltestellen diverser Buslinien (z.B. 60A, 62A, 64A, 66A, N66).
Die öffentliche Anbindung ist über den nahegelegenen Bahnhof Liesing, welchen Sie in nur 12 Minuten zu Fuß erreichen, gegeben. Mit der Schnellbahn gelangen Sie so binnen 15 / 20 Minuten Fahrzeit zum Hauptbahnhof / Wien Mitte. Zur nächstgelegenen U-Bahnstation der Linie U6 gelangen Sie mittels Bus von Liesing.
*************************************
Im Falle Ihres Interesses und für die Vereinbarung eines Besichtigungstermins, bitten wir um die Übermittlung konkreter Terminvorschläge Ihrerseits über das Kontaktformular oder per Mail an office@rennerrealestate.at . Es wird auf ein bestehendes wirtschaftliches Naheverhältnis hingewiesen. Sollten Sie weiterführende Fragen zur Liegenschaft haben, erreichen Sie mich telefonisch unter +43 660 125 52 42.
Noch nichts gefunden? Wir informieren Sie über geeignete Immobilienangebote noch vor allen anderen.
Legen Sie jetzt Ihren individuellen Suchagenten unter folgendem Link an. Wir schicken Ihnen passende Immobilien exklusiv vorab zu.
-> Suchagent anlegen
ZELLMANN IMMOBILIEN GmbH
Vertrauen. Service. Qualität.
Infrastruktur / Entfernungen
Gesundheit
Arzt <500m
Apotheke <500m
Klinik <1.500m
Krankenhaus <2.500m
Kinder & Schulen
Schule <500m
Kindergarten <500m
Universität <6.000m
Höhere Schule <6.500m
Nahversorgung
Supermarkt <500m
Bäckerei <500m
Einkaufszentrum <500m
Sonstige
Geldautomat <500m
Bank <500m
Post <1.000m
Polizei <500m
Verkehr
Bus <500m
U-Bahn <3.000m
Straßenbahn <1.000m
Bahnhof <1.000m
Autobahnanschluss <2.500m
Angaben Entfernung Luftlinie / Quelle: OpenStreetMap
Eckdaten
Objektnr: | 24074 |
Art: | Wohnung - Rohdachboden |
Land: | Österreich |
Kaufpreis: | 549.000,00 € |
Provision: | 3% des Kaufpreises zzgl. 20% USt. |
Wohnfläche: | 669,02 m² |
Nutzfläche: | 669,02 m² |
Heizwärmebedarf: | D 128,14 kWh/m²a |
fGEE: | E 2,52 |
Internet und TV
Information zur Internet und TV Versorgung hier
Ihre persönliche Beratung

Christian Zellmann
ZELLMANN IMMOBILIEN GmbH | Vertrauen. Service. Qualität.
E office@zellmann.at
H +43 699 15 15 22 00