*** Dachgeschoßgenießer aufgepasst *** 4 Zimmer zentral begehbar in der Zieglergasse 50 *** ab sofort verfügbar!!
Wohnung
,
1070
Wien
,
Zieglergasse
Lage der Immobilie
Zieglergasse Ecke Kandlgasse; Nähe: Burggasse-Stadthalle, MariahilferstraßeBeschreibung der Immobilie
Liebe Wohnungssuchende,
Wir bitten um Anfrage Ihrerseits über das Kontaktformular: www.sulek.immobilien/besichtigung! (Bitte Herrn Bilgili auswählen)
Herzlichen Dank!
Hinweis: Die Bildaufnahmen stammen aus der Erstvermarktung!
***********************************
Wohnung.
Ob Sie eine Familie, eine Wohnungsgemeinschaft oder ein Pärchen, das viele Räume benötigt, sind - diese rund 98 m² Wohnung hat für alle etwas übrig. Die 4-Zimmer-Wohnung ist frühestens ab September verfügbar! Das Haus wurde 2009 erbaut, sodass sowohl Allgemeinflächen als auch die Wohnung selbst sehr modern ausgestattet sind - ein Garagenstellplatz kann optional angemietet werden. Geheizt wird mit Gaszentralheizung, die Heizkosten hängen zur Gänze von Ihrem Verbrauch ab.
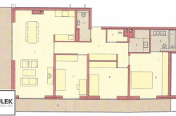
Raumaufteilung:
Vom zentralen Vorzimmer aus gelangen Sie der Reihe nach in alle Wohnräume, gefolgt vom Badezimmer, dem WC und dem Abstellraum (mit Waschmaschinenanschluss). Highlight der Wohnung ist eindeutig die nach Süden und Westen ausgerichtete Terrasse mit 29 m², die mit 3 Schlafzimmern und dem Wohnzimmer (offene Wohnküche) verbunden ist. Insgesamt sind 3 Schlafzimmer nach Süden ausgerichtet, das Wohnzimmer nach Westen.
Lage/Infrastruktur.
Was diese Wohnung zu einer Besonderheit macht, ist die Infrastruktur in jede Richtung des Hauses. Gehen Sie nach Süden, so erreichen Sie in 8 Gehminuten die U3 Bahnstation Zieglergasse, Mariahilfer Straße und auf dem Weg dorthin die Straßenbahn 49. Gehen Sie nach Westen, so erreichen Sie in 7 Gehminuten die Burggasse-Stadthalle (U6). Zum Norden hin erreichen Sie den Supermarkt Hofer (60 Meter entfernt). Zum Westen hin erreichen Sie in 2 Gehminuten das heißbegehrte Hermannbad, sodass die Lage ingesamt keine Wünsche offen lässt.
Sonstiges.
Der Vermieter verlangt von seinen Mietern die Vorlage eines Einkommensnachweises. Bei Mietern ohne eigenes Einkommen (Studenten) wird ein Bürgschaft mit entsprechendem Einkommensnachweis verlangt.
*************************************
Sollten Sie nach Durchsicht des Inserats eine Besichtigung wünschen, bitten wir um Anfrage über das Kontaktformular und Nennung ein paar konkreter Terminvorschläge. Vielen Dank!
******************************************
Die zur Verfügung gestellten Informationen beruhen auf Angaben des Abgebers, der Gemeinde und der Hausverwaltung bzw. der jeweiligen Professionisten. Für die Richtigkeit und Vollständigkeit der Angaben kann keine Gewähr bzw. Haftung übernommen werden. Weiters weisen wir auf ein wirtschaftliches und/oder familiäres Naheverhältnis hin. Festgehalten wird, dass unser Maklerunternehmen gem. § 17 MaklerG einseitig nur für den Vermieter tätig wird, nicht für den Mieter.
Bitte beachten Sie, dass unser Unternehmen keine Reisekosten übernimmt, die im Zusammenhang mit der Besichtigung von Immobilien anfallen. Alle anfallenden Kosten für Anreise, Unterkunft und Verpflegung müssen von den Interessenten selbst getragen werden. Des Weiteren übernehmen wir keine Haftung für Kosten, die durch kurzfristige Stornierungen oder Änderungen von Besichtigungsterminen entstehen können. Wir danken Ihnen für Ihr Verständnis.
******************************************
Noch nichts gefunden?
Wir informieren Sie als Erste/r über passende Immobilienangebote.
Legen Sie jetzt Ihren individuellen Suchagenten über folgenden Link an.
Wir senden Ihnen geeignete Immobilien unverbindlich vorab zu.
Suchagent anlegen - https://sulek-immobilien.service.immo/registrieren/de
Wir weisen darauf hin, dass zwischen dem Vermittler und dem zu vermittelnden Dritten ein familiäres oder wirtschaftliches Naheverhältnis besteht.
Der Immobilienmakler erklärt, dass er – entgegen dem in der Immobilienwirtschaft üblichen Geschäftsgebrauch des Doppelmaklers – einseitig nur für den Vermieter tätig ist.
Infrastruktur / Entfernungen
Gesundheit
Arzt <250m
Apotheke <250m
Klinik <250m
Krankenhaus <1.250m
Kinder & Schulen
Schule <250m
Kindergarten <500m
Universität <500m
Höhere Schule <500m
Nahversorgung
Supermarkt <250m
Bäckerei <500m
Einkaufszentrum <750m
Sonstige
Geldautomat <500m
Bank <500m
Post <500m
Polizei <250m
Verkehr
Bus <250m
U-Bahn <750m
Straßenbahn <250m
Bahnhof <750m
Autobahnanschluss <4.500m
Angaben Entfernung Luftlinie / Quelle: OpenStreetMap
Eckdaten
| Gesamtmiete: | 2.499,01 € |
| Fläche: | 98,44 m² |
| Zimmer: | 4 |
Basisdaten zur Immobilie
| Objektnr: | 25784 |
| Art: | Wohnung |
| Land: | Österreich |
| Baujahr: | 2009 |
| Zustand: | Gepflegt |
| Alter: | Neubau |
| Gesamtmiete: | 2.499,01 € |
| Kaltmiete (netto): | 2.055,25 € |
| Kaltmiete: | 2.271,82 € |
| Provision: | Gemäß Erstauftraggeberprinzip bezahlt der Abgeber die Provision. |
| Betriebskosten: | 216,57 € |
| MwSt Gesamt: | 227,19 € |
| Wohnfläche: | 98,44 m² |
| Zimmer: | 4 |
| Bäder: | 2 |
| WC: | 2 |
| Terrassen: | 1 |
| Heizwärmebedarf: | B 31,37 kWh/m²a |
| fGEE: | B 0,93 |
Ausstattung
Fliesen, Parkett, Gas, Zentralheizung, Wohnküche / offene Küche, Personenaufzug, Badewanne, Dusche, Kabel/Satelliten-TV, Tiefgarage, Wasch/Trockenraum
Internet und TV
Information zur Internet und TV Versorgung hier
Ihre persönliche Beratung
Kenan Bilgili
Mittelsmann Philipp Sulek GmbH
kb@sulek-immobilien.at
+43 676 64 33 124
+43 664 354 11 44
