Attraktives Wohnungspaket zum Kauf - 3 Wohnungen - Bezirke 1100, 1140 und 1170 Wien
Zinshaus Renditeobjekt
,
1150
Wien,Rudolfsheim-Fünfhaus
Beschreibung der Immobilie
Zum Kauf steht dieses attraktive Wohnungspaket, bestehend aus drei Wohnungseigentumsobjekten.
- Wohnung 1: Sautergasse 60, 1170 Wien, mit ca. 29,5m2 – 1 Zimmer
- Wohnung 2: Spallartgasse 19, 1140 Wien, ca. 46,79m² – 2 Zimmer
Die dritte Wohnung wir noch aus Privatvermögen eingebracht:
- Wohnung 3: Rotenhofgasse 41, 1100 Wien, mit ca. 87m2 – 3 Zimmer
Share Deal Option!
Den Jahresabschluss 2023 der GmbH und jegliche andere Details erhalten Sie nach Anfrage.
Verlustvorträge in der Höhe von € € 93.000,-
- Wohnung 1 mit Loggia: Neubau, 1170 Wien
Ideal als Starterwohnung
Nähe Kongressbad
ca. 29,5m2 Wohnfläche
Unbefristet vermietet. Bruttogesamtmiete inkl. Akonto WW und Heizung 2025: ca. € 635,00
Diese Wohnung verfügt über:
- Vorraum
- Wohnschlafraum mit Ausgang auf die
- Loggia
- Küche
- Diele
- Badezimmer mit Badewanne mit
- WC
Das Haus verfügt über einen Lift, Fahrradabstellraum und Waschküche.
Lagebeschreibung: Nahe Kongresspark, Hernals.
Die Anbindung an den öffentlichen Verkehr ist sehr gut gegeben: nur 3 Gehminuten zur Straßenbahn, nur 7 Gehminuten zur S45 (Lokalbahnhof Hernals)
Nahversorgung und ärztliche Versorgung im fußläufigen Umkreis!
- Wohnung 2 mit Loggia: Neubau 1140 Wien
HMZ netto 2025: € 567,49 (befristet vermietet bis Juni 2028)
Die Wohnung im 5. Obergeschoss (mit Lift) verfügt über:
- Vorraum
- Bad mit WC
- Wohnküche
- Schlafzimmer
- Loggia
- Kellerabteil
Der Rücklagenstand per Ende 2024 betrug € 26.653,25
Lagebeschreibung
Die Anbindung an den öffentlichen Verkehr ist sehr gut gegeben:
Strassenbahn: 10 Laurentiusplatz rund 220m, 49 Breitensee rund 320m
Bus: 51A Leyerstraße rund 490m
UBahn: U3 Hütteldorfer Straße rund 380m
S-Bahn: S45 Breitensee rund 370m
Ein Energieausweis der Klasse A, mit einem Heizwärmebedarf von 22,28 kWh/m²a, fGEE 0,722 mit der Klasse A, wurde übergeben. Es wird ausdrücklich festgehalten, dass vom Vermittler keine Haftung für die Richtigkeit und die Höhe des Energieausweises übernommen wird. Der tatsächliche Energieverbrauch ist abhängig vom individuellen Nutzerverhalten und kann auch aufgrund der Lage der Wohnung in dem Gebäude variieren.
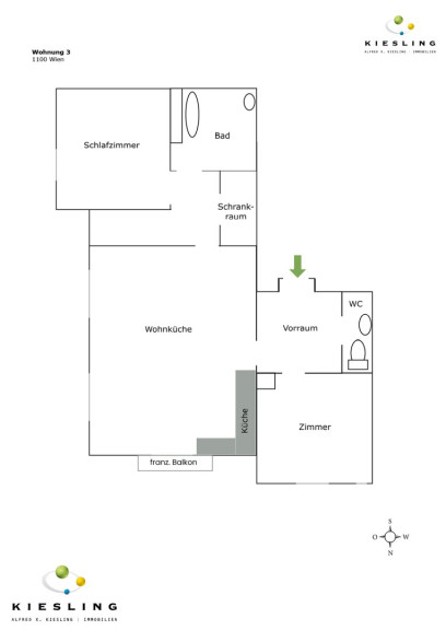
- Wohnung 3: Neubau 1100 Wien
3 Zimmer mit Balkon, ca. 87,00m²
HMZ netto 2025: € 854,54; befristet vermietet
Diese Wohnung verfügt über:
- Vorraum
- WC
- Zimmer 1
- Wohnküche mit französischen Balkon
- Gang
- Schrankraum
- Zimmer 2
- Badezimmer mit Badewanne
- Zimmer 3
- Kellerabteil
Der Rücklagenstand per Ende 2023 betrug € 38.476,00
Lagebeschreibung:
Das Objekt befindet sich in der Nähe vom Laubeplatz, Brunngraberhof und Arthaberplatz.
Die Anbindung an den öffentlichen Verkehr ist sehr gut. In wenigen Gehminuten erreichen Sie Bus und Straßenbahn, ca. 20 Gehminuten zur U1; die Anbindung für den Individualverkehr ist im Hinblick auf die Nähe zur Quellenstraße, der der Laxenburger Straße, der Laaer-Berg-Straße, der Favoritenstraße sowie folgend zum höherrangigen Straßennetz sehr gut.
Ein Energieausweis der Klasse D, mit einem Heizwärmebedarf von 106,4 kWh/m²a, fGEE 2,15 mit der Klasse D, wurde übergeben. Es wird ausdrücklich festgehalten, dass vom Vermittler keine Haftung für die Richtigkeit und die Höhe des Energieausweises übernommen wird. Der tatsächliche Energieverbrauch ist abhängig vom individuellen Nutzerverhalten und kann auch aufgrund der Lage der Wohnung in dem Gebäude variieren.
Bei Kaufvertragsabschluss fallen folgende Kosten an:
Kaufpreis 899.000,00 €
Eintragungsgebühr 9.889,00 €
Grunderwerbssteuer 31.465,00 €
Provision 32.364,00 €
Gesamt 972.718,00 €*
*zzgl. Vertragserrichtung- und Eintragungsgebühr
Der Vermittler ist als Doppelmakler tätig.
Infrastruktur / Entfernungen
Gesundheit
Arzt <500m
Apotheke <500m
Klinik <1.000m
Krankenhaus <1.500m
Kinder & Schulen
Schule <1.000m
Kindergarten <500m
Universität <2.500m
Höhere Schule <1.500m
Nahversorgung
Supermarkt <500m
Bäckerei <500m
Einkaufszentrum <1.000m
Sonstige
Geldautomat <500m
Bank <500m
Post <1.000m
Polizei <500m
Verkehr
Bus <500m
U-Bahn <500m
Straßenbahn <500m
Bahnhof <500m
Autobahnanschluss <4.000m
Angaben Entfernung Luftlinie / Quelle: OpenStreetMap
Eckdaten
| Kaufpreis: | 899.000,00 € |
Basisdaten zur Immobilie
| Objektnr: | 3667 |
| Art: | Zinshaus Renditeobjekt |
| Land: | Österreich |
| Zustand: | Gepflegt |
| Alter: | Altbau |
| Kaufpreis: | 899.000,00 € |
| Kaufpreis / m²: | auf Anfrage |
Internet und TV
Information zur Internet und TV Versorgung hier
Ihre persönliche Beratung
Alfred Xaver Kiesling
Alfred X. Kiesling - Immobilien
Alfred@kiesling-immobilien.at
0664 16 45 458
+ 43 664 16 45 45 8
