Wohn- und Geschäftshaus mit Potenzial im Herzen von Mooskirchen

Haus - Mehrfamilienhaus, 8562 Mooskirchen

Beschreibung der Immobilie

Zum Verkauf steht ein vollständig kernsaniertes Wohn- und Geschäftshaus mit einer Gesamtnutzfläche von ca. 270 m², Baujahr 1920. Das Objekt wurde umfassend saniert und befindet sich aktuell in belagsfertigem Zustand – eine ideale Gelegenheit für Investoren oder Unternehmer, die ihre eigenen Vorstellungen verwirklichen möchten.

Genießen Sie schon vorab das Objektvideo.
VIDEO gleich ansehen, hier klicken.
Das Haus überzeugt durch seine sehr gute Lage im Ortskern von Mooskirchen, direkt an einer stark frequentierten Straße mit hoher Sichtbarkeit. Fußläufig erreichbar sind Nahversorger, öffentliche Einrichtungen und Verkehrsanbindungen. Die hervorragende Frequenzlage macht das Objekt besonders attraktiv für gewerbliche Nutzung.

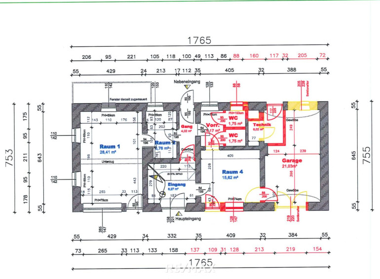
- Gesamtfläche: ca. 267 m²
- Erdgeschoss (Gewerbefläche): ca. 96,82 m²
- Ideal aufteilbar in zwei eigenständige Einheiten
- Perfekt als Büro, Praxis, Verkaufs- oder Dienstleistungsfläche
- Obergeschoss (Wohnfläche): ca. 99,28 m²
- Belagsfertig – individuelle Gestaltung möglich
- Helle, gut geschnittene Räume
- Dachgeschoss zus. ca. 70 m² Wohnfläche
- ca. 300 m2 Eigengarten

Belagsfertig beinhaltet:

- sämtliche Installationen (Elektrik, Sanitär)
- elektrische Rollläden
- Klimaanlage
- Photovoltaik
- Heizung (Infrarotpaneele)
- verspachtelt und ausgemalen

Die Schlüsselfertige Ausstattung ermöglicht Ihnen noch individuelle Ausstattung nach Wunsch (Preis auf Anfrage):

- Böden
- Innentüren
- Fliesen
- Badewanne, Waschbecken, WCs
- Küche

Weitere Vorteile:

- Solide Substanz & hochwertige Sanierungsarbeiten
- Flexible Nutzungsmöglichkeiten (Wohnen & Gewerbe)
- belagsfertiger Zustand – Ausstattungswünsche individuell realisierbar
- Genügend Parkmöglichkeiten in unmittelbarer Umgebung

Dieses Objekt vereint attraktive Lage, modernes Potenzial und vielseitige Nutzungsmöglichkeiten. Ob als renditestarke Kapitalanlage, Standort für Ihr eigenes Unternehmen oder als Kombination aus Wohnen & Arbeiten – hier eröffnen sich zahlreiche Perspektiven.
Verpassen Sie nicht diese Gelegenheit – kontaktieren Sie uns für weitere Informationen oder einen Besichtigungstermin!

Haben wir Ihr Interesse geweckt?

SIE ÜBERLEGEN IHRE IMMOBILIE ZU VERKAUFEN?
Wir machen das täglich!
Kostenlose und unverbindliche Marktwerteinschätzung!
Jetzt anrufen: Bettina Aschenbrenner - Tel. 0676/68 09 701
Besuchen Sie uns im Einkaufs - Center WEST Graz Webling!

Wenn Sie Unterstützung bei der Finanzierung benötigen:

Rene Fahler, MSc – der Finanzdienstleister
Akademischer Finanzdienstleister Kreditmakler
Heidenwaldweg 3 - 8434 Tillmitsch
(direkt beim Ankerpunkt)
mobil: +43 (650) 4001988
mail: office@fahler.at
web: www.fahler.at

Nebenkosten beim Immobilienkauf in Österreich
• Grunderwerbssteuer (3,5 % der Gegenleistung = in der Regel des Kaufpreises)
• Grundbucheintragungsgebühr für die Einverleibung des Eigentumsrechts (1,1 % des Kaufpreises)*
• Vertragserrichtungskosten (gemäß Vereinbarung mit dem Rechtsanwalt oder Notar, abhängig von Komplexität und Haftungsrisiko)
• Kosten für die notarielle Beglaubigung des Kaufvertrages und gegebenenfalls der Pfandurkunde
• Antragsgebühren für den Grundbuchsantrag und gegebenenfalls bei der Grundverkehrsbehörde etc.
• gegebenenfalls Grundbuchsgebühr für die Einverleibung des Pfandrechts (1,2 % des Pfandrechtsbetrages)*
• gegebenenfalls Kreditvertragsgebühren gemäß Kreditvertrag mit der finanzierenden Bank
• Maklerprovision: 3 % vom Kaufpreis zzgl 20 % USt.
*Am 20.3.2024 wurde für Wohnimmobilien eine temporäre Befreiung von der Eintragungsgebühr für das Eigentumsrecht und für das Pfandrecht beschlossen. Die Voraussetzungen hierfür ergeben sich aus den künftigen §§ 25a bis 25c GGG (Gerichtsgebührengesetz).
Angaben gemäß gesetzlichem Erfordernis:
Heizwärmebedarf:40.5 kWh/(m²a)
Klasse Heizwärmebedarf:B
Faktor Gesamtenergieeffizienz:0.67
Klasse Faktor Gesamtenergieeffizienz:A+

Eckdaten

Objektnr: 2278_6522
Art: Haus - Mehrfamilienhaus
Land: Österreich
Baujahr: ca. 1920
Kaufpreis: auf Anfrage
Provision: 3.00 %
Wohnfläche: 267,00 m²
Nutzfläche: 267,00 m²
Grundstücksfl.: 459,00 m²
Heizwärmebedarf:  B  40,50 kWh/m²a
fGEE:  A+  0,67
Immobilie merken Exposé

Ausstattung

Elektro, Etagenheizung


Internet und TV

Information zur Internet und TV Versorgung hier


Immobilie anfragen


Ihre persönliche Beratung

RE/MAX Nova in Graz und Laßnitzhöhe

Bettina Aschenbrenner

RE/MAX Nova in Graz und Laßnitzhöhe

E aschenbrenner@remax-nova.at

T +43 316 28 29 08316282908

H +43 676 68 09 701