Büroflächen in Klagenfurt

Büro / Praxis , 9020 Klagenfurt am Wörthersee , Heuplatz 1

Lage der Immobilie

Zentrale Lage am Heuplatz - City Arkaden - Fugängerzone (Wienergasse)

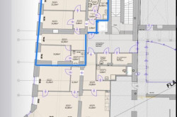
Beschreibung der Immobilie

Die repräsentative Bürofläche wird vermietet. Der Zustand des Objektes ist sehr attraktiv und zeitgemäß, obwohl wir uns in historischem Altbau befinden.

Man erreicht das 3. OG mit einem behindertengerechten Lift oder über die Stiege.

WC Anlagen sind für alle Mieter des 3. OGs frei zugänglich. Gesonderte Einbauten müssen geprüft werden.

Parken können Sie am Parkplatz am Kapuznerparkplatz oder in den Tiefgaragen, die sich in unmittelbarer Nähe befinden.

Der Bezug ist sofort möglich.

Der Vermittler ist als Doppelmakler tätig.

Infrastruktur / Entfernungen

Gesundheit
Arzt <75m
Apotheke <150m
Krankenhaus <700m
Klinik <875m

Kinder & Schulen
Schule <150m
Kindergarten <200m
Universität <625m
Höhere Schule <675m

Nahversorgung
Supermarkt <250m
Bäckerei <50m
Einkaufszentrum <200m

Sonstige
Bank <75m
Geldautomat <100m
Post <400m
Polizei <250m

Verkehr
Bus <25m
Autobahnanschluss <2.975m
Bahnhof <1.200m
Flughafen <3.200m

Angaben Entfernung Luftlinie / Quelle: OpenStreetMap

Eckdaten

Objektnr: 1958
Art: Büro / Praxis
Land: Österreich
Kaltmiete (netto): 1.295,00 €
Kaltmiete: 1.527,50 €
Miete / m²: 13,83 €
Provision: 3 Bruttomonatsmieten zzgl. 20% USt.
Betriebskosten: 232,50 €
Heizkosten: 148,00 €
MwSt Gesamt: 335,10 €
Nutzfläche: 93,65 m²
Bürofläche: 93,95 m²
Immobilie merken Exposé

Internet und TV

Information zur Internet und TV Versorgung hier


Immobilie anfragen


Ihre persönliche Beratung

LEXERIMMO.AT GmbH

Reinhold Lexer

LEXERIMMO.AT GmbH

E lexer@lexerimmo.at

T +43 (0)1 / 713 67 00

H +43 (0) 676 / 84 333 11 00

F +43 (0)1 / 713 67 00 81


LEXERIMMO.AT GmbH - Immobilen Makler

Hahngasse 32 Top 10, 1090 Wien

Tel.: +43 1 713 67 00

https://www.lexerimmo.at