Beschreibung der Immobilie
Die Dresdner Straße befindet sich im 20. Wiener Gemeindebezirk Brigittenau, direkt am Rand des neu entstehenden Stadtentwicklungsgebiets Nordwestbahnhof.
Dieses Areal wird als „Grüne Mitte“ bezeichnet und soll einen zentralen öffentlichen Frei- und Grünraum bieten, der das Tor zu diesem modernen Stadtquartier bildet .
Die unmittelbare Umgebung bietet eine etablierte Infrastruktur mit vielfältigen Nahversorgungsmöglichkeiten und Dienstleistungen, die den urbanen Alltag erleichtern.
Insgesamt präsentiert sich die Dresdner Straße als ein zentral gelegener Standort mit hervorragender Anbindung und einem aufstrebenden Umfeld.
Erleben Sie ein Wohnkonzept, das zeitgemäße Ansprüche mit einem bewussten, zukunftsorientierten Lebensstil vereint. Zentral gelegen, verbindet diese moderne Mietwohnanlage urbanes Flair mit nachhaltiger Architektur und schafft dabei Raum für Begegnung, Inspiration und Erholung.
Neben Ihrem privaten Wohnbereich profitieren Sie von großzügigen, hochwertig gestalteten Gemeinschaftsflächen, die weit über das Übliche hinausgehen: Ob konzentriertes Arbeiten im Co-Working Space, entspannte Stunden in der stilvollen Bewohner Lounge oder aktive Pausen im hauseigenen Fitness- und Yogastudio – hier finden Sie genau den Ort, den Sie gerade brauchen. Für gesellige Momente stehen Ihnen ein exklusiver Private-Dining-Raum, ein Gaming Room und ein einladender Kinosaal zur Verfügung. Wer kreativ tätig werden möchte, findet im professionell ausgestatteten Podcast Raum den idealen Rahmen. Ein besonderes Highlight ist die grüne Dachterrasse mit Gemeinschaftsgarten – ein Rückzugsort über den Dächern der Stadt, der zum Entspannen, Gärtnern und Genießen einlädt.
Diese Wohnanlage ist nicht nur ein Ort zum Wohnen – sie ist Ausdruck eines urbanen Lebensstils, der Nachhaltigkeit, Vernetzung und Lebensqualität in den Mittelpunkt stellt.
Das Projekt
- rund 262 Wohnungen
- teilweise möblierte Wohnungen
- 1-4 Zimmer Wohnungen
- insgesamt 29 Etagen
- Niedrigenergiebauweise
- Lift vorhanden
- Fahrrad und Kinderwagenabstellraum
- begrünte Dachterrasse
- anmietbarer Eventraum
- hauseigene Tiefgarage mit 76 Stellplätze, 16 davon mit E-Ladestation
Ein Stellplatz kann um € 192,00 brutto pro Monat angemietet werden.
Die Ausstattung
- Freiflächen bei allen Wohnungen
- hochwertige Sanitärausstattung
- moderne Parkettböden
- hochqualitatives Feinsteinzeug in den Nassräumen
- Fußbodenheizung mittels Fernwärme
- Deckenkühlung
- Highspeed-Internet in allen Wohnungen und den Gemeinschaftsflächen
- On-site-Team
- Sicherheitskameras
Die Allgemeinflächen
- Bewohner Lounge
- Co-Working Space
- Fitnessstudio
- Yogastudio
- Kinoraum
- Podcast Raum
- Gaming Room
- Private Dining
- Dachterrasse mit Garten
Die Lage
- U-Bahn-Station Dresdner Straße (U6)
- S-Bahn-Station Traisengasse (S1, S2, S3, S7)
- Straßenbahnlinie 2 sowie mehrere Buslinien (10A, 11A, 34A, 37A, 5A)
- Zudem verläuft das Radwegenetz Wiens direkt entlang der Liegenschaft.
zzgl. Heizkosten zwischen € 1,24 brutto/m² und € 1,89 brutto/m²
In der Gesamtmiete ist Internet bereits inkludiert.
Befristung: 5 Jahre, 1 Jahr Kündigungsverzicht, 3 Monate Kündigungsfrist
Nebenkosten: 2BMM
Einziehen und ankommen – in der Dresdner Straße 90 vereinen sich modernes Wohnen, durchdachte Ausstattung und urbaner Komfort auf höchstem Niveau.
Hier genießen Sie nicht nur beste Infrastruktur und hochwertige Wohnqualität, sondern auch ein Lebensgefühl, das verbindet: Gemeinschaft, Ruhe und ein Hauch Großstadtflair. Willkommen in Ihrem neuen Zuhause an der Dresdner Straße 90.
Die Dresdner Straße befindet sich im 20. Wiener Gemeindebezirk Brigittenau, direkt am Rand des neu entstehenden Stadtentwicklungsgebiets Nordwestbahnhof.
Dieses Areal wird als „Grüne Mitte“ bezeichnet und soll einen zentralen öffentlichen Frei- und Grünraum bieten, der das Tor zu diesem modernen Stadtquartier bildet .
Die unmittelbare Umgebung bietet eine etablierte Infrastruktur mit vielfältigen Nahversorgungsmöglichkeiten und Dienstleistungen, die den urbanen Alltag erleichtern.
Insgesamt präsentiert sich die Dresdner Straße als ein zentral gelegener Standort mit hervorragender Anbindung und einem aufstrebenden Umfeld.
Erleben Sie ein Wohnkonzept, das zeitgemäße Ansprüche mit einem bewussten, zukunftsorientierten Lebensstil vereint. Zentral gelegen, verbindet diese moderne Mietwohnanlage urbanes Flair mit nachhaltiger Architektur und schafft dabei Raum für Begegnung, Inspiration und Erholung.
Neben Ihrem privaten Wohnbereich profitieren Sie von großzügigen, hochwertig gestalteten Gemeinschaftsflächen, die weit über das Übliche hinausgehen: Ob konzentriertes Arbeiten im Co-Working Space, entspannte Stunden in der stilvollen Bewohner Lounge oder aktive Pausen im hauseigenen Fitness- und Yogastudio – hier finden Sie genau den Ort, den Sie gerade brauchen. Für gesellige Momente stehen Ihnen ein exklusiver Private-Dining-Raum, ein Gaming Room und ein einladender Kinosaal zur Verfügung. Wer kreativ tätig werden möchte, findet im professionell ausgestatteten Podcast Raum den idealen Rahmen. Ein besonderes Highlight ist die grüne Dachterrasse mit Gemeinschaftsgarten – ein Rückzugsort über den Dächern der Stadt, der zum Entspannen, Gärtnern und Genießen einlädt.
Diese Wohnanlage ist nicht nur ein Ort zum Wohnen – sie ist Ausdruck eines urbanen Lebensstils, der Nachhaltigkeit, Vernetzung und Lebensqualität in den Mittelpunkt stellt.
DAS PROJEKT
* rund 262 Wohnungen
* 1-4 Zimmer Wohnungen
* insgesamt 29 Etagen
* Niedrigenergiebauweise
* Lift vorhanden
* Fahrrad und Kinderwagenabstellraum
* begrünte Dachterrasse
* anmietbarer Eventraum
* hauseigene Tiefgarage mit 76 Stellplätze, 16 davon mit E-Ladestation
Ein Stellplatz kann um € 192,00 brutto pro Monat angemietet werden.
DIE AUSSTATTUNG
* Freiflächen bei allen Wohnungen
* hochwertige Sanitärausstattung
* moderne Parkettböden
* hochqualitatives Feinsteinzeug in den Nassräumen
* Fußbodenheizung mittels Fernwärme
* Deckenkühlung
* Highspeed-Internet in allen Wohnungen und den Gemeinschaftsflächen
* On-site-Team
* Sicherheitskameras
DIE ALLGEMEINFLÄCHEN
* Bewohner Lounge
* Co-Working Space
* Fitnessstudio
* Yogastudio
* Kinoraum
* Podcast Raum
* Gaming Room
* Private Dining
* Dachterrasse mit Garten
DIE LAGE
* U-Bahn-Station Dresdner Straße (U6)
* S-Bahn-Station Traisengasse (S1, S2, S3, S7)
* Straßenbahnlinie 2 sowie mehrere Buslinien (10A, 11A, 34A, 37A, 5A)
* Zudem verläuft das Radwegenetz Wiens direkt entlang der Liegenschaft.
zzgl. Heizkosten zwischen € 1,24 brutto/m² und € 1,89 brutto/m²
In der Gesamtmiete ist Internet bereits inkludiert.
BEFRISTUNG: 3 Jahre, 1 Jahr Kündigungsverzicht, 3 Monate Kündigungsfrist
NEBENKOSTEN: 2BMM
EINZIEHEN UND ANKOMMEN – IN DER DRESDNER STRASSE 90 VEREINEN SICH MODERNES WOHNEN, DURCHDACHTE AUSSTATTUNG UND URBANER KOMFORT AUF HÖCHSTEM NIVEAU.
HIER GENIESSEN SIE NICHT NUR BESTE INFRASTRUKTUR UND HOCHWERTIGE WOHNQUALITÄT, SONDERN AUCH EIN LEBENSGEFÜHL, DAS VERBINDET: GEMEINSCHAFT, RUHE UND EIN HAUCH GROSSSTADTFLAIR. WILLKOMMEN IN IHREM NEUEN ZUHAUSE AN DER DRESDNER STRASSE 90.
Wir weisen darauf hin, dass zwischen dem Vermittler und dem zu vermittelnden Dritten ein familiäres oder wirtschaftliches Naheverhältnis besteht.
Der Immobilienmakler erklärt, dass er – entgegen dem in der Immobilienwirtschaft üblichen Geschäftsgebrauch des Doppelmaklers – einseitig nur für den Vermieter tätig ist.
Infrastruktur / Entfernungen
Gesundheit
Arzt <250m
Apotheke <500m
Klinik <500m
Krankenhaus <500m
Kinder & Schulen
Schule <500m
Kindergarten <250m
Universität <1.000m
Höhere Schule <1.500m
Nahversorgung
Supermarkt <250m
Bäckerei <250m
Einkaufszentrum <1.000m
Sonstige
Geldautomat <250m
Bank <250m
Post <250m
Polizei <250m
Verkehr
Bus <250m
U-Bahn <750m
Straßenbahn <250m
Bahnhof <250m
Autobahnanschluss <1.750m
Angaben Entfernung Luftlinie / Quelle: OpenStreetMap
Eckdaten
| Gesamtmiete: | 2.958,95 € |
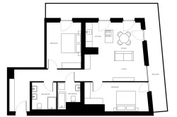
| Fläche: | 88,80 m² |
| Zimmer: | 3 |
Basisdaten zur Immobilie
| Objektnr: | 84394 |
| Art: | Wohnung |
| Land: | Österreich |
| Baujahr: | 2025 |
| Zustand: | Erstbezug |
| Alter: | Neubau |
| Gesamtmiete: | 2.958,95 € |
| Kaltmiete (netto): | 2.334,50 € |
| Kaltmiete: | 2.687,00 € |
| Provision: | Gemäß Erstauftraggeberprinzip bezahlt der Abgeber die Provision. |
| Betriebskosten: | 320,00 € |
| MwSt Gesamt: | 271,95 € |
| Wohnfläche: | 88,80 m² |
| Zimmer: | 3 |
| Bäder: | 2 |
| WC: | 2 |
| Balkone: | 1 |
| Heizwärmebedarf: | A 19,80 kWh/m²a |
| fGEE: | A 0,73 |
Ausstattung
Parkett, Fliesen, Fußbodenheizung, Wohnküche / offene Küche, Personenaufzug, Dusche, Tiefgarage, Wasch/Trockenraum
Internet und TV
Information zur Internet und TV Versorgung hier
Ihre persönliche Beratung
Egon-Adrian Toth, B.A.
EHL Immobilien GmbH
e.toth@ehl.at
+4315127690404
