Beschreibung der Immobilie
Objekt und Lage:
Im Jahr 2012 wurde WIEN MITTE - ein multifunktionaler, architektonisch hochwertiger Gebäudekomplex in unmittelbarer Nähe zur Innenstadt fertiggestellt. Die Überdeckung des Bahnhofs Wien Mitte stellt die größte innerstädtische Entwicklung Wiens seit vielen Jahren dar. Die Umsetzung erfolgte nach Entwurf des Architektenteams henke und schreieck, die Ausführung übernahmen die Architekten Ortner & Ortner, Neumann +Steiner sowie Lintl + Lintl.
Neben den für Büros genützten Hauptteil deckt „TheMall“, ein beeindruckendes Shopping Center mit 30.000 m², die Nachfrage nach Infrastruktureinrichtungen hervorragend ab. Zu den Shop Mietern, zählen namhafte Unternehmen wie: Desigual, H&M, Media Markt, Hervis, Drogerie Müller - ebenso bietet TheMall eine große Interspar-Filiale und vieles mehr. Der Standort zeichnet sich durch ein vielfältiges Gastronomieangebot aus: Vapiano, ra'mien, Max & Benito, Fat Monk, Der Mann, KFC, Shifu, Sternzeichen, Sushi Cross, Türkis, Teeamo, Dunkin und McDonald’s, um nur einige zu nennen. Gegenüber dem Standort WIEN MITTE - ist das bekannte Village Cinema angesiedelt. hier steht ein modernes Entertainmentcenter zur Verfügung.
Beim unabhängigen Shopping Center Performance Report von Standort+Markt ist WIEN MITTE The Mall Jahr für Jahr im Spitzenfeld zu finden. Als bestes Shopping Center Wiens und 2017 sogar als bestes Shopping Center Österreichs.
Das spricht für WIEN MITTE The Mall:
- Größtes innerstädtisches Einkaufzentrum Wiens
- Exzellente Erreichbarkeit (10 Linien des öffentlichen Verkehrs)
- Außergewöhnliche Architektur
- Durchschnittlich 50.000 Besucher täglich
- Perfekter Branchenmix mit 60 Shops, Dienstleistungs- und hochwertigen Gastronomiebetrieben
- Über 30.000 m² vermietbare Fläche
- 470 Parkplätze
Die Betriebskosten (inkl. Heizung und Kühlung) verstehen sich als zirka Angaben.
Ausstattung:
- flexible Raumeinteilung
- Teppichfliesen
- Doppelboden
- Kühlbalken
- Fassadenelemente im Rastermaß von 1,40 m mit öffenbaren Kippflügeln an jeder zweite Achse
- manueller innenliegender Blendschutz bzw. in Teilbereichen manueller innenliegender Sonnenschutz in der Fassadenkonstruktion
- Heizfläche im Parapetbereich
- Lift
- barrierefrei
- Center Management im Haus
- Die Flächen werden wie liegt und steht übergeben
- mindestens 5 Jahre Mietvertragslaufzeit
- Indexierung: jährlich, 100% gem. VPI 2020
- Hinweis: Innenfotos derzeit nicht verfügbar
Energieausweis liegt vor:
Heizwärmebedarf: 38kWh/m².a
Stellplätze:
Tiefgarage im Haus
- Suchparkplatz: € 225,00/Stellplatz/Monat/netto inkl. BK
- fix zugeordneter Stellplatz: € 240,00/Stellplatz/Monat/netto inkl. BK
Verkehrsanbindung:
Der Bahnhof Wien Mitte zählt zu den leistungsfähigsten Verkehrsknotenpunkten des öffentlichen Verkehrs. Direkte Zugänge zur U3, U4, zur Schnellbahn und der Anschluss an den Flughafen Wien Schwechat durch den CAT (Gleisgeschoß der U-Bahn und Schnellbahn im Untergeschoß der Liegenschaft) befinden sich im Haus. Die Ringstraße und die Erdberger Lände sorgen für eine optimale Anbindung an die Hauptverkehrsträger der Stadt (A23, Südosttangente, A4-Ostautobahn).
Alle Preisangaben verstehen sich zzgl. der gesetzl. Ust.
Alle Angaben ohne Gewähr, Irrtümer und Änderungen vorbehalten.
Wir weisen darauf hin, dass zwischen dem Vermittler und dem zu vermittelnden Dritten ein familiäres oder wirtschaftliches Naheverhältnis besteht.
Der Vermittler ist als Doppelmakler tätig.
DECUS Immobilien GmbH – Wir beleben Räume
Für weitere Informationen und Besichtigungen steht Ihnen gerne Frau Sonja Macho unter der Mobilnummer +43 664 44 53 56 1und per E-Mail unter macho@decus.at persönlich zur Verfügung.
www.decus.at | office@decus.at
Wichtige Informationen
Bitte beachten Sie, dass per 13.06.2014 eine neue Richtlinie für Fernabsatz- und Auswärtsgeschäfte in Kraft getreten ist.
Ab 1.4.2024 entfallen die Grundbuchs- und Pfandrechtseintragungsgebühren vorübergehend für Eigenheime bis zu einer Bemessungsgrundlage von EUR 500.000,-. Voraussetzung ist das dringende Wohnbedürfnis, ausgenommen davon sind vererbte oder geschenkte Immobilien. Die Befreiung ist jedoch für den Einzelfall zu prüfen, DECUS Immobilien übernimmt hierzu keine Haftung.
Ab 01.07.2023 gilt das Erstauftraggeber-Prinzip bei Wohnungsmietverträgen, ausgenommen davon sind Dienst-/Natural-/Werkswohnungen. Wir dürfen gem. § 17 Maklergesetz darauf hinweisen, dass wir auf die Doppelmaklertätigkeit gem. § 5 Maklergesetz bei Wohnungsmietverträgen verzichten und nur noch einseitig tätig sind (bei den restlichen Vermittlungsarten nicht) und ein wirtschaftliches Naheverhältnis zu unseren Auftraggebern besteht.
Im Falle eines Abschlusses mit Ihnen oder einem von Ihnen namhaft gemachten Dritten bzw. bei beidseitiger Willensübereinstimmung beträgt unser Honorar (lt. Honorarverordnung für Immobilienmakler) 2 Bruttomonatsmieten (BMM) bei Dienst-/Natural-/Werkwohnungen sowie Suchaufträgen, 3 BMM bei Gewerbe-, PKW-, Keller- und Lagermietverträgen sowie bei Kaufobjekten 3 % des Kaufpreises, zuzüglich der gesetzlichen Umsatzsteuer.
Dieses Objekt wird Ihnen unverbindlich und freibleibend angeboten. Oben angeführte Angaben basieren auf Informationen und Unterlagen des Eigentümers und sind unsererseits ohne Gewähr.
Nähere Informationen sowie unsere AGBs und die Nebenkostenübersichtsblatt finden Sie auf unserer Homepage www.decus.at unter "Service" - "Rechtliches zum FAGG" sowie im Anhang der zugesendeten Objekt-Exposés!
Infrastruktur / Entfernungen
Gesundheit
Arzt <500m
Apotheke <500m
Klinik <500m
Krankenhaus <500m
Kinder & Schulen
Schule <500m
Kindergarten <500m
Universität <500m
Höhere Schule <1.000m
Nahversorgung
Supermarkt <500m
Bäckerei <500m
Einkaufszentrum <500m
Sonstige
Geldautomat <500m
Bank <500m
Post <500m
Polizei <500m
Verkehr
Bus <500m
U-Bahn <500m
Straßenbahn <500m
Bahnhof <500m
Autobahnanschluss <2.500m
Angaben Entfernung Luftlinie / Quelle: OpenStreetMap
Verfügbare Flächen
Stiege/Bauteil
Stiege/Bauteil 0
Eckdaten
| Kaltmiete (netto): | 13.094,03 € |
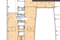
| Fläche: | 534,45 m² |
Basisdaten zur Immobilie
| Objektnr: | 1149132/1 |
| Art: | Büro / Praxis |
| Land: | Österreich |
| Baujahr: | 2012 |
| Alter: | Neubau |
| Kaltmiete (netto): | 13.094,03 € |
| Miete / m²: | 23,00 € - 24,50 € |
| Provision: | 3 Bruttomonatsmieten zzgl. 20% USt. |
| Betriebskosten: | 3.206,70 € |
| Nutzfläche: | 534,45 m² |
| Heizwärmebedarf: | 38,00 kWh/m²a |
Internet und TV
Information zur Internet und TV Versorgung hier
Ihre persönliche Beratung
Sonja Macho
DECUS Immobilien GmbH
macho@decus.at
+43 664 44 53 56 1
+43 664 44 53 56 1
F +43 1 35 600 10
