>>> VERKAUFT!!! <<< Grünland- und Waldgrundstück in Haibach ob der Donau

Grundstück - Sondernutzung, 4083 Haibach ob der Donau

Beschreibung der Immobilie

Grünland- und Waldgrundstück in Haibach ob der Donau

2.525 m² Wiese und Wald in Haibach ob der Donau!

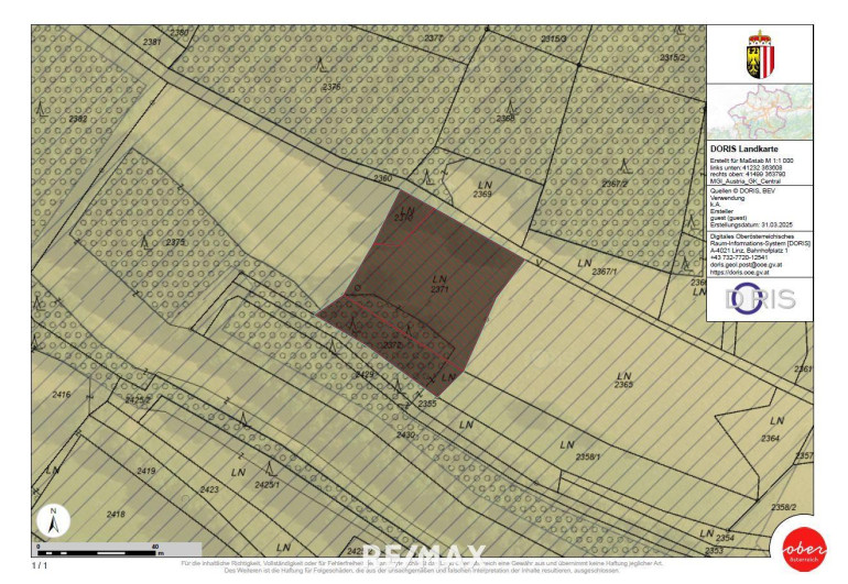
Diese ca. 2.525 m² große Grünlandgrundstück ist leicht über das angrenzende öffentliche Gut zu erreichen.

Bitte beachten Sie, dass auf Grund des Oö. Grundverkehrsgesetzes dieses Grundstück nur von Landwirten bzw. Personen mit landwirtschaftlicher Ausbildung erworben werden kann.

Objektart: Landwirtschaftlicher Nutzgrund
Standort: 4083 Haibach
Grundstücksgröße: ca. 2.525 m², davon ca. 500m2 Wald
Flächenwidmung: Grünland und Wald
Lage: Haibach ob der Donau, nahe der Ortschaft Gemersdorf
Topographie: mittlere Hanglage
Erschließung: über öffentliches Gut

KAUFPREIS: 9.900 €



Haben wir Ihr Interesse geweckt? Gerne senden wir Ihnen auf Anfrage ein ausführliches Exposé zu.


BITTE BEACHTEN SIE, dass wir aufgrund der Nachweispflicht gegenüber dem Eigentümer nur Anfragen mit vollständiger Angabe des Namens und
der Anschrift bearbeiten können. Gerne senden wir Ihnen ein kostenloses Detailangebot mit weiteren Informationen zu

Unverbindliche Unterlagen:
Die angegebenen Informationen sind nach bestem Wissen erstellt, Druck- bzw. Redaktionsfehler oder Irrtümer vorbehalten. Für Angaben, Auskünfte und Flächen, die uns von Eigentümerseite bzw. Dritten zur Verfügung gestellt wurden, können wir keine Haftung übernehmen. Gem. § 5, Abs. 3 Maklergesetz weisen wir darauf hin, dass wir als Doppelmakler tätig sind.

Eckdaten

Objektnr: 3777_352
Art: Grundstück - Sondernutzung
Land: Österreich
Kaufpreis: 9.900,00
Provision: 3.00 %
Grundstücksfl.: 2.525,00 m²
Immobilie merken Exposé

Internet und TV

Information zur Internet und TV Versorgung hier


Immobilie anfragen


Ihre persönliche Beratung

RE/MAX Bonus

Franz Ammerstorfer

RE/MAX Bonus

E f.ammerstorfer@remax-bonus.at