Beschreibung der Immobilie
Charmante Altbauwohnung nahe dem Augarten
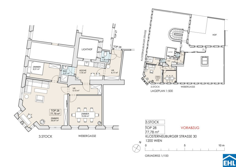
Zum Verkauf steht eine sanierte 3-Zimmer-Wohnung im 3. Obergeschoß eines Altbaus aus dem Jahr 1900. Die Liegenschaft befindet sich in der Webergasse 19, an der Ecke zur Klosterneuburger Straße, nur wenige Gehminuten vom beliebten Augarten entfernt.
Die Wohnung überzeugt durch einen durchdachten Grundriss und liebevolle Details, die den typischen Altbaucharme mit modernem Wohnkomfort verbinden:
Das geräumige Vorzimmer bietet Platz für eine Garderobe und Stauraum. Die Küche wurde erst kürzlich neu eingebaut. Das Badezimmer bietet eine barrierefreie Dusche, einen Waschtisch mit Spiegel inkl. Beleuchtung und einen Handtuchheizkörper.
Das großzügige Schlafzimmer ist ruhig zur Webergasse ausgerichtet. Das Kabinett eignet sich hervorragend als Arbeits- oder Gästezimmer.
Das Herzstück der Wohnung ist zweifelsohne der beeindruckende Wohnraum mit mehreren Fenstern, einem Erker, wunderschönen Stuckdecken und integrierten Deckenspots.
Auch das Wohnhaus selbst präsentiert sich in einem gepflegten und kürzlich modernisierten Zustand. Der Eingangsbereich wurde stilvoll erneuert, um ein digitales schwarzes Brett ergänzt und gleichzeitig wurde großer Wert darauf gelegt, den authentischen Altbau-Charme zu bewahren. So blieben die Original Mosaikfliesen erhalten sowie auch die kunstvoll gearbeiteten Stiegenhausgeländer. Die historischen Bassenas auf den Etagen sind ein weiteres charmantes Detail vergangener Zeiten.
Wir dürfen darauf hinweisen, dass das Haus derzeit über keinen Lift verfügt. Der Verkäufer verpflichtet sich jedoch vertraglich zur Errichtung eines Liftes bis spätestens 2028.
Die Lage & Infrastruktur
Die Umgebung punktet durch eine hervorragende Infrastruktur: Zahlreiche Einkaufsmöglichkeiten (u. a. Supermärkte, Bäckereien, Apotheken) sowie Cafés und Restaurants befinden sich in unmittelbarer Nähe. Die Klosterneuburger Straße bietet vielfältige Nahversorgungsmöglichkeiten und verbindet urbanes Leben mit entspanntem Wohnen.
Die öffentliche Anbindung ist ausgezeichnet: diverse Straßenbahn- sowie die Buslinie 5B sind fußläufig erreichbar und ermöglichen eine schnelle Verbindung in die Wiener Innenstadt sowie zu weiteren Knotenpunkten wie dem Franz-Josefs-Bahnhof oder der U6-Station Jägerstraße.
Öffentliche Verkehrsmittel:
- U-Bahnlinie: U4 "Friedensbrücke" (6 Gehminuten entfernt)
- Buslinien: 5B
- Straßenbahnlinien: 1, 2, 5, 31, 33, O
Der Verkauf erfolgt mit einer Vermittlungsprovision in Höhe von 3% des Kaufpreises.
Der Vermittler ist als Doppelmakler tätig.
Infrastruktur / Entfernungen
Gesundheit
Arzt <150m
Apotheke <225m
Klinik <825m
Krankenhaus <1.400m
Kinder & Schulen
Schule <225m
Kindergarten <75m
Universität <600m
Höhere Schule <775m
Nahversorgung
Supermarkt <50m
Bäckerei <75m
Einkaufszentrum <1.200m
Sonstige
Geldautomat <125m
Bank <125m
Post <300m
Polizei <500m
Verkehr
Bus <75m
U-Bahn <375m
Straßenbahn <75m
Bahnhof <375m
Autobahnanschluss <1.150m
Angaben Entfernung Luftlinie / Quelle: OpenStreetMap
Eckdaten
| Objektnr: | 84848 |
| Art: | Wohnung |
| Land: | Österreich |
| Baujahr: | 1900 |
| Zustand: | Gepflegt |
| Alter: | Altbau |
| Kaufpreis: | 399.000,00 € |
| Provision: | 3% des Kaufpreises zzgl. 20% USt. |
| Betriebskosten: | 156,12 € |
| MwSt Gesamt: | 15,61 € |
| Wohnfläche: | 77,78 m² |
| Zimmer: | 3 |
| Bäder: | 1 |
| WC: | 1 |
| Heizwärmebedarf: | D 120,80 kWh/m²a |
| fGEE: | F 3,76 |
Ausstattung
Parkett, Fliesen, Gas, Etagenheizung, Einbauküche, Dusche, Kabel/Satelliten-TV
Internet und TV
Information zur Internet und TV Versorgung hier
Ihre persönliche Beratung
Anna Gasienica-Fronek
EHL Immobilien GmbH
a.fronek@ehl.at
+4315127690412
+436645483323
