Traumhaftes Reihenhaus mit Garten und Carport in Spillern - Blick zur Burg Kreuzenstein
Haus
- Reihenhaus,
2104
Spillern
Beschreibung der Immobilie
🏡 ERSTBEZUG – Ihr Traumhaus in Spillern wartet auf Sie!
Reihenhaus mit Garten & 2 KFZ-Stellplätzen
📍 An der alten Schottergrube, 2401 Spillern
Sie möchten in ein neues Zuhause einziehen, das modernes Wohnen, ruhige Lage und perfekte Infrastruktur vereint? Dann ist dieses hochwertige Reihenhaus genau das Richtige für Sie!
✨ Highlights:
✔️ Ca. 115 m² Wohnfläche
✔️ Gartenflächen von 40–150 m²
✔️ 4 getrennt begehbare Schlafzimmer
✔️ Großzügige Wohnküche & moderne Bäder
✔️ Fußbodenheizung, Wohnraumlüftung, PV- & E-Ladestation-Vorbereitung
✔️ 1 Carport & 1 Freistellplatz pro Einheit
✔️ Bezugsfertig ab sofort!
🛠️ Belagsfertig oder Schlüsselfertig – Sie entscheiden, wie Ihr neues Zuhause übergeben wird.
Ein Beispielhaus (ca. 115 m² Wfl. & 40 m² Garten) kann bereits fast schlüsselfertig zum Preis der belagsfertigen Variante erworben werden! - ab ca. 480.000,-
🌿 Ruhige Wohnlage nahe Wien
🚆 Perfekte Anbindung an Bahn & Autobahn
👨👩👧👦 Ideal für Familien, Paare oder als Investment!
Objektbeschreibung
Sie sind auf der Suche nach Ihrem Traumhaus? Dann haben wir genau das Richtige für Sie!
In der idyllischen Gemeinde Spillern in Niederösterreich entsteht ein modernes Reihenhaus im Erstbezug, das mit ca. 115,13 m² Wohnfläche, Eigengarten, Terrasse und 2 Autoabstellplätzen (Carport + Stellplatz) ein komfortables und zukunftssicheres Zuhause für Ihre Familie bietet.
Die Immobilie überzeugt durch zeitgemäße Architektur, eine hochwertige Ausstattung und einen durchdachten Grundriss – perfekt für modernes Wohnen in ruhiger Lage nahe Wien. Genießen Sie entspannte Stunden auf Ihrer Terrasse mit Blick ins Grüne und auf die Burg Kreuzenstein.
Ausstattung & Highlights
-
Erstbezug – Sie ziehen als Erste ein
-
Schlüsselfertig (ohne Küche) – sofort bezugsbereit
-
Moderne Luftwärmepumpe & Fußbodenheizung
-
Vorbereitung für PV-Anlage & E-Ladestation
-
Kontrollierte Wohnraumlüftung
-
Alarmanlage
-
Badezimmer mit Badewanne, Dusche, Doppelwaschbecken & Fenster
-
Offener Wohnbereich mit Zugang zur Terrasse & Garten
-
4 Schlafzimmer + 1 Büro/Gästezimmer
-
2 WCs (Gäste-WC & Bad-WC)
-
Carport + zusätzlicher KFZ-Stellplatz
-
Hervorragende Energieeffizienz
-
Fernblick zur Burg
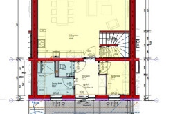
Raumaufteilung
Erdgeschoss:
-
Großzügiger Wohn-Essbereich mit moderner Wohnküche
-
Gästezimmer / Büro / Garderobe
-
Badezimmer mit Dusche
-
Gäste-WC
-
Technik- & Abstellraum
-
Ausgang zur Terrasse & Garten über große Fensterfronten
Obergeschoss:
-
4 zentral begehbare Schlafzimmer
-
Großes Bad mit Badewanne, Dusche, Doppelwaschbecken & WC
-
Vorraum
Freiflächen
-
Eigengarten: ca. 67,75 m²
-
Terrasse: ca. 13,50 m²
-
Einfahrt (Stellplatz + Carport): ca. 39,16 m²
Lage & Infrastruktur
Ruhige Wohnsiedlung in Spillern – umgeben von Natur und dennoch hervorragend angebunden:
-
3 Minuten zur S-Bahn Spillern (Direktverbindung nach Wien)
-
Nur wenige Minuten nach Stockerau (Schulen, Einkauf, Ärzte)
-
Schnelle Anbindung an die A22 (Donauuferautobahn)
-
Zahlreiche Rad- & Spazierwege in der Umgebung
Kaufpreis & Finanzierung
Kaufpreise ab EUR 480.000,- (für Teil-Belagsfertig)
ca. EUR 510.000,- (Schlüsselfertig) (ohne Küche) – ideal zur individuellen Gestaltung.
Vorteil für Käufer:
💶 Grundbuch- & Pfandrechtseintragungsgebühren ausgesetzt (bis € 500.000 & Hauptwohnsitz)
🏡 Förderbar durch NÖ Wohnbauförderung – attraktive Zuschüsse möglich
Jetzt Besichtigung sichern!
Dieses moderne Reihenhaus verbindet Wohnkomfort, Energieeffizienz und eine traumhafte Lage – ideal für Familien, Paare oder ruhesuchende Stadtflüchtlinge.
Worauf warten Sie noch?
Vereinbaren Sie noch heute Ihren persönlichen Besichtigungstermin!
Kontakt
📞 Kontaktieren Sie uns für Besichtigung & Details:
📧 erho@erho.at
📱 +43 664 188 27 80
🌐 www.erho.at
👉 Jetzt Traumhaus sichern & Erster einziehen!
Hinweis: Alle Angaben basieren auf Informationen des Verkäufers und erfolgen ohne Gewähr. Es besteht ein wirtschaftliches Naheverhältnis sowie Doppelmaklertätigkeit.
Infrastruktur / Entfernungen
Gesundheit
Arzt <500m
Apotheke <3.500m
Krankenhaus <5.000m
Klinik <5.500m
Kinder & Schulen
Schule <1.000m
Kindergarten <1.000m
Universität <7.000m
Nahversorgung
Supermarkt <2.500m
Bäckerei <4.000m
Sonstige
Bank <1.000m
Geldautomat <4.000m
Post <1.000m
Polizei <3.000m
Verkehr
Bus <500m
Autobahnanschluss <2.000m
Bahnhof <1.000m
Flughafen <7.000m
Angaben Entfernung Luftlinie / Quelle: OpenStreetMap
Eckdaten
| Kaufpreis: | 480.000,00 € |
| Fläche: | 115,13 m² |
Basisdaten zur Immobilie
| Objektnr: | 6556/108 |
| Art: | Haus - Reihenhaus |
| Land: | Österreich |
| Baujahr: | 2024 |
| Zustand: | Erstbezug |
| Alter: | Neubau |
| Kaufpreis: | 480.000,00 € |
| Kaufpreis / m²: | auf Anfrage |
| Provision: | 3% des Kaufpreises zzgl. 20% USt. |
| Nutzfläche: | 115,13 m² |
| Bäder: | 1 |
| WC: | 2 |
| Stellplätze: | 2 |
| Garten: | 68,00 m² |
Ausstattung
Fußbodenheizung, Wohnküche / offene Küche, Badewanne, Dusche, Carport, Parkplatz
Internet und TV
Information zur Internet und TV Versorgung hier
Ihre persönliche Beratung
Anita Hosmann
ERHO Immobilien e.U
erho@erho.at
+43 664 188 27 80
+43 664 188 27 80
