Wohnhaus am Meer in Karlobag / Kroatien
Haus
,
53288
Karlobag
Lage der Immobilie
Das Haus liegt in einem kleinen, idyllischen Küstenort an der kroatischen Adria, nahe der Stadt Karlobag und am Fuße des imposanten Velebit-Gebirges gelegen. Der Ort gehört zur Gespanschaft Lika-Senj und besticht durch seine außergewöhnliche Kombination aus mediterraner Meeresküste und unberührter Natur im Hinterland.
Dank seiner geschützten Lage in einer Bucht bietet die Liegenschaft kristallklares Wasser, ruhige Strände und eine entspannte Atmosphäre abseits des Massentourismus. Die Bevölkerungsdichte ist gering – ideal für Menschen, die Ruhe und Privatsphäre inmitten einer beeindruckenden Landschaft suchen.
Trotz der naturnahen Umgebung ist die Liegenschaft gut erreichbar. Die Küstenstraße (Jadranska Magistrala) führt entlang der Küste und verbindet den Ort mit Karlobag, Zadar und dem Rest der Adriaküste. In der Umgebung finden sich zahlreiche Möglichkeiten für Wanderungen, Radtouren, Wassersport oder Ausflüge in den nahegelegenen Nationalpark Paklenica oder auf die Insel Pag.
Der perfekte Ort für Naturliebhaber, Ruhesuchende und alle, die das authentische Kroatien erleben möchten – mit spektakulärem Meerblick, mediterranem Klima und der Gelassenheit eines ursprünglichen Fischerorts.
Beschreibung der Immobilie
In idyllischer Küstenlage nahe Karlobag, Kroatien, befindet sich dieses charmante Haus direkt am Meer. Eingebettet in eine ruhige, naturbelassene Umgebung mit geringer Bebauungsdichte, bietet die Immobilie absolute Privatsphäre und einen spektakulären Blick auf die Adria.
Weitere Objektdaten:
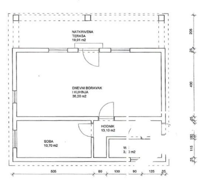
Raumaufteilung: 1 Schlafzimmer, 1 Wohn-/Schlafzimmer, 1 Badezimmer, offene Küche mit Essbereich
Terrasse: Große Meerblick-Terrasse
Dieses gemütliche Haus erstreckt sich über ca. 100 m² Wohnfläche und bietet eine perfekte Kombination aus Komfort, Natur und Meerblick. Der offene Wohnbereich mit integrierter Küche und Essplatz schafft ein helles, einladendes Ambiente. Neben einem separaten Schlafzimmer gibt es ein weiteres kombiniertes Wohn-/Schlafzimmer, das vielseitig nutzbar ist. Das Badezimmer ist funktional gestaltet.
Eine große Terrasse mit direktem Blick auf das Meer lädt zu entspannten Stunden im Freien ein. Der ca. 400 m² große Garten bietet Platz für Freizeit, Entspannung oder Gartenprojekte.
Ein zusätzlicher Kellerraum sorgt für praktischen Stauraum. Beheizt wird das Haus effizient mittels Klimaanlage mit Heizfunktion – ideal für die Nutzung auch in der Nebensaison.
Besonderheiten:
- Traumhafte Alleinlage am Meer
- Ruhige Umgebung ohne Massentourismus
- Grundstück mit viel Potenzial zur individuellen Gestaltung
- Parkplatz ca. 150 m vom Haus entfernt (keine direkte Zufahrt mit dem Auto)
Ein seltenes Angebot für alle, die Ruhe, Meerblick und Natur pur suchen.
Eckdaten
| Kaufpreis: | 399.000,00 € |
| Fläche: | 100,00 m² |
Basisdaten zur Immobilie
| Objektnr: | 0015000969 |
| Art: | Haus |
| Land: | Kroatien |
| Kaufpreis: | 399.000,00 € |
| Provision: | 3% des Kaufpreises plus USt. |
| Wohnfläche: | 100,00 m² |
| Garten: | 400,00 m² |
Internet und TV
Information zur Internet und TV Versorgung hier
Ihre persönliche Beratung
Emanuel Kulterer
Raiffeisen Kärnten
emanuel.kulterer@rai.immo
436648591927
